Immonot, l'immobilier des notaires
Achat - Maison
Reims (51100)
285 000 €
(Honoraires de négociation à la charge du vendeur)
Numéro principal :
03.26.03.40.21
Envoyer un email
Numéro principal :
03.26.03.40.21
Email

Achat Maison Reims (51100)  Pavillon 6 pièces 140 m2


Retour
285 000 €
(Honoraires de négociation à la charge du vendeur)
Tous les biens de l'office
285 000 €
(Honoraires de négociation à la charge du vendeur)
Barème des honoraires de négociation

Financer ce bien Assurance emprunteur
Déménagement Améliorer son habitat
Caractéristiques
Surface habitable
140  m2
Surface terrain
306  m2
Pièces
6
Chambres
4
Chauffage
Gaz + Central
Taxe foncière
1944
Etat général
Bon
Milieu
Urbain
Meuble
non
Année de construction
1980
Terrasse
Oui
Garage
Oui
Garage(s)
1
Les +
Bus
Gare
Commerces
Ecole

Pavillon à vendre à Reims dans la Marne (51100), ref : 
MURIGNY SUD

EXCLUSIVITE A REIMS - PAVILLON DE 140 m² T6 MITOYEN D'UN SEUL CÔTE AVEC GARAGE ET JARDIN LE TOUT SUR UNE PARCELLE DE 306 m².
MURIGNY SUD - Située dans un quartier calme et recherché à proximité du collège et école, Gare TGV Bezannes, CHU et Clinique ainsi que des petits commerces (pharmacie, boulangerie, tabac presse) entre deux supermarchés (Champfleury et Cormontreuil) et desservie par les transports urbains rémois.
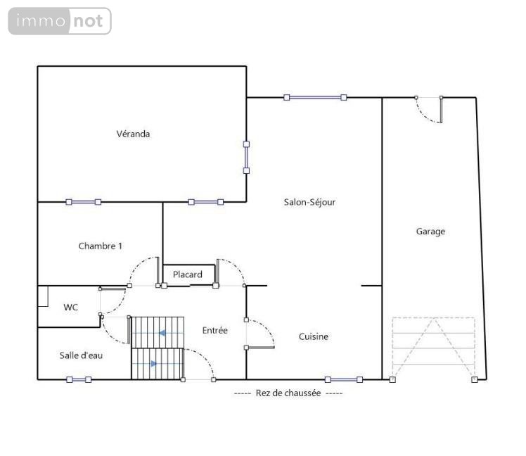
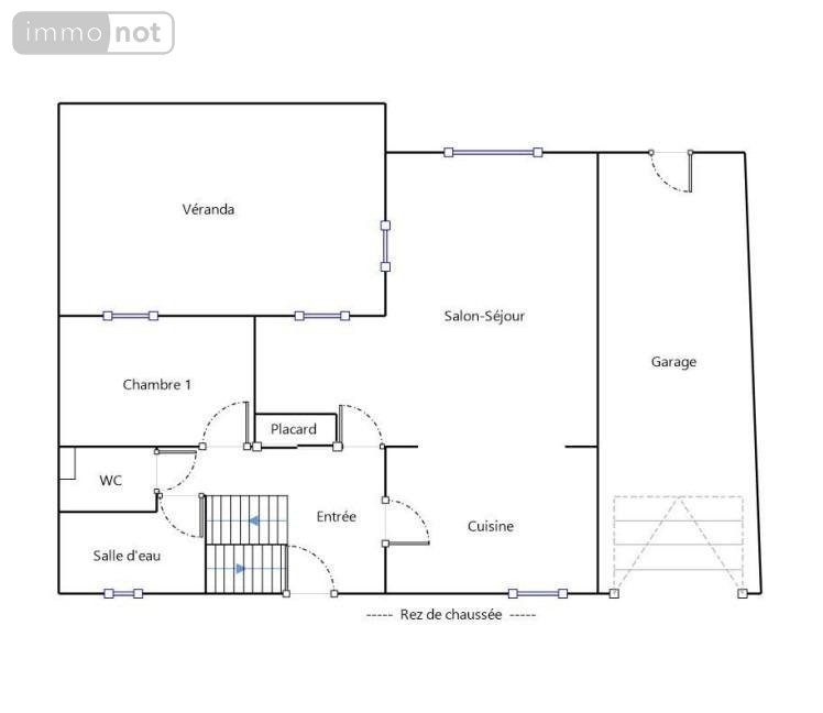
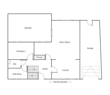
Pavillon à rafraîchir comprenant :
Au rez-de-chaussée : une entrée (8,15 m2) avec placard de rangement, Cuisine aménagée et équipée (9,90 m2) donnant sur une grande salle à manger (29 m2), une chambre (10,40 m2), une salle de douche (4 m2), WC indépendant avec lave-mains et colonne de rangement. Véranda chauffée (20 m2).
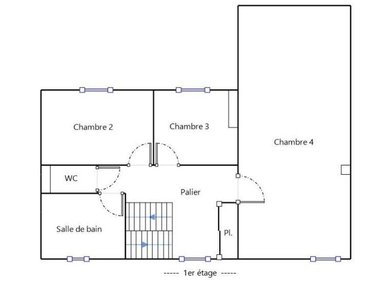
A l'étage : Palier avec placard de rangement, trois chambres (9 - 10,40 et 18 m2), une salle de bains (4,60 m2), un WC indépendant.
Jardin derrière. Terrasse avec store banne. Garage attenant de 28 m2 avec porte motorisée, pouvant accueillir deux véhicules.
Fenêtres (pvc double vitrage)
Chauffage central au gaz de ville
Construction : 1980
Fibre optique
Surface de référence : 140 m2 (véranda comprise)

Pavillon à vendre à Reims dans la Marne (51100), ref : 
MURIGNY SUD

EXCLUSIVITE A REIMS - PAVILLON DE 140 m² T6 MITOYEN D'UN SEUL CÔTE AVEC GARAGE ET JARDIN LE TOUT SUR UNE PARCELLE DE 306 m².
MURIGNY SUD - Située dans un quartier calme et recherché à proximité du collège et école, Gare TGV Bezannes, CHU et Clinique ainsi que des petits commerces (pharmacie, boulangerie, tabac presse) entre deux supermarchés (Champfleury et Cormontreuil) et desservie par les transports urbains rémois.
Pavillon à rafraîchir comprenant :
Au rez-de-chaussée : une entrée (8,15 m2) avec placard de rangement, Cuisine aménagée et équipée (9,90 m2) donnant sur une grande salle à manger (29 m2), une chambre (10,40 m2), une salle de douche (4 m2), WC indépendant avec lave-mains et colonne de rangement. Véranda chauffée (20 m2).
A l'étage : Palier avec placard de rangement, trois chambres (9 - 10,40 et 18 m2), une salle de bains (4,60 m2), un WC indépendant.
Jardin derrière. Terrasse avec store banne. Garage attenant de 28 m2 avec porte motorisée, pouvant accueillir deux véhicules.
Fenêtres (pvc double vitrage)
Chauffage central au gaz de ville
Construction : 1980
Fibre optique
Surface de référence : 140 m2 (véranda comprise)

Pavillon à vendre à Reims dans la Marne (51100), ref : 
MURIGNY SUD

EXCLUSIVITE A REIMS - PAVILLON DE 140 m² T6 MITOYEN D'UN SEUL CÔTE AVEC GARAGE ET JARDIN LE TOUT SUR UNE PARCELLE DE 306 m².
MURIGNY SUD - Située dans un quartier calme et recherché à proximité du collège et école, Gare TGV Bezannes, CHU et Clinique ainsi que des petits commerces (pharmacie, boulangerie, tabac presse) entre deux supermarchés (Champfleury et Cormontreuil) et desservie par les transports urbains rémois.
Pavillon à rafraîchir comprenant :
Au rez-de-chaussée : une entrée (8,15 m2) avec placard de rangement, Cuisine aménagée et équipée (9,90 m2) donnant sur une grande salle à manger (29 m2), une chambre (10,40 m2), une salle de douche (4 m2), WC indépendant avec lave-mains et colonne de rangement. Véranda chauffée (20 m2).
A l'étage : Palier avec placard de rangement, trois chambres (9 - 10,40 et 18 m2), une salle de bains (4,60 m2), un WC indépendant.
Jardin derrière. Terrasse avec store banne. Garage attenant de 28 m2 avec porte motorisée, pouvant accueillir deux véhicules.
Fenêtres (pvc double vitrage)
Chauffage central au gaz de ville
Construction : 1980
Fibre optique
Surface de référence : 140 m2 (véranda comprise)

Diagnostics (Réalisé le 13/10/2025 et présenté selon la référence en vigueur de 2021)

Consommation énergétique (dont Émissions de gaz à effet de serre)

A
B
C
D
181
E
F
G
Économe
Énergivore
Tableau de diagnostic de la performance énergétique des logements
Consommations énergétiques
Consommations énergétiques (en énergie primaire) pour le chauffage, la production d'eau chaude sanitaire et le refroidissement Indice de mesure : kWhEP/m 2 .an
A
B
C
D
39
E
F
G
Faible émission
Forte émission
Tableau de diagnostic de la performance énergétique des logements
Émissions de gaz à effet de serre
Émissions de gaz à effet de serre (GES) pour le chauffage, la production d'eau chaude sanitaire et le refroidissement Indice de mesure : kgeqCO2/m 2 .an

Estimation annuelle des coûts d'énergie du logement

Montant estimé des dépenses annuelle des coûts d'énergie du logement.

Entre 2240 € et 3070 € par an

Prix moyen des énergies indexées sur l'année de référence (abonnements compris)

État des risques

Les informations sur les risques auxquels ce bien est exposé sont disponibles sur le site Géorisques : www.georisques.gouv.fr

Contacter l'office notarial
SCP F. ROBERT et R. REMIOT

Place de la République
51500 RILLY LA MONTAGNE

Tous les biens de l'office notarial

Formulaire de contact

Nous vous informons de l'existence de la liste d'opposition au démarchage téléphonique BLOCTEL sur laquelle vous pouvez vous inscrire bloctel.gouv.fr.

Confidentialité et conformité au RGPD.
Vos données personnelles sont traitées par Notariat Services en tant que responsable de traitement afin de répondre à votre demande de mise en relation avec SCP F. ROBERT et R. REMIOT. Les grandes lignes concernant la responsabilité liée à ce traitement effectué par Notariat Services sont disponibles ici. Vos données sont conservées pendant 36 mois et sont destinées à la mise en relation avec SCP F. ROBERT et R. REMIOT. Conformément à la loi "informatique et libertés" et au RGPD, vous pouvez exercer vos droits d'opposition, d'accès, de rectification, d'effacement, de limitation et de portabilité en adressant un email à l'adresse suivante : [email protected]. Vous pouvez également adresser une réclamation auprés de la CNIL directement via son site internet www.cnil.fr.

Les champs obligatoires sont marqués *.

Contacter l'office notarial
SCP F. ROBERT et R. REMIOT

Place de la République
51500 RILLY LA MONTAGNE

Tous les biens de l'office notarial
SIRET:
514 971 324 00017
TVA Intra-communautaire:
FR28 514 971 324
/>