Immonot, l'immobilier des notaires
Achat - Maison
Le Mans (72000)
147 700 €
140 000 € + Honoraires de négociation TTC : 7 700 €
Soit 5,5% à la charge de l'acquéreur
Numéro principal :
06 85 23 39 36
Envoyer un email
Numéro principal :
06 85 23 39 36
Email

Achat Maison Le Mans (72000) 4 pièces 70 m2


Retour
147 700 €
140 000 € + Honoraires de négociation TTC : 7 700 €
Soit 5,5% à la charge de l'acquéreur
Tous les biens de l'office
147 700 €
140 000 € + Honoraires de négociation TTC : 7 700 €
Soit 5,5% à la charge de l'acquéreur
Barème des honoraires de négociation

Financer ce bien Assurance emprunteur
Déménagement Écorénover son logement
Caractéristiques
Surface habitable
70  m2
Surface terrain
595  m2
Pièces
4
Chambres
2
Chauffage
Gaz de ville
Garage
Oui
Référence
72120-1010

Maison à vendre à Le Mans dans la Sarthe (72000), ref : 72120-1010

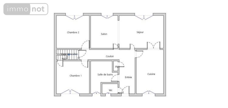
Le Mans quartier Petit St Georges : Pavillon à rénover, indépendant sur sous-sol, construction de 1957 d'environ 70 m² habitables :
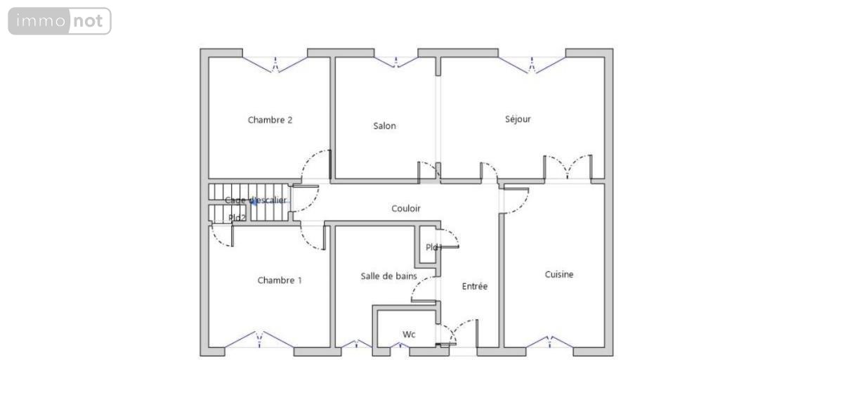
RDC : Entrée, WC, salle à manger, salon, cuisine aménagée, dégagement couloir, salle de bain, 2 chambres.
Grenier au-dessus avec accès par l'extérieur.
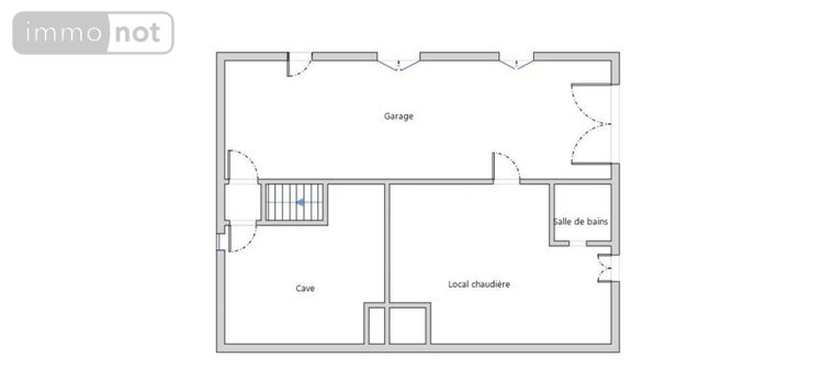
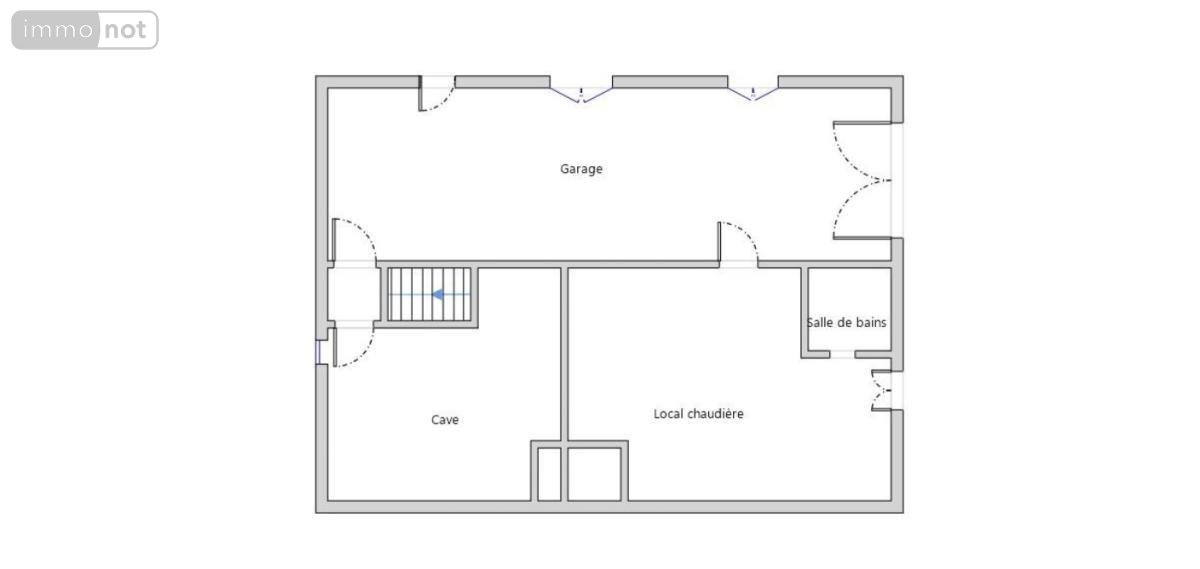
Sous-sol total : garage, atelier, cave, chaufferie buanderie.
Menuiserie bois avec persiennes métalliques, chauffage central au gaz de ville, toiture en ardoises, tout à l'égout.
Parcelle de 595 m², jardin clos
Arrêt bus TIS et SETRAM à 50 m (gare SNCF à 15 mn)

Diagnostics (Réalisé le 03/06/2025 et présenté selon la référence en vigueur de 2021)

Consommation énergétique (dont Émissions de gaz à effet de serre)

A
B
C
D
E
F
341
G
Économe
Énergivore
Tableau de diagnostic de la performance énergétique des logements
Consommations énergétiques
Consommations énergétiques (en énergie primaire) pour le chauffage, la production d'eau chaude sanitaire et le refroidissement Indice de mesure : kWhEP/m 2 .an
A
B
C
D
E
F
75
G
Faible émission
Forte émission
Tableau de diagnostic de la performance énergétique des logements
Émissions de gaz à effet de serre
Émissions de gaz à effet de serre (GES) pour le chauffage, la production d'eau chaude sanitaire et le refroidissement Indice de mesure : kgeqCO2/m 2 .an

Logement à consommation énergétique excessive

Estimation annuelle des coûts d'énergie du logement

Montant estimé des dépenses annuelle des coûts d'énergie du logement.

Entre 2660 € et 3650 € par an

Prix moyen des énergies indexées sur l'année de référence (abonnements compris)

État des risques

Les informations sur les risques auxquels ce bien est exposé sont disponibles sur le site Géorisques : www.georisques.gouv.fr

Contacter l'office notarial
SELARL LCC NOTAIRES

1 rue du Château
72540 LOUE

Tous les biens de l'office notarial
Votre contact : Pascal DESNOYER

Formulaire de contact

Nous vous informons de l'existence de la liste d'opposition au démarchage téléphonique BLOCTEL sur laquelle vous pouvez vous inscrire bloctel.gouv.fr.

Confidentialité et conformité au RGPD.
Vos données personnelles sont traitées par Notariat Services en tant que responsable de traitement afin de répondre à votre demande de mise en relation avec SELARL LCC NOTAIRES. Les grandes lignes concernant la responsabilité liée à ce traitement effectué par Notariat Services sont disponibles ici. Vos données sont conservées pendant 36 mois et sont destinées à la mise en relation avec SELARL LCC NOTAIRES. Conformément à la loi "informatique et libertés" et au RGPD, vous pouvez exercer vos droits d'opposition, d'accès, de rectification, d'effacement, de limitation et de portabilité en adressant un email à l'adresse suivante : [email protected]. Vous pouvez également adresser une réclamation auprés de la CNIL directement via son site internet www.cnil.fr.

Les champs obligatoires sont marqués *.

Contacter l'office notarial
SELARL LCC NOTAIRES

1 rue du Château
72540 LOUE

Tous les biens de l'office notarial
Votre contact : Pascal DESNOYER
SIRET:
822 252 276 00016
TVA Intra-communautaire:
FR86 822 252 276
/>