Immonot, l'immobilier des notaires
Achat - Maison
Cesson-Sévigné (35510)
174 410 €
167 000 € + Honoraires de négociation TTC : 7 410 €
Soit 4,44% à la charge de l'acquéreur
Numéro principal :
02.99.00.14.12 ou 02.99.00.67.67
Envoyer un email
Numéro principal :
02.99.00.14.12 ou 02.99.00.67.67
Email

Achat Maison Cesson-Sévigné (35510) 2 pièces 180 m2


Retour
174 410 €
167 000 € + Honoraires de négociation TTC : 7 410 €
Soit 4,44% à la charge de l'acquéreur
Tous les biens de l'office
174 410 €
167 000 € + Honoraires de négociation TTC : 7 410 €
Soit 4,44% à la charge de l'acquéreur
Barème des honoraires de négociation

Financer ce bien Assurance emprunteur
Déménagement Améliorer son Habitat
Caractéristiques
Surface habitable
180  m2
Surface terrain
1 233  m2
Pièces
2
Chambres
5
Année de construction
1800
Référence
019/5197 MCB

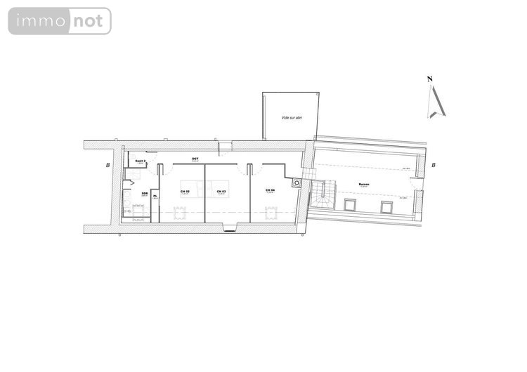
Maison à vendre à Cesson-Sévigné en Ille-et-Vilaine (35510), ref : 019/5197 MCB
campagne

CESSON SEVIGNE, Maison d'habitation - OFFICE NOTARIAL NICOLAZO, CESSON SEVIGNE. Bâtiment en pierres et terre à restaurer (lot D): En campagne proche de Noyal sur Vilaine, dans une environnement verdoyant et calme, belle bâtisse à rénover issue de la division d'un important corps de ferme en pierres du 18eme siècle. Le bien est vendu avec un projet en cours d'instruction . Venez découvrir le plan et le croquis de la rénovation dans les photos jointes. Le projet final comprend une maison de 180m² environ avec pièce de vie de 61m² exposée plein Sud et 5 chambres Zone naturelle PLUi de RENNES métropole, bâtiment classé 3 étoiles au PBIL. Le prix affiché ne tient pas compte du coût de la rénovation seulement de la viabilisation en eau, electricité et télécom. Prévoir assainissement. - Classe énergie : Non requis - Classe climat : Non requis - Prix Hon. Négo Inclus : 174 410 € dont 4,44% Hon. Négo TTC charge acq. Prix Hors Hon. Négo :167 000 € - Réf : 019/5197 MCB

Diagnostics (Dpe non requis)
DPE - Consommations énergétiques
A
B
C
D
E
F
G
Économe
Énergivore
Consommations énergétiques
Consommations énergétiques (en énergie primaire) pour le chauffage, la production d'eau chaude sanitaire et le refroidissement Indice de mesure : kWhEP/m 2 .an
GES - Émissions de gaz à effet de serre
A
B
C
D
E
F
G
Faible émission
Forte émission
Émissions de gaz à effet de serre
Émissions de gaz à effet de serre (GES) pour le chauffage, la production d'eau chaude sanitaire et le refroidissement Indice de mesure : kgeqCO2/m 2 .an
État des risques

Les informations sur les risques auxquels ce bien est exposé sont disponibles sur le site Géorisques : www.georisques.gouv.fr

Contacter l'office notarial
Mes M-P. NICOLAZO, J. NICOLAZO et L. MACE

11 place d'Haigerloch BP 63228
35532 NOYAL SUR VILAINE CEDEX

Tous les biens de l'office notarial

Formulaire de contact

Nous vous informons de l'existence de la liste d'opposition au démarchage téléphonique BLOCTEL sur laquelle vous pouvez vous inscrire bloctel.gouv.fr.

Confidentialité et conformité au RGPD.
Vos données personnelles sont traitées par Notariat Services en tant que responsable de traitement afin de répondre à votre demande de mise en relation avec Mes M-P. NICOLAZO, J. NICOLAZO et L. MACE. Les grandes lignes concernant la responsabilité liée à ce traitement effectué par Notariat Services sont disponibles ici. Vos données sont conservées pendant 36 mois et sont destinées à la mise en relation avec Mes M-P. NICOLAZO, J. NICOLAZO et L. MACE. Conformément à la loi "informatique et libertés" et au RGPD, vous pouvez exercer vos droits d'opposition, d'accès, de rectification, d'effacement, de limitation et de portabilité en adressant un email à l'adresse suivante : [email protected]. Vous pouvez également adresser une réclamation auprés de la CNIL directement via son site internet www.cnil.fr.

Les champs obligatoires sont marqués *.

Contacter l'office notarial
Mes M-P. NICOLAZO, J. NICOLAZO et L. MACE

11 place d'Haigerloch BP 63228
35532 NOYAL SUR VILAINE CEDEX

Tous les biens de l'office notarial
SIRET:
481 598 803 00015
TVA Intra-communautaire:
FR45 481 598 803
/>