Immonot, l'immobilier des notaires
Achat - Appartement
Rouen (76000)
178 500 €
170 000 € + Honoraires de négociation TTC : 8 500 €
Soit 5,0% à la charge de l'acquéreur
Numéro principal :
02.35.71.71.55
Envoyer un email
Numéro principal :
02.35.71.71.55
Email

Achat Appartement Rouen (76000) 98 m2


Retour
178 500 €
170 000 € + Honoraires de négociation TTC : 8 500 €
Soit 5,0% à la charge de l'acquéreur
Tous les biens de l'office
178 500 €
170 000 € + Honoraires de négociation TTC : 8 500 €
Soit 5,0% à la charge de l'acquéreur
Barème des honoraires de négociation

Financer ce bien Assurance emprunteur
Déménagement Améliorer son habitat
Caractéristiques
Surface habitable
98,28  m2
Surface terrain
328  m2
Chambres
2
Chauffage
Gaz
Référence
76007-758

Appartement à vendre à Rouen en Seine-Maritime (76000), ref : 76007-758

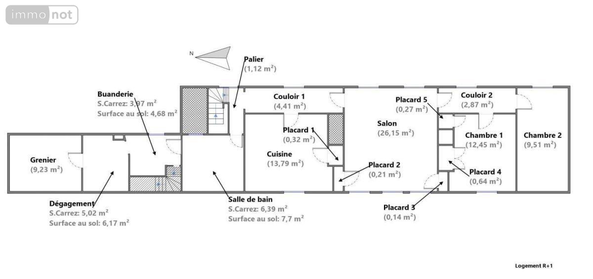
ROUEN Proche Place Beauvoisine: Appartement atypique d'environ 99M² habitable à rénover; Offrant Entrée indépendante avec W.c, accès a un Jardin privatif d'environ 55 M² avec Dépendances. A l'étage Séjour salon traversant de 26 M² avec parquet ancien, Cuisine indépendante, 2 Chambres, Salle de bains avec baignoire, Bureau et Celliers. Cave voutée en sous-sol. Très beau potentiel - prévoir travaux (mise aux normes électrique, isolation et aménagements intérieurs). Pour tous renseignements et visite contacter directement Mr Richard VIGREUX au 07.88.37.53.17.  Bien vendu soumis au statut de la copropriété La copropriété comprend 7 lots, partie de bâtiment comportant obligatoirement une partie privative et une quote-part de parties communes dans l'immeuble Le montant des charges annuelles est de 1500€ Pas de procédure en cours dans la copropriété Logement à consommation énergétique excessive Les informations sur les risques auxquels ce bien est exposé sont disponibles sur le site Géorisques : www. georisques. gouv. fr

Diagnostics (Réalisé le 04/03/2025 et présenté selon la référence en vigueur de 2021)

Consommation énergétique (dont Émissions de gaz à effet de serre)

A
B
C
D
E
433
F
G
Économe
Énergivore
Tableau de diagnostic de la performance énergétique des logements
Consommations énergétiques
Consommations énergétiques (en énergie primaire) pour le chauffage, la production d'eau chaude sanitaire et le refroidissement Indice de mesure : kWhEP/m 2 .an
A
B
C
D
E
82
F
G
Faible émission
Forte émission
Tableau de diagnostic de la performance énergétique des logements
Émissions de gaz à effet de serre
Émissions de gaz à effet de serre (GES) pour le chauffage, la production d'eau chaude sanitaire et le refroidissement Indice de mesure : kgeqCO2/m 2 .an

Estimation annuelle des coûts d'énergie du logement

Montant estimé des dépenses annuelle des coûts d'énergie du logement.

Entre 3610 € et 4960 € par an

Prix moyen des énergies indexées sur l'année de référence (abonnements compris)

État des risques

Les informations sur les risques auxquels ce bien est exposé sont disponibles sur le site Géorisques : www.georisques.gouv.fr

Contacter l'office notarial
SELARL TENIERE, BANVILLE, BARRY et LEROY-DUDONNE

14 rue Jean Lecanuet BP 580
76006 ROUEN CEDEX

Tous les biens de l'office notarial

Formulaire de contact

Nous vous informons de l'existence de la liste d'opposition au démarchage téléphonique BLOCTEL sur laquelle vous pouvez vous inscrire bloctel.gouv.fr.

Confidentialité et conformité au RGPD.
Vos données personnelles sont traitées par Notariat Services en tant que responsable de traitement afin de répondre à votre demande de mise en relation avec SELARL Bruno TENIERE, Olivier BANVILLE, Samuel BARRY et Caroline LEROY-DUDONNE. Les grandes lignes concernant la responsabilité liée à ce traitement effectué par Notariat Services sont disponibles ici. Vos données sont conservées pendant 36 mois et sont destinées à la mise en relation avec SELARL Bruno TENIERE, Olivier BANVILLE, Samuel BARRY et Caroline LEROY-DUDONNE. Conformément à la loi "informatique et libertés" et au RGPD, vous pouvez exercer vos droits d'opposition, d'accès, de rectification, d'effacement, de limitation et de portabilité en adressant un email à l'adresse suivante : [email protected]. Vous pouvez également adresser une réclamation auprés de la CNIL directement via son site internet www.cnil.fr.

Les champs obligatoires sont marqués *.
SIRET:
903 933 422 00011
TVA Intra-communautaire:
FR87 903 933 422
/>