Immonot, l'immobilier des notaires
Achat - Maison
Le Mans (72000)
194 250 €
185 000 € + Honoraires de négociation TTC : 9 250 €
Soit 5,0% à la charge de l'acquéreur
Numéro principal :
06 31 61 26 41
Envoyer un email
Numéro principal :
06 31 61 26 41
Email

Achat Maison Le Mans (72000) 6 pièces 74 m2


Retour
194 250 €
185 000 € + Honoraires de négociation TTC : 9 250 €
Soit 5,0% à la charge de l'acquéreur
Tous les biens de l'office
194 250 €
185 000 € + Honoraires de négociation TTC : 9 250 €
Soit 5,0% à la charge de l'acquéreur
Barème des honoraires de négociation

Financer ce bien Assurance Emprunteur
Déménagement Écorénover son logement
Caractéristiques
Surface habitable
74  m2
Surface terrain
157 m
Pièces
6
Chambres
3
Référence
13816/1194

Maison à vendre à Le Mans dans la Sarthe (72000), ref : 13816/1194
LIBERATION PATIS ST LAZARE

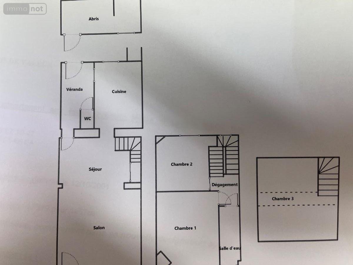
Maison à Vendre à Le Mans (72000) en Sarthe (72). Quartier libération /pâtis St Lazare. Cette maison 3 chambres, d'une surface habitable de 74 m² (pour 91,87m² de superficie plancher) est située sur un terrain de 157 m², avec dépendances.
COMPRENANT au rez-de-chaussée : Espace de vie intégrant dans un seul volume l'espace Séjour et Salon (11,44 et 21,55m²), Cuisine ( 9,80m²) aménagée et équipée, Véranda faisant office de buanderie (espace pour la machine à laver), donnant accès à un WC, et au terrain et ses dépendances. L'escalier d'accès à l'étage offre des espaces de rangements (placards sous marches). AU PREMIER ETAGE : Deux chambres indépendantes sur sols parquets (14,14m² et 9,80m²), Salle d'eau (3,87m²) avec WC, vasque, et douche large. AU DEUXIEME ETAGE, sous rampants (avec faible hauteur et velux), une troisième chambre offre une surface au sol de 19,90m². EN EXTERIEUR :Terrasse (travertin). Cave ( sous la cuisine, avec entrée couverte), Jardin clos. Un bâtiment en fond de parcelle, à usage de dépendance à usage d'espace rangement, (avec sol béton, et mezzanine). Éléments de confort et informations diverses : Huisseries qualitatives ( PVC-2V. et aluminium sur la véranda). Chauffage par chaudière gaz de ville (année 2014 de marque Vaillant. et radiateur électrique dans la chambre du deuxième étage). Quartier recherché (familial et paisible). La maison est à proximité de toutes les commodités dont super U, Écoles etc.. La maison ne dispose pas de Garage (stationnement public gratuit). Le Mans est une ville avec un riche patrimoine culturel, notamment la cathédrale Saint-Julien, ainsi que le célèbre circuit des 24 Heures du Mans. La ville propose diverses activités et services, tels que des écoles, des commerces, des espaces verts et un accès aux transports en commun. Les habitants peuvent profiter de l'animation du centre-ville ainsi que de la tranquillité des quartiers résidentiels. Le prix de vente de cette maison est de 194 250 euros. Contactez notre office notarial pour obtenir de plus amples renseignements sur cette maison à vendre à Le Mans.

Diagnostics (Réalisé le 04/02/2026 et présenté selon la référence en vigueur de 2021)

Consommation énergétique (dont Émissions de gaz à effet de serre)

A
B
C
D
193
E
F
G
Économe
Énergivore
Tableau de diagnostic de la performance énergétique des logements
Consommations énergétiques
Consommations énergétiques (en énergie primaire) pour le chauffage, la production d'eau chaude sanitaire et le refroidissement Indice de mesure : kWhEP/m 2 .an
A
B
C
D
42
E
F
G
Faible émission
Forte émission
Tableau de diagnostic de la performance énergétique des logements
Émissions de gaz à effet de serre
Émissions de gaz à effet de serre (GES) pour le chauffage, la production d'eau chaude sanitaire et le refroidissement Indice de mesure : kgeqCO2/m 2 .an

Estimation annuelle des coûts d'énergie du logement

Montant estimé des dépenses annuelle des coûts d'énergie du logement.

Entre 1340 € et 1860 € par an

Prix moyen des énergies indexées sur l'année de référence (abonnements compris)

État des risques

Les informations sur les risques auxquels ce bien est exposé sont disponibles sur le site Géorisques : www.georisques.gouv.fr

Contacter l'office notarial
SAS ALLIANCE RESEAU NOTAIRES

9 place du Château
72150 LE GRAND LUCE
Voir le site web
Tous les biens de l'office notarial
Votre contact : Grégory PILLAULT

Formulaire de contact

Nous vous informons de l'existence de la liste d'opposition au démarchage téléphonique BLOCTEL sur laquelle vous pouvez vous inscrire bloctel.gouv.fr.

Confidentialité et conformité au RGPD.
Vos données personnelles sont traitées par Notariat Services en tant que responsable de traitement afin de répondre à votre demande de mise en relation avec SAS ALLIANCE RESEAU NOTAIRES. Les grandes lignes concernant la responsabilité liée à ce traitement effectué par Notariat Services sont disponibles ici. Vos données sont conservées pendant 36 mois et sont destinées à la mise en relation avec SAS ALLIANCE RESEAU NOTAIRES. Conformément à la loi "informatique et libertés" et au RGPD, vous pouvez exercer vos droits d'opposition, d'accès, de rectification, d'effacement, de limitation et de portabilité en adressant un email à l'adresse suivante : [email protected]. Vous pouvez également adresser une réclamation auprés de la CNIL directement via son site internet www.cnil.fr.

Les champs obligatoires sont marqués *.

Contacter l'office notarial
SAS ALLIANCE RESEAU NOTAIRES

9 place du Château
72150 LE GRAND LUCE
Voir le site web
Tous les biens de l'office notarial
Votre contact : Grégory PILLAULT
SIRET:
531 373 744 00014
TVA Intra-communautaire:
FR61 531 373 744
/>