Immonot, l'immobilier des notaires
Achat - Maison
Labège (31670)
460 000 €
(Honoraires de négociation à la charge du vendeur)
Numéro principal :
05.62.71.78.39
Envoyer un email
Numéro principal :
05.62.71.78.39
Email

Achat Maison Labège (31670)  Villa 7 pièces 161 m2


Retour
460 000 €
(Honoraires de négociation à la charge du vendeur)
Tous les biens de l'office
460 000 €
(Honoraires de négociation à la charge du vendeur)
Barème des honoraires de négociation

Financer ce bien Assurance emprunteur
Déménagement Améliorer son habitat
Caractéristiques
Surface habitable
161  m2
Surface terrain
1 754  m2
Pièces
7
Chambres
5
Chauffage
Fuel
Taxe foncière
1792.0
Etat général
Bon
Meuble
Non
Année de construction
1966
Nombre d'étage(s)
1
Sous Sol
Oui
Cave
Oui
Terrasse
Oui
Place(s) parking
1
Garage
Oui
Garage(s)
2
Référence
341
Les +
Bus
Gare
Commerces
Ecole

Villa à vendre à Labège en Haute-Garonne (31670), ref : 341

Cause succession - Maison à vendre à Labège (31670)
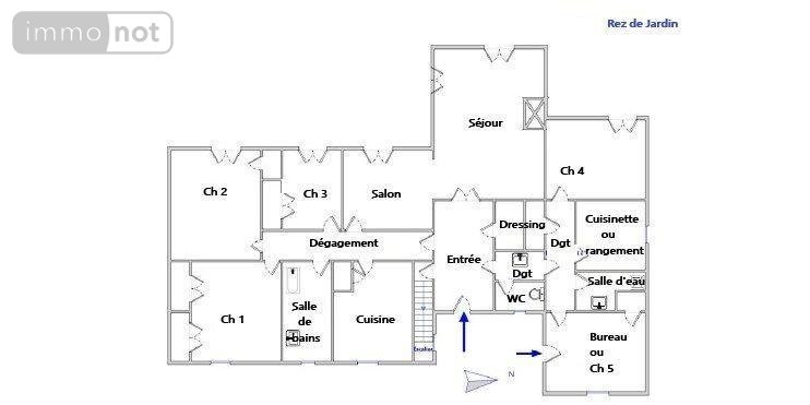
Dans un quartier résidentiel sur les hauteurs de Labège, belle villa cossue et de caractère, de type 6/7 sur un magnifique terrain de 1754 m².
Développant une surface habitable d'environ 161 m², elle se compose en rez de jardin d'un vaste espace de vie adapté à une famille, comprenant une entrée, un séjour avec salle à manger ouvrant directement sur le jardin, une cuisine, un coin nuit avec 3 chambres et une salle de bains. Distribué également par l'entrée, la maison possède un espace comprenant un bureau, une chambre, une cuisinette et une salle d'eau (possibilité de loger un proche, une gouvernante ou une jeune fille au pair, la possibilité d'en retirer aussi un revenu locatif car cet espace possède une entrée indépendante). Il peut également faire office d'un second coin nuit avec donc deux chambres supplémentaires.
Le bien dispose enfin d'une chambre-bureau en rez de chaussée, d'un grand garage, d'une buanderie et d'une pièce de stockage en sous-sol.
Le jardin est superbe. Arboré, fleuri et sans aucun vis à vis, il bénéficie d'une très belle vue sur la nature et les coteaux de Labège.
Des travaux de modernisation sont à prévoir pour remettre cette maison au goût du jour et améliorer ses performances énergétiques.
De par son emplacement, elle bénéficie de toutes les commodités qu'offrent la commune de Labège. Commodités en terme de mobilités (réseau routier développé, réseaux bus et vélo, gare à proximité et accès direct à la future ligne de métro en cours de construction), commodités également en terme d'établissements scolaires, de commerces et de services.
Une belle maison de famille à visiter sans tarder.

Villa à vendre à Labège en Haute-Garonne (31670), ref : 341

Cause succession - Maison à vendre à Labège (31670)
Dans un quartier résidentiel sur les hauteurs de Labège, belle villa cossue et de caractère, de type 6/7 sur un magnifique terrain de 1754 m².
Développant une surface habitable d'environ 161 m², elle se compose en rez de jardin d'un vaste espace de vie adapté à une famille, comprenant une entrée, un séjour avec salle à manger ouvrant directement sur le jardin, une cuisine, un coin nuit avec 3 chambres et une salle de bains. Distribué également par l'entrée, la maison possède un espace comprenant un bureau, une chambre, une cuisinette et une salle d'eau (possibilité de loger un proche, une gouvernante ou une jeune fille au pair, la possibilité d'en retirer aussi un revenu locatif car cet espace possède une entrée indépendante). Il peut également faire office d'un second coin nuit avec donc deux chambres supplémentaires.
Le bien dispose enfin d'une chambre-bureau en rez de chaussée, d'un grand garage, d'une buanderie et d'une pièce de stockage en sous-sol.
Le jardin est superbe. Arboré, fleuri et sans aucun vis à vis, il bénéficie d'une très belle vue sur la nature et les coteaux de Labège.
Des travaux de modernisation sont à prévoir pour remettre cette maison au goût du jour et améliorer ses performances énergétiques.
De par son emplacement, elle bénéficie de toutes les commodités qu'offrent la commune de Labège. Commodités en terme de mobilités (réseau routier développé, réseaux bus et vélo, gare à proximité et accès direct à la future ligne de métro en cours de construction), commodités également en terme d'établissements scolaires, de commerces et de services.
Une belle maison de famille à visiter sans tarder.

Villa à vendre à Labège en Haute-Garonne (31670), ref : 341

Cause succession - Maison à vendre à Labège (31670)
Dans un quartier résidentiel sur les hauteurs de Labège, belle villa cossue et de caractère, de type 6/7 sur un magnifique terrain de 1754 m².
Développant une surface habitable d'environ 161 m², elle se compose en rez de jardin d'un vaste espace de vie adapté à une famille, comprenant une entrée, un séjour avec salle à manger ouvrant directement sur le jardin, une cuisine, un coin nuit avec 3 chambres et une salle de bains. Distribué également par l'entrée, la maison possède un espace comprenant un bureau, une chambre, une cuisinette et une salle d'eau (possibilité de loger un proche, une gouvernante ou une jeune fille au pair, la possibilité d'en retirer aussi un revenu locatif car cet espace possède une entrée indépendante). Il peut également faire office d'un second coin nuit avec donc deux chambres supplémentaires.
Le bien dispose enfin d'une chambre-bureau en rez de chaussée, d'un grand garage, d'une buanderie et d'une pièce de stockage en sous-sol.
Le jardin est superbe. Arboré, fleuri et sans aucun vis à vis, il bénéficie d'une très belle vue sur la nature et les coteaux de Labège.
Des travaux de modernisation sont à prévoir pour remettre cette maison au goût du jour et améliorer ses performances énergétiques.
De par son emplacement, elle bénéficie de toutes les commodités qu'offrent la commune de Labège. Commodités en terme de mobilités (réseau routier développé, réseaux bus et vélo, gare à proximité et accès direct à la future ligne de métro en cours de construction), commodités également en terme d'établissements scolaires, de commerces et de services.
Une belle maison de famille à visiter sans tarder.

Diagnostics (Réalisé le 03/03/2025 et présenté selon la référence en vigueur de 2021)

Consommation énergétique (dont Émissions de gaz à effet de serre)

A
B
C
D
E
308
F
G
Économe
Énergivore
Tableau de diagnostic de la performance énergétique des logements
Consommations énergétiques
Consommations énergétiques (en énergie primaire) pour le chauffage, la production d'eau chaude sanitaire et le refroidissement Indice de mesure : kWhEP/m 2 .an
A
B
C
D
E
61
F
G
Faible émission
Forte émission
Tableau de diagnostic de la performance énergétique des logements
Émissions de gaz à effet de serre
Émissions de gaz à effet de serre (GES) pour le chauffage, la production d'eau chaude sanitaire et le refroidissement Indice de mesure : kgeqCO2/m 2 .an

Estimation annuelle des coûts d'énergie du logement

Montant estimé des dépenses annuelle des coûts d'énergie du logement.

Entre 4660 € et 6360 € par an

Prix moyen des énergies indexées sur l'année de référence (abonnements compris)

État des risques

Les informations sur les risques auxquels ce bien est exposé sont disponibles sur le site Géorisques : www.georisques.gouv.fr

Contacter l'office notarial
SCP N. BAYLE, B. SALES et B. SALES

Impasse des Genêts BP 52146
31320 CASTANET TOLOSAN

Tous les biens de l'office notarial
Votre contact : Mme Dominique SANGAY

Formulaire de contact

Nous vous informons de l'existence de la liste d'opposition au démarchage téléphonique BLOCTEL sur laquelle vous pouvez vous inscrire bloctel.gouv.fr.

Confidentialité et conformité au RGPD.
Vos données personnelles sont traitées par Notariat Services en tant que responsable de traitement afin de répondre à votre demande de mise en relation avec SCP Nathalie BAYLE, Benoît SALES et Bertrand SALES. Les grandes lignes concernant la responsabilité liée à ce traitement effectué par Notariat Services sont disponibles ici. Vos données sont conservées pendant 36 mois et sont destinées à la mise en relation avec SCP Nathalie BAYLE, Benoît SALES et Bertrand SALES. Conformément à la loi "informatique et libertés" et au RGPD, vous pouvez exercer vos droits d'opposition, d'accès, de rectification, d'effacement, de limitation et de portabilité en adressant un email à l'adresse suivante : [email protected]. Vous pouvez également adresser une réclamation auprés de la CNIL directement via son site internet www.cnil.fr.

Les champs obligatoires sont marqués *.

Contacter l'office notarial
SCP N. BAYLE, B. SALES et B. SALES

Impasse des Genêts BP 52146
31320 CASTANET TOLOSAN

Tous les biens de l'office notarial
Votre contact : Mme Dominique SANGAY
SIRET:
383 797 750 00023
TVA Intra-communautaire:
FR61 383 797 750
/>