Immonot, l'immobilier des notaires
Achat - Appartement
Angers (49000)
714 027,20 €
680 000 € + Honoraires de négociation TTC : 34 027,20 €
Soit 5,0% à la charge de l'acquéreur
Numéro principal :
02.41.51.50.36
Envoyer un email
Numéro principal :
02.41.51.50.36
Email

Achat Appartement Angers (49000) 262 m2


Retour
714 027,20 €
680 000 € + Honoraires de négociation TTC : 34 027,20 €
Soit 5,0% à la charge de l'acquéreur
Tous les biens de l'office
714 027,20 €
680 000 € + Honoraires de négociation TTC : 34 027,20 €
Soit 5,0% à la charge de l'acquéreur
Barème des honoraires de négociation

Financer ce bien Assurance Emprunteur
Déménagement Écorénover son logement
Caractéristiques
Surface habitable
262  m2
Surface terrain
486 m
Chauffage
Individuel
Etat général
Moyen
Garage
Oui
Référence
49046/829

Appartement à vendre à Angers dans le Maine-et-Loire (49000), ref : 49046/829

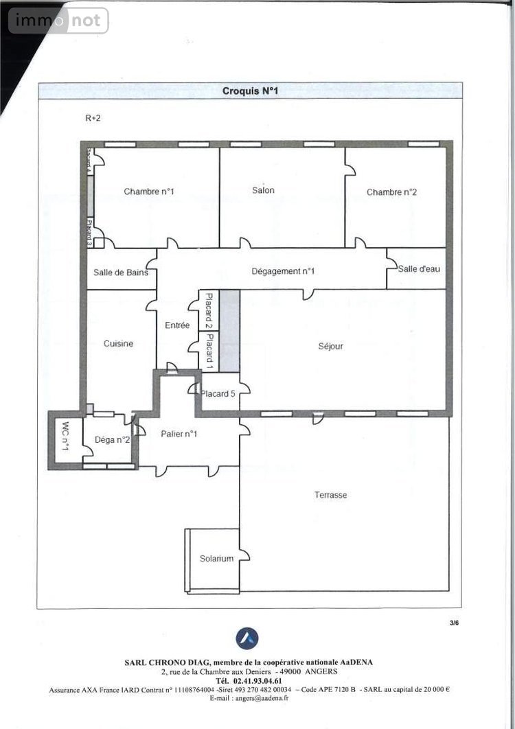
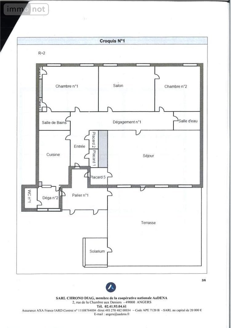
ANGERS, en plein coeur de ville, magnifique duplex de 261 m² avec une ascenseur privatif, terrasse et garage.
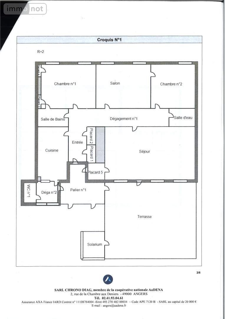
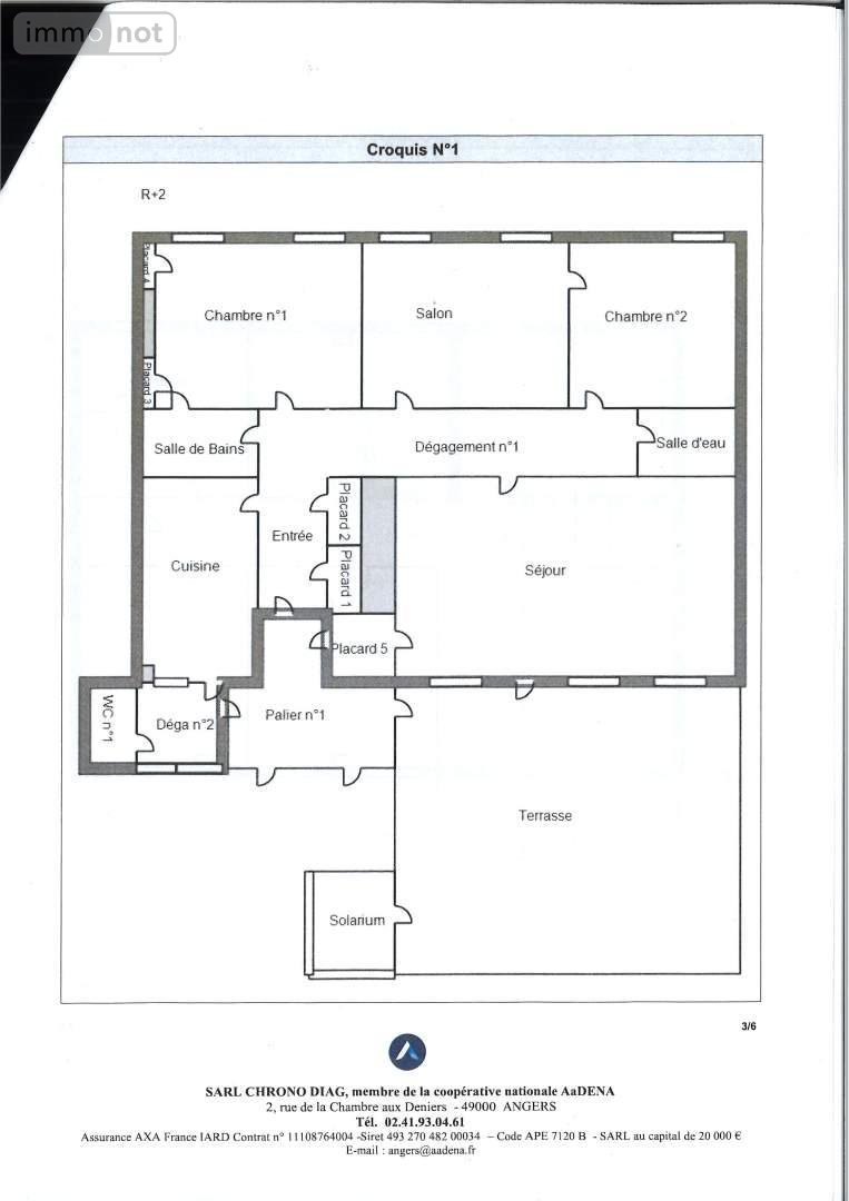
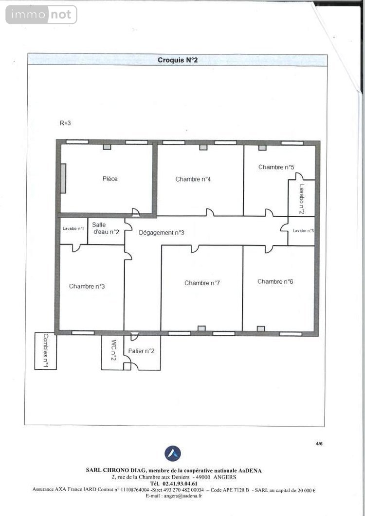
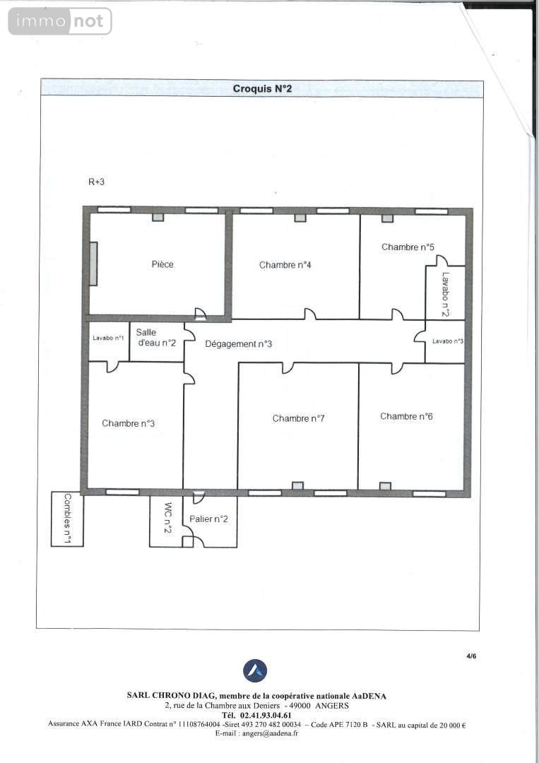
Au 1er niveau : entrée, cuisine équipée, salle de bains balnéo, salon et séjour lumineux ouvrant sur grande terrasse envion 70m²avec solarium, deux chambres, salle d'eau.
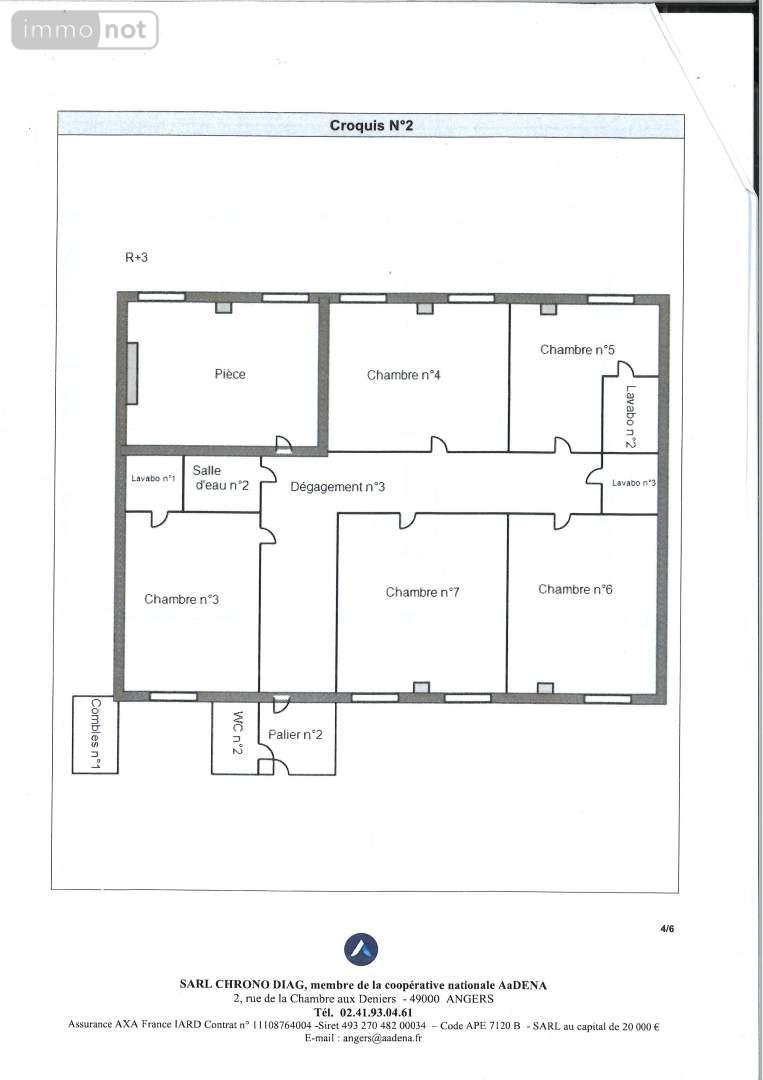
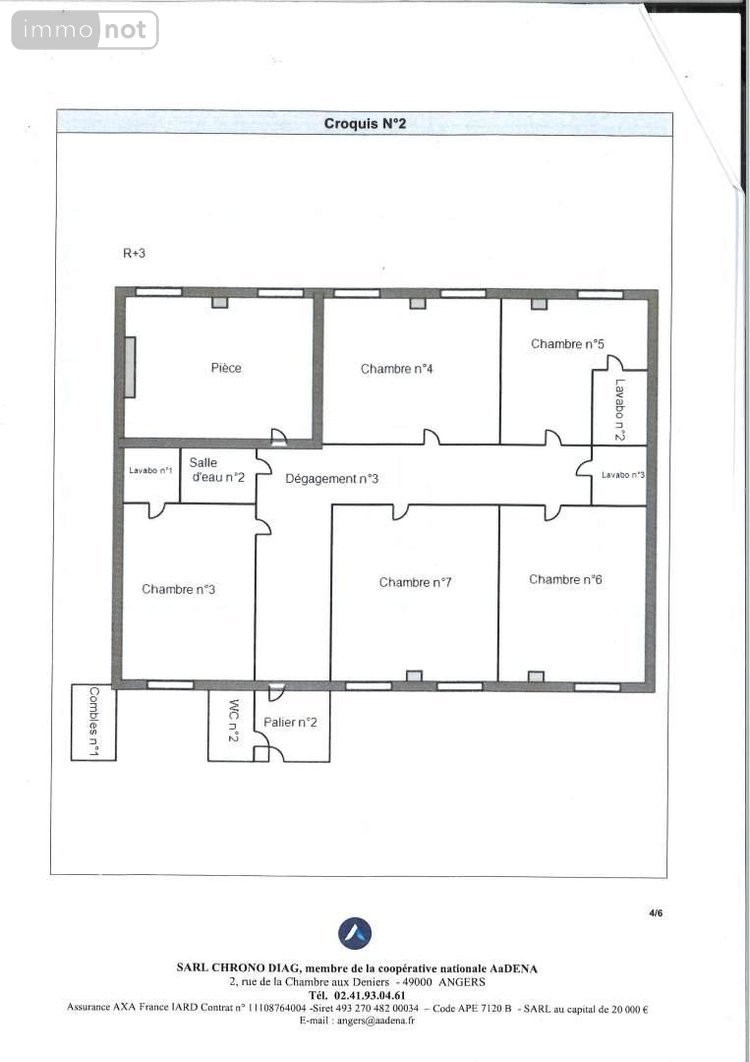
À l'étage : hall d'entrée, 5 chambres, salle d'eau, grenier.
Au rez-de-chaussée : parking sous porche pour 2 voitures
Au sous-sol : caves, chaudière gaz individuelle.
Nombres de lots à la vente 10 LOTS/30 LOTS
Les charges annuelles s'élèvent à 2548 €
- Classe énergie : D - Classe climat : D - Montant estimé des dépenses annuelles d'énergie pour un usage standard : 2502 à 3386 €. Copropiété de 14 lots - Prix Hon. Négo Inclus : 714 027 € dont 5,00% Hon. Négo TTC charge acq. Prix Hors Hon. Négo :680 000 € - Réf : 49046/829 - Les informations sur les risques auxquels ce bien est exposé sont disponibles sur le site Géorisques: www.georisques.gouv.fr

Bien en copropriété
Bien soumis à copropriété
Oui
Nbre de lots de la copropriété
30
Montant des charges prévisionnelles annuelles moyen
2548.0 €
Diagnostics (Réalisé le 27/03/2024 et présenté selon la référence en vigueur de 2021)

Consommation énergétique (dont Émissions de gaz à effet de serre)

A
B
C
D
169
E
F
G
Économe
Énergivore
Tableau de diagnostic de la performance énergétique des logements
Consommations énergétiques
Consommations énergétiques (en énergie primaire) pour le chauffage, la production d'eau chaude sanitaire et le refroidissement Indice de mesure : kWhEP/m 2 .an
A
B
C
D
34
E
F
G
Faible émission
Forte émission
Tableau de diagnostic de la performance énergétique des logements
Émissions de gaz à effet de serre
Émissions de gaz à effet de serre (GES) pour le chauffage, la production d'eau chaude sanitaire et le refroidissement Indice de mesure : kgeqCO2/m 2 .an

Estimation annuelle des coûts d'énergie du logement

Montant estimé des dépenses annuelle des coûts d'énergie du logement.

Entre 2502 € et 3386 € par an

Prix moyen des énergies indexées sur l'année de référence (abonnements compris)

État des risques

Les informations sur les risques auxquels ce bien est exposé sont disponibles sur le site Géorisques : www.georisques.gouv.fr

Contacter l'office notarial
SELARL BDM NOTAIRES

Route de Vernantes BP 5
49390 VERNOIL LE FOURRIER

Tous les biens de l'office notarial

Formulaire de contact

Nous vous informons de l'existence de la liste d'opposition au démarchage téléphonique BLOCTEL sur laquelle vous pouvez vous inscrire bloctel.gouv.fr.

Confidentialité et conformité au RGPD.
Vos données personnelles sont traitées par Notariat Services en tant que responsable de traitement afin de répondre à votre demande de mise en relation avec SELARL BDM NOTAIRES. Les grandes lignes concernant la responsabilité liée à ce traitement effectué par Notariat Services sont disponibles ici. Vos données sont conservées pendant 36 mois et sont destinées à la mise en relation avec SELARL BDM NOTAIRES. Conformément à la loi "informatique et libertés" et au RGPD, vous pouvez exercer vos droits d'opposition, d'accès, de rectification, d'effacement, de limitation et de portabilité en adressant un email à l'adresse suivante : [email protected]. Vous pouvez également adresser une réclamation auprés de la CNIL directement via son site internet www.cnil.fr.

Les champs obligatoires sont marqués *.

Contacter l'office notarial
SELARL BDM NOTAIRES

Route de Vernantes BP 5
49390 VERNOIL LE FOURRIER

Tous les biens de l'office notarial
SIRET:
892 276 692 00019
TVA Intra-communautaire:
FR46 892 276 692
/>