Immonot, l'immobilier des notaires
Achat - Maison
Loir en Vallée (72340)  (Ruillé-sur-Loir)
132 500 €
125 000 € + Honoraires de négociation TTC : 7 500 €
Soit 6,0% à la charge de l'acquéreur
Numéro principal :
06 31 61 26 41
Envoyer un email
Numéro principal :
06 31 61 26 41
Email

Achat Maison Loir en Vallée (72340)  (Ruillé-sur-Loir) 7 pièces 156 m2


Retour
132 500 €
125 000 € + Honoraires de négociation TTC : 7 500 €
Soit 6,0% à la charge de l'acquéreur
Tous les biens de l'office
132 500 €
125 000 € + Honoraires de négociation TTC : 7 500 €
Soit 6,0% à la charge de l'acquéreur
Barème des honoraires de négociation

Financer ce bien Assurance Emprunteur
Déménagement Écorénover son logement
Caractéristiques
Surface habitable
156,50  m2
Surface terrain
1 017 m
Pièces
7
Chambres
3
Référence
13816/1199

Maison à vendre à Loir en Vallée dans la Sarthe (72340), ref : 13816/1199
HAMEAU CAMPAGNE PROCHE VIGNES

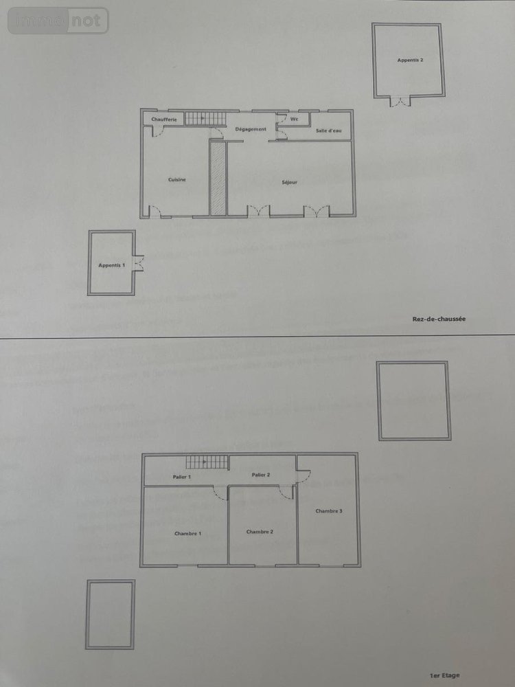
Maison à vendre à Loir en Vallée- Ruillé sur loir (72340) en Sud Sarthe (72) entre Tours et Mans. Cette maison vendue avec ses meubles, possède un environnement privilégié dans un petit hameau au pied des vignes. Sa superficie habitable est de 156,50m² ( pour 165,57m² construits), et son terrain (avec piscine) mesure 1017m². MAISON COMPRENANT EN REZ-DE-CHAUSSEE : Salon/salle à mange (41,58m²) avec cheminée insert et bibliothèque intégrée (Deux portes vitrées sur terrasse et jardin),Cuisine (23,52m²) aménagée (cheminée et poêle à bois), Chaufferie (2,53m²), Dégagement (6,48m²), WC (suspendu_), Salle d'eau (6,23m²) avec double vasques et douche à l'italienne. EN ETAGE (Accessible par escalier équipé d'une monte personnes). Piece palière (8,71m²) avec placards, et dégagement desservants trois chambres indépendantes (dont une avec lavabo). La superficie des chambres est de 20,98m² (pour 22,88m² au sol), 17,05m² (pour 17,83m² au sol), 22,34m² (pour 24,28m² au sol). EN EXTERIEUR: Prise pour voiture électrique. deux dépendances (15m² et 6,5m²), En fond de parcelle : petite piscine couverte (dôme). CONFORT: Huisseries bois en simples vitrages et survitrages, Présence d'une pompe à chaleur (air/eau) complément par radiateurs électriques et cheminées. Embellissements en bon état (poutres avec cachet de l'ancien et éléments boisées lambrissés sous rampants à l'étage). PREVOIR REMISE AUX NORMES ASSAINISSEMENT INDIVIDUEL. À Loir en Vallée, dans le département de la Sarthe, maison à vendre d'une surface habitable de 156,5 m² sur un terrain de 1 017 m². Ce bien comprend sept pièces dont trois chambres, une salle de bains, un séjour, une cuisine, un espace buanderie. Un garage est également mis à disposition. Le chauffage fonctionne sur un mode individuel. Les accès sont facilités par la proximité avec les axes routiers principaux. La commune de Loir en Vallée se situe dans un secteur offrant différents services : écoles, commerces de proximité, structures sportives, établissements de santé. La ville est traversée par le Loir et propose des espaces verts accessibles au public, des sentiers de promenade et un patrimoine local varié. Le secteur est desservi par les transports scolaires et des lignes de transports régionaux. La région compte aussi plusieurs marchés hebdomadaires et manifestations culturelles. Le prix de vente s'élève à 132 500 euros. Contactez notre office notarial pour obtenir de plus amples renseignements sur cette maison à vendre à Loir en Vallée.

Maison à vendre à Loir en Vallée dans la Sarthe (72340), ref : 13816/1199
HAMEAU CAMPAGNE PROCHE VIGNES

House for Sale in Loir en Vallée (72340) in Sarthe (72)
Located in Loir en Vallée, this house offers a living area of 156.5 square meters on a plot of 1017 square meters. The property consists of 7 rooms in total, including 3 bedrooms. The layout provides multiple options for different living arrangements or workspaces. The number of rooms can accommodate various needs such as a living room, dining area, and additional space for offices or storage.
The house is positioned within the locality of Loir en Vallée, situated in the Sarthe department. The surrounding area offers access to local points of interest such as the Loir Valley, known for its natural landscapes and outdoor activities. Nearby amenities include shops, schools, and public services accessible within the commune and the broader Sarthe region.
Transportation options are available via road networks that connect Loir en Vallée to larger towns and cities within Pays de la Loire. The local area is also served by various community facilities and recreational opportunities.
The sale price for this property is 132,500 euros. All legal and administrative information regarding the transaction is available upon request.
Contact our notarial office for further information regarding this house for sale in Loir en Vallée.

Diagnostics (Réalisé le 20/02/2026 et présenté selon la référence en vigueur de 2021)

Consommation énergétique (dont Émissions de gaz à effet de serre)

A
B
C
D
E
283
F
G
Économe
Énergivore
Tableau de diagnostic de la performance énergétique des logements
Consommations énergétiques
Consommations énergétiques (en énergie primaire) pour le chauffage, la production d'eau chaude sanitaire et le refroidissement Indice de mesure : kWhEP/m 2 .an
A
B
10
C
D
E
F
G
Faible émission
Forte émission
Tableau de diagnostic de la performance énergétique des logements
Émissions de gaz à effet de serre
Émissions de gaz à effet de serre (GES) pour le chauffage, la production d'eau chaude sanitaire et le refroidissement Indice de mesure : kgeqCO2/m 2 .an

Estimation annuelle des coûts d'énergie du logement

Montant estimé des dépenses annuelle des coûts d'énergie du logement.

Entre 3150 € et 4330 € par an

Prix moyen des énergies indexées sur l'année de référence (abonnements compris)

État des risques

Les informations sur les risques auxquels ce bien est exposé sont disponibles sur le site Géorisques : www.georisques.gouv.fr

Contacter l'office notarial
SAS ALLIANCE RESEAU NOTAIRES

9 place du Château
72150 LE GRAND LUCE
Voir le site web
Tous les biens de l'office notarial
Votre contact : Grégory PILLAULT

Formulaire de contact

Nous vous informons de l'existence de la liste d'opposition au démarchage téléphonique BLOCTEL sur laquelle vous pouvez vous inscrire bloctel.gouv.fr.

Confidentialité et conformité au RGPD.
Vos données personnelles sont traitées par Notariat Services en tant que responsable de traitement afin de répondre à votre demande de mise en relation avec SAS ALLIANCE RESEAU NOTAIRES. Les grandes lignes concernant la responsabilité liée à ce traitement effectué par Notariat Services sont disponibles ici. Vos données sont conservées pendant 36 mois et sont destinées à la mise en relation avec SAS ALLIANCE RESEAU NOTAIRES. Conformément à la loi "informatique et libertés" et au RGPD, vous pouvez exercer vos droits d'opposition, d'accès, de rectification, d'effacement, de limitation et de portabilité en adressant un email à l'adresse suivante : [email protected]. Vous pouvez également adresser une réclamation auprés de la CNIL directement via son site internet www.cnil.fr.

Les champs obligatoires sont marqués *.

Contacter l'office notarial
SAS ALLIANCE RESEAU NOTAIRES

9 place du Château
72150 LE GRAND LUCE
Voir le site web
Tous les biens de l'office notarial
Votre contact : Grégory PILLAULT
SIRET:
531 373 744 00014
TVA Intra-communautaire:
FR61 531 373 744
/>