Immonot, l'immobilier des notaires
Achat - Maison
Châlette-sur-Loing (45120)
109 120 €
(Honoraires de négociation à la charge du vendeur)
Numéro principal :
06.58.59.11.72
Envoyer un email
Numéro principal :
06.58.59.11.72
Email

Achat Maison Châlette-sur-Loing (45120) 4 pièces 70 m2


Retour
109 120 €
(Honoraires de négociation à la charge du vendeur)
Tous les biens de l'office
109 120 €
(Honoraires de négociation à la charge du vendeur)
Barème des honoraires de négociation

Financer ce bien Assurance emprunteur
Déménagement Améliorer son habitat
Caractéristiques
Surface habitable
70  m2
Surface terrain
407  m2
Pièces
4
Chambres
3
Référence
45051-452

Maison à vendre à Châlette-sur-Loing dans le Loiret (45120), ref : 45051-452

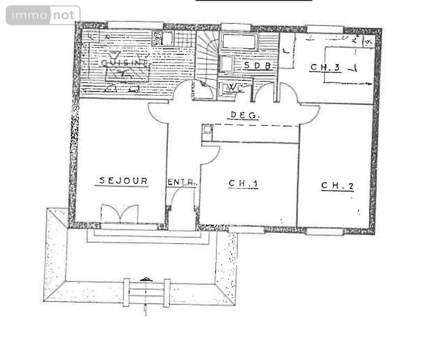
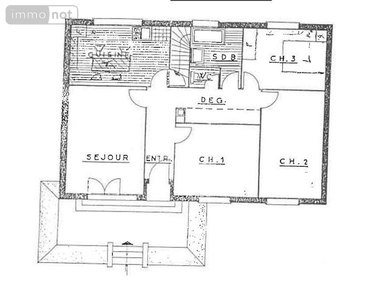
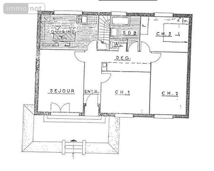
CHALETTE SUR LOING Le Lancy, proche des commerces à pieds, une maison de 70 m², jumelée d'un côté pour partie, élevée sur sous-sol total divisé en garage, chaufferie/atelier, et comprenant : entrée, séjour (14 m²), cuisine (10.25 m²) 3 chambres (10.4 m², 12 m² et 9 m²), salle de bains (4.2 m²), W.C.
Prestations : double-vitrage bois, volets roulants électrique, chauffage central gaz de ville (chaudière récente de 2016), tout à l'égout.
Travaux à prévoir : amélioration de la performance énergétique, électricité.
Jardin de 407 m², avec terrasse à l'avant.

Diagnostics (Réalisé le 02/09/2025 et présenté selon la référence en vigueur de 2021)

Consommation énergétique (dont Émissions de gaz à effet de serre)

A
B
C
D
E
F
340
G
Économe
Énergivore
Tableau de diagnostic de la performance énergétique des logements
Consommations énergétiques
Consommations énergétiques (en énergie primaire) pour le chauffage, la production d'eau chaude sanitaire et le refroidissement Indice de mesure : kWhEP/m 2 .an
A
B
C
D
E
F
71
G
Faible émission
Forte émission
Tableau de diagnostic de la performance énergétique des logements
Émissions de gaz à effet de serre
Émissions de gaz à effet de serre (GES) pour le chauffage, la production d'eau chaude sanitaire et le refroidissement Indice de mesure : kgeqCO2/m 2 .an

Logement à consommation énergétique excessive

Estimation annuelle des coûts d'énergie du logement

Montant estimé des dépenses annuelle des coûts d'énergie du logement.

Entre 2150 € et 2970 € par an

Prix moyen des énergies indexées sur l'année de référence (abonnements compris)

État des risques

Les informations sur les risques auxquels ce bien est exposé sont disponibles sur le site Géorisques : www.georisques.gouv.fr

Contacter l'office notarial
SARL EMMANUEL COLLET NOTAIRE

47 rue Gambetta BP 117
45201 MONTARGIS CEDEX

Tous les biens de l'office notarial

Formulaire de contact

Nous vous informons de l'existence de la liste d'opposition au démarchage téléphonique BLOCTEL sur laquelle vous pouvez vous inscrire bloctel.gouv.fr.

Confidentialité et conformité au RGPD.
Vos données personnelles sont traitées par Notariat Services en tant que responsable de traitement afin de répondre à votre demande de mise en relation avec SARL EMMANUEL COLLET NOTAIRE. Les grandes lignes concernant la responsabilité liée à ce traitement effectué par Notariat Services sont disponibles ici. Vos données sont conservées pendant 36 mois et sont destinées à la mise en relation avec SARL EMMANUEL COLLET NOTAIRE. Conformément à la loi "informatique et libertés" et au RGPD, vous pouvez exercer vos droits d'opposition, d'accès, de rectification, d'effacement, de limitation et de portabilité en adressant un email à l'adresse suivante : [email protected]. Vous pouvez également adresser une réclamation auprés de la CNIL directement via son site internet www.cnil.fr.

Les champs obligatoires sont marqués *.

Contacter l'office notarial
SARL EMMANUEL COLLET NOTAIRE

47 rue Gambetta BP 117
45201 MONTARGIS CEDEX

Tous les biens de l'office notarial
SIRET:
452 316 631 00020
TVA Intra-communautaire:
FR27 452 316 631
/>