Immonot, l'immobilier des notaires
Achat - Appartement
Pacé (35740)
397 000 €
(Honoraires de négociation à la charge du vendeur)
Numéro principal :
02 23 22 60 16
Envoyer un email
Numéro principal :
02 23 22 60 16
Email

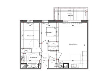
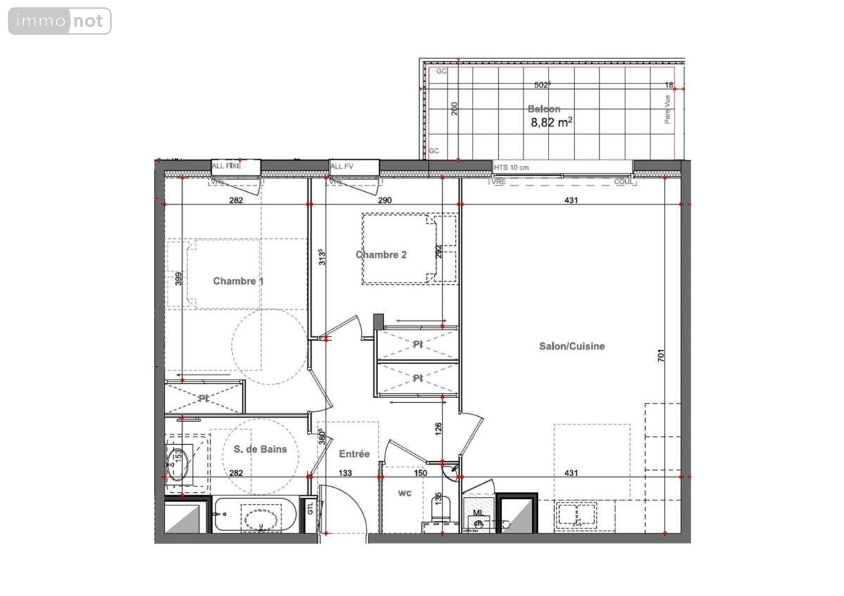
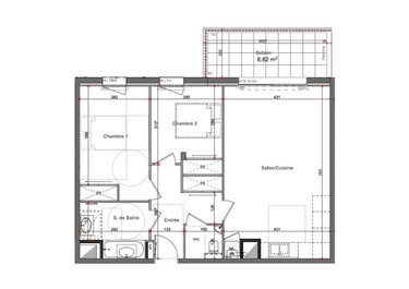
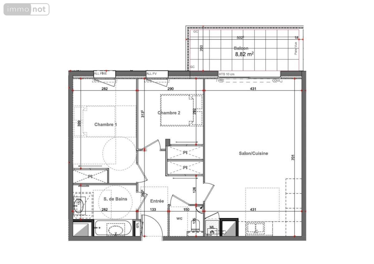
Achat Appartement Pacé (35740) 3 pièces 67 m2


Retour
397 000 €
(Honoraires de négociation à la charge du vendeur)
Tous les biens de l'office
397 000 €
(Honoraires de négociation à la charge du vendeur)
Barème des honoraires de négociation

Financer ce bien Assurer
Déménagement Améliorer son Habitat
Caractéristiques
Surface habitable
67,91  m2
Pièces
3
Chambres
2
Référence
35021-2066

Appartement à vendre à Pacé en Ille-et-Vilaine (35740), ref : 35021-2066

Au coeur du centre ville de Pacé, à l'angle de l'Avenue Le Brix et la Rue du père Grignon de Montfort, découvrez cette résidence composée de 30 logements du T2 au T5. Chaque appartement se prolonge par un balcon ou une terrasse. Logements fonctionnels et confortables aux prestations de qualités. Découvrez cet appartement T3 de 67.91m², situé au 1er étage et exposé Est. Il se compose d'une entrée, un séjour donnant accès à un balcon de 9m², 2 chambres, une salle de bains et wc séparé. Un parking en sous-sol et une cave viennent compléter cet ensemble. Livraison été 2026. Pour plus de renseignements, contactez Jessy BAGOT au 07 43 40 12 85 - Etude notarial de Maître GRATESAC à PACE. Bien vendu soumis au statut de la copropriété Pas de procédure en cours dans la copropriété Les informations sur les risques auxquels ce bien est exposé sont disponibles sur le site Géorisques : www. georisques.gouv.fr

Diagnostics (Dpe non requis)
A
B
C
D
E
F
G
Économe
Énergivore
Consommations énergétiques
Consommations énergétiques (en énergie primaire) pour le chauffage, la production d'eau chaude sanitaire et le refroidissement Indice de mesure : kWhEP/m 2 .an
A
B
C
D
E
F
G
Faible émission
Forte émission
Émissions de gaz à effet de serre
Émissions de gaz à effet de serre (GES) pour le chauffage, la production d'eau chaude sanitaire et le refroidissement Indice de mesure : kgeqCO2/m 2 .an
État des risques

Les informations sur les risques auxquels ce bien est exposé sont disponibles sur le site Géorisques : www.georisques.gouv.fr

Contacter l'office notarial
SCP LECOQ, LEGRAIN et GRATESAC

3 rue Chateaubriand
35740 PACE

Tous les biens de l'office notarial
Votre contact : Jessy BAGOT

Formulaire de contact

Nous vous informons de l'existence de la liste d'opposition au démarchage téléphonique BLOCTEL sur laquelle vous pouvez vous inscrire bloctel.gouv.fr.

Confidentialité et conformité au RGPD.
Vos données personnelles sont traitées par Notariat Services en tant que responsable de traitement afin de répondre à votre demande de mise en relation avec SCP Guillaume LECOQ, Sébastien LEGRAIN et Yann GRATESAC. Les grandes lignes concernant la responsabilité liée à ce traitement effectué par Notariat Services sont disponibles ici. Vos données sont conservées pendant 36 mois et sont destinées à la mise en relation avec SCP Guillaume LECOQ, Sébastien LEGRAIN et Yann GRATESAC. Conformément à la loi "informatique et libertés" et au RGPD, vous pouvez exercer vos droits d'opposition, d'accès, de rectification, d'effacement, de limitation et de portabilité en adressant un email à l'adresse suivante : [email protected]. Vous pouvez également adresser une réclamation auprés de la CNIL directement via son site internet www.cnil.fr.

Les champs obligatoires sont marqués *.

Contacter l'office notarial
SCP LECOQ, LEGRAIN et GRATESAC

3 rue Chateaubriand
35740 PACE

Tous les biens de l'office notarial
Votre contact : Jessy BAGOT
SIRET:
422 306 266 00012
TVA Intra-communautaire:
FR64 422 306 266
/>