Immonot, l'immobilier des notaires
Achat - Maison
Champagnac (15350)
116 600 €
(Honoraires de négociation à la charge du vendeur)
Numéro principal :
06 72 59 35 82
Envoyer un email
Numéro principal :
06 72 59 35 82
Email

Achat Maison Champagnac (15350)  Maison individuelle 6 pièces 122 m2


Retour
116 600 €
(Honoraires de négociation à la charge du vendeur)
Tous les biens de l'office
116 600 €
(Honoraires de négociation à la charge du vendeur)
Barème des honoraires de négociation

Financer ce bien Assurance emprunteur
Déménagement Améliorer son habitat
Caractéristiques
Surface habitable
122,32  m2
Surface terrain
2 533 m
Pièces
6
Chambres
4
Chauffage
Fioul
Meuble
non
Garage
Oui
Référence
97T-15029

Maison individuelle à vendre à Champagnac dans le Cantal (15350), ref : 97T-15029

Située dans un environnement calme, à proximité immédiate des commodités, cette agréable maison lumineuse offre de beaux volumes et un agencement fonctionnel.
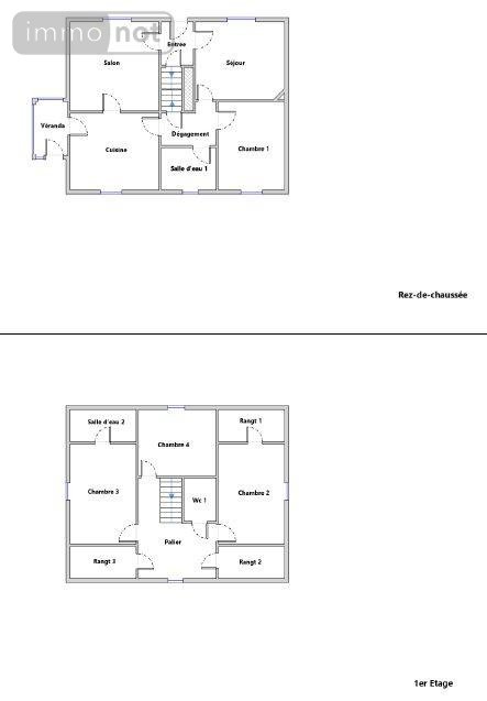
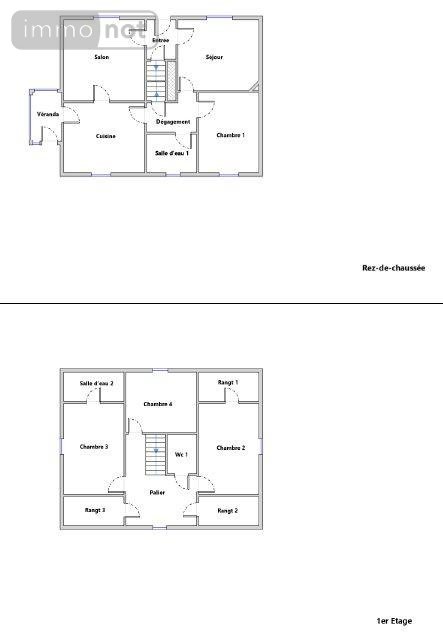
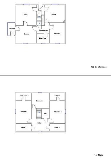
Au rez-de-chaussée, vous découvrirez une entrée, un séjour convivial, une cuisine, une véranda baignée de lumière, une salle à manger, ainsi qu'une chambre et une salle d'eau avec WC, permettant une vie de plain-pied confortable.
À l'étage, un palier dessert trois chambres, dont deux équipées d'un point d'eau, un WC indépendant, ainsi que deux espaces grenier aménageables, offrant un beau potentiel d'agrandissement.
La maison dispose également d'un sous-sol total et d'un garage indépendant.
L'ensemble est édifié sur un terrain d'environ 2 533 m², idéal pour profiter d'un cadre verdoyant et paisible.
VISITE VIRTUELLE disponible sur demande.
Honoraires à la charge du vendeur. Logement à consommation énergétique excessive : Classe énergie G, Classe climat G Montant estimé des dépenses annuelles d'énergie pour un usage standard : entre 6590.00 € et 8980.00 € sur les années 2021, 2022 et 2023 (abonnements compris). Les informations sur les risques auxquels ce bien est exposé sont disponibles sur le site Géorisques : georisques.gouv.fr.

Diagnostics (Réalisé le 16/01/2026 et présenté selon la référence en vigueur de 2021)

Consommation énergétique (dont Émissions de gaz à effet de serre)

A
B
C
D
E
F
G
435
Économe
Énergivore
Tableau de diagnostic de la performance énergétique des logements
Consommations énergétiques
Consommations énergétiques (en énergie primaire) pour le chauffage, la production d'eau chaude sanitaire et le refroidissement Indice de mesure : kWhEP/m 2 .an
A
B
C
D
E
F
G
128
Faible émission
Forte émission
Tableau de diagnostic de la performance énergétique des logements
Émissions de gaz à effet de serre
Émissions de gaz à effet de serre (GES) pour le chauffage, la production d'eau chaude sanitaire et le refroidissement Indice de mesure : kgeqCO2/m 2 .an

Logement à consommation énergétique excessive

Estimation annuelle des coûts d'énergie du logement

Montant estimé des dépenses annuelle des coûts d'énergie du logement.

Entre 6590 € et 8980 € par an

Prix moyen des énergies indexées sur l'année de référence (abonnements compris)

État des risques

Les informations sur les risques auxquels ce bien est exposé sont disponibles sur le site Géorisques : www.georisques.gouv.fr

Contacter l'office notarial
SELARL BESSON SUBERT et MINASSIAN, Notaires

Place de la Liberté
15210 YDES

Tous les biens de l'office notarial

Formulaire de contact

Nous vous informons de l'existence de la liste d'opposition au démarchage téléphonique BLOCTEL sur laquelle vous pouvez vous inscrire bloctel.gouv.fr.

Confidentialité et conformité au RGPD.
Vos données personnelles sont traitées par Notariat Services en tant que responsable de traitement afin de répondre à votre demande de mise en relation avec SELARL BESSON SUBERT et MINASSIAN, Notaires. Les grandes lignes concernant la responsabilité liée à ce traitement effectué par Notariat Services sont disponibles ici. Vos données sont conservées pendant 36 mois et sont destinées à la mise en relation avec SELARL BESSON SUBERT et MINASSIAN, Notaires. Conformément à la loi "informatique et libertés" et au RGPD, vous pouvez exercer vos droits d'opposition, d'accès, de rectification, d'effacement, de limitation et de portabilité en adressant un email à l'adresse suivante : [email protected]. Vous pouvez également adresser une réclamation auprés de la CNIL directement via son site internet www.cnil.fr.

Les champs obligatoires sont marqués *.
SIRET:
389 266 123 00030
TVA Intra-communautaire:
FR55 389 266 123
/>