Immonot, l'immobilier des notaires
Achat - Maison
Champagnac (15350)
76 300 €
(Honoraires de négociation à la charge du vendeur)
Numéro principal :
06 72 59 35 82
Envoyer un email
Numéro principal :
06 72 59 35 82
Email

Achat Maison Champagnac (15350) 4 pièces 97 m2


Retour
76 300 €
(Honoraires de négociation à la charge du vendeur)
Tous les biens de l'office
76 300 €
(Honoraires de négociation à la charge du vendeur)
Barème des honoraires de négociation

Financer ce bien Assurance Emprunteur
Déménagement Améliorer son habitat
Caractéristiques
Surface habitable
97,71  m2
Surface terrain
746 m
Pièces
4
Chambres
2
Chauffage
Electrique
Meuble
non
Garage
Oui
Référence
99T-15029

Maison à vendre à Champagnac dans le Cantal (15350), ref : 99T-15029

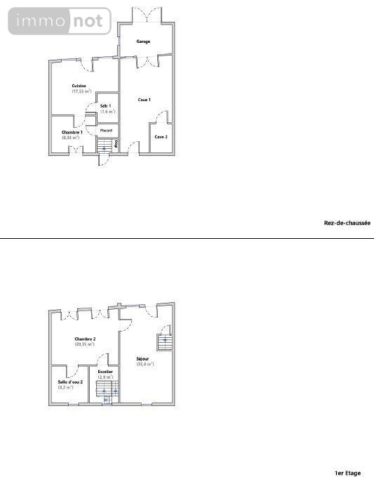
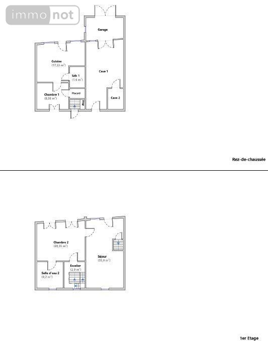
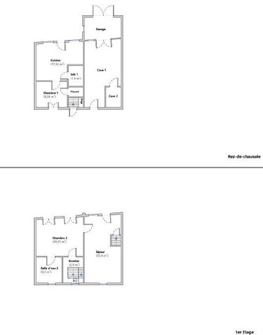
Située au cœur du bourg de Champagnac, à proximité immédiate des commodités, cette charmante maison en pierre offre un beau potentiel grâce à ses deux parties habitables indépendantes.
À l'étage principal, vous découvrirez un séjour avec cuisine et cantou, une chambre avec cheminée, ainsi qu'une salle d'eau avec WC.
Le deuxième étage se compose de deux espaces de combles aménageables, offrant des possibilités d'agrandissement supplémentaires.
En rez-de-chaussée, la maison dispose également d'un appartement indépendant comprenant un séjour-cuisine, une chambre, une salle d'eau avec WC et une cave. Un garage complète ce niveau.
L'ensemble à rénover est implanté sur un terrain d'environ 466 m², avec en complément un jardin non attenant d'environ 280 m².
VISITE VIRTUELLE disponible sur demande.
Honoraires à la charge du vendeur. Logement à consommation énergétique excessive : Classe énergie G, Classe climat C Montant estimé des dépenses annuelles d'énergie pour un usage standard : entre 3927.00 € et 5314.00 € sur les années 2021, 2022 et 2023 (abonnements compris). Les informations sur les risques auxquels ce bien est exposé sont disponibles sur le site Géorisques : georisques.gouv.fr.

Diagnostics (Réalisé le 12/12/2025 et présenté selon la référence en vigueur de 2021)

Consommation énergétique (dont Émissions de gaz à effet de serre)

A
B
C
D
E
F
G
529
Économe
Énergivore
Tableau de diagnostic de la performance énergétique des logements
Consommations énergétiques
Consommations énergétiques (en énergie primaire) pour le chauffage, la production d'eau chaude sanitaire et le refroidissement Indice de mesure : kWhEP/m 2 .an
A
B
C
20
D
E
F
G
Faible émission
Forte émission
Tableau de diagnostic de la performance énergétique des logements
Émissions de gaz à effet de serre
Émissions de gaz à effet de serre (GES) pour le chauffage, la production d'eau chaude sanitaire et le refroidissement Indice de mesure : kgeqCO2/m 2 .an

Logement à consommation énergétique excessive

Estimation annuelle des coûts d'énergie du logement

Montant estimé des dépenses annuelle des coûts d'énergie du logement.

Entre 3927 € et 5314 € par an

Prix moyen des énergies indexées sur l'année de référence (abonnements compris)

État des risques

Les informations sur les risques auxquels ce bien est exposé sont disponibles sur le site Géorisques : www.georisques.gouv.fr

Contacter l'office notarial
SELARL BESSON SUBERT et MINASSIAN, Notaires

Place de la Liberté
15210 YDES

Tous les biens de l'office notarial

Formulaire de contact

Nous vous informons de l'existence de la liste d'opposition au démarchage téléphonique BLOCTEL sur laquelle vous pouvez vous inscrire bloctel.gouv.fr.

Confidentialité et conformité au RGPD.
Vos données personnelles sont traitées par Notariat Services en tant que responsable de traitement afin de répondre à votre demande de mise en relation avec SELARL BESSON SUBERT et MINASSIAN, Notaires. Les grandes lignes concernant la responsabilité liée à ce traitement effectué par Notariat Services sont disponibles ici. Vos données sont conservées pendant 36 mois et sont destinées à la mise en relation avec SELARL BESSON SUBERT et MINASSIAN, Notaires. Conformément à la loi "informatique et libertés" et au RGPD, vous pouvez exercer vos droits d'opposition, d'accès, de rectification, d'effacement, de limitation et de portabilité en adressant un email à l'adresse suivante : [email protected]. Vous pouvez également adresser une réclamation auprés de la CNIL directement via son site internet www.cnil.fr.

Les champs obligatoires sont marqués *.
SIRET:
389 266 123 00030
TVA Intra-communautaire:
FR55 389 266 123
/>