Immonot, l'immobilier des notaires
Achat - Maison
Ydes (15210)
74 200 €
(Honoraires de négociation à la charge du vendeur)
Numéro principal :
06 72 59 35 82
Envoyer un email
Numéro principal :
06 72 59 35 82
Email

Achat Maison Ydes (15210)  Maison individuelle 4 pièces 69 m2


Retour
74 200 €
(Honoraires de négociation à la charge du vendeur)
Tous les biens de l'office
74 200 €
(Honoraires de négociation à la charge du vendeur)
Barème des honoraires de négociation

Financer ce bien Assurance emprunteur
Déménagement Améliorer son habitat
Caractéristiques
Surface habitable
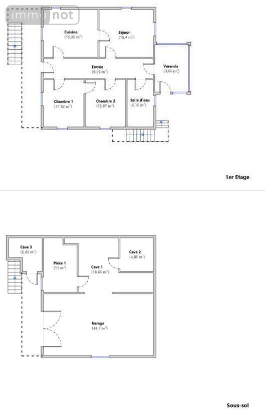
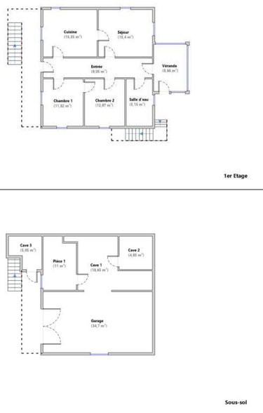
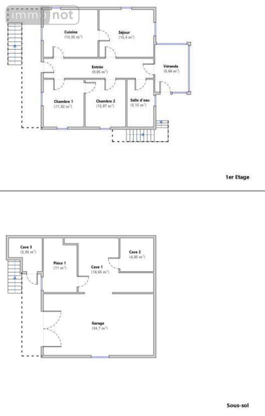
69,74  m2
Surface terrain
1 432  m2
Pièces
4
Chambres
2
Chauffage
Fioul
Meuble
non
Garage
Oui
Référence
78T-15029

Maison individuelle à vendre à Ydes dans le Cantal (15210), ref : 78T-15029

Nichée dans un hameau de Ydes, cette maison lumineuse offre un cadre de vie agréable. Elle comprend une entrée, une cuisine entièrement aménagée, un séjour spacieux, deux chambres, une salle d'eau avec WC ainsi qu'une véranda. Le sous-sol, quant à lui, abrite un garage, une cave et un atelier. De plus, les combles sont aménageables, offrant un potentiel supplémentaire. L'ensemble est situé sur un terrain d'environ 1432 m² avec puits, offrant ainsi de belles perspectives d'aménagement extérieur.
VISITE VIRTUELLE disponible sur demande.
Honoraires à la charge du vendeur. Classe énergie G, Classe climat G Logement à consommation énergétique excessive. Montant estimé des dépenses annuelles d'énergie pour un usage standard : entre 4710.00 € et 6420.00 € sur les années 2021, 2022 et 2023 (abonnements compris). Les informations sur les risques auxquels ce bien est exposé sont disponibles sur le site Géorisques : georisques.gouv.fr.

Diagnostics (Réalisé le 06/03/2025 et présenté selon la référence en vigueur de 2021)

Consommation énergétique (dont Émissions de gaz à effet de serre)

A
B
C
D
E
F
G
558
Économe
Énergivore
Tableau de diagnostic de la performance énergétique des logements
Consommations énergétiques
Consommations énergétiques (en énergie primaire) pour le chauffage, la production d'eau chaude sanitaire et le refroidissement Indice de mesure : kWhEP/m 2 .an
A
B
C
D
E
F
G
157
Faible émission
Forte émission
Tableau de diagnostic de la performance énergétique des logements
Émissions de gaz à effet de serre
Émissions de gaz à effet de serre (GES) pour le chauffage, la production d'eau chaude sanitaire et le refroidissement Indice de mesure : kgeqCO2/m 2 .an

Logement à consommation énergétique excessive

Estimation annuelle des coûts d'énergie du logement

Montant estimé des dépenses annuelle des coûts d'énergie du logement.

Entre 4710 € et 6420 € par an

Prix moyen des énergies indexées sur l'année de référence (abonnements compris)

État des risques

Les informations sur les risques auxquels ce bien est exposé sont disponibles sur le site Géorisques : www.georisques.gouv.fr

Contacter l'office notarial
SELARL BESSON SUBERT et MINASSIAN, Notaires

Place de la Liberté
15210 YDES

Tous les biens de l'office notarial

Formulaire de contact

Nous vous informons de l'existence de la liste d'opposition au démarchage téléphonique BLOCTEL sur laquelle vous pouvez vous inscrire bloctel.gouv.fr.

Confidentialité et conformité au RGPD.
Vos données personnelles sont traitées par Notariat Services en tant que responsable de traitement afin de répondre à votre demande de mise en relation avec SELARL BESSON SUBERT et MINASSIAN, Notaires. Les grandes lignes concernant la responsabilité liée à ce traitement effectué par Notariat Services sont disponibles ici. Vos données sont conservées pendant 36 mois et sont destinées à la mise en relation avec SELARL BESSON SUBERT et MINASSIAN, Notaires. Conformément à la loi "informatique et libertés" et au RGPD, vous pouvez exercer vos droits d'opposition, d'accès, de rectification, d'effacement, de limitation et de portabilité en adressant un email à l'adresse suivante : [email protected]. Vous pouvez également adresser une réclamation auprés de la CNIL directement via son site internet www.cnil.fr.

Les champs obligatoires sont marqués *.
SIRET:
389 266 123 00030
TVA Intra-communautaire:
FR55 389 266 123
/>