Immonot, l'immobilier des notaires
Achat - Maison
Le Crozet (42310)
695 000 €
(Honoraires de négociation à la charge du vendeur)
Numéro principal :
06 78 42 23 68
Envoyer un email
Numéro principal :
06 78 42 23 68
Email

Achat Maison Le Crozet (42310) 5 pièces 124 m2


Retour
695 000 €
(Honoraires de négociation à la charge du vendeur)
Tous les biens de l'office
695 000 €
(Honoraires de négociation à la charge du vendeur)
Barème des honoraires de négociation

Financer ce bien Assurance emprunteur
Déménagement Améliorer son habitat
Caractéristiques
Surface habitable
124  m2
Surface terrain
333  m2
Pièces
5
Chambres
4
Garage
Oui
Référence
01043-139

Maison à vendre à Le Crozet dans la Loire (42310), ref : 01043-139

VILLA A VENDRE en l'état futur d'achèvement - Livraison premier trimestre 2027.
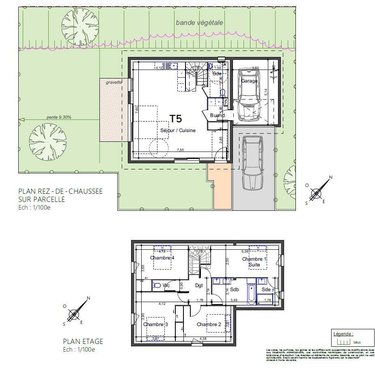
Dans un environnement naturel, préservé,  vous recherchez équilibre entre calme absolu et proximité de la SUISSE.Venez découvrir cette villa d'une surface habitable de 124 m2 aux prestations soignées, nichée à l'abri d'un petit bois,  comprenant :
- Au rez-de-chaussée : entrée sur séjour-salon-espace cuisine (47 m2), départ d'escalier pour l'étage, salle de douche avec W.C. placard.
- A l'étage : dégagement, trois chambres avec placard (12 - 14 et 13 m2), salle de bains, W.C, suite parentale (21 m2) avec dressing et salle de bains.
Garage attenant. Pompe à chaleur air/eau. Plancher chauffant au rez-de-chaussée. Radiateurs hydrauliques à l'étage. Larges baies vitrées. Jardin entièrement clos d'une surface de 333 m2.

Diagnostics (Dpe non requis)
A
B
C
D
E
F
G
Économe
Énergivore
Consommations énergétiques
Consommations énergétiques (en énergie primaire) pour le chauffage, la production d'eau chaude sanitaire et le refroidissement Indice de mesure : kWhEP/m 2 .an
A
B
C
D
E
F
G
Faible émission
Forte émission
Émissions de gaz à effet de serre
Émissions de gaz à effet de serre (GES) pour le chauffage, la production d'eau chaude sanitaire et le refroidissement Indice de mesure : kgeqCO2/m 2 .an
État des risques

Les informations sur les risques auxquels ce bien est exposé sont disponibles sur le site Géorisques : www.georisques.gouv.fr

Contacter l'office notarial
SELARL OFFICE NOTARIAL DE L'HORLOGE

541 avenue Francis Blanchard - Im. les Sorbiers
01170 GEX

Tous les biens de l'office notarial

Formulaire de contact

Nous vous informons de l'existence de la liste d'opposition au démarchage téléphonique BLOCTEL sur laquelle vous pouvez vous inscrire bloctel.gouv.fr.

Confidentialité et conformité au RGPD.
Vos données personnelles sont traitées par Notariat Services en tant que responsable de traitement afin de répondre à votre demande de mise en relation avec SELARL OFFICE NOTARIAL DE L'HORLOGE. Les grandes lignes concernant la responsabilité liée à ce traitement effectué par Notariat Services sont disponibles ici. Vos données sont conservées pendant 36 mois et sont destinées à la mise en relation avec SELARL OFFICE NOTARIAL DE L'HORLOGE. Conformément à la loi "informatique et libertés" et au RGPD, vous pouvez exercer vos droits d'opposition, d'accès, de rectification, d'effacement, de limitation et de portabilité en adressant un email à l'adresse suivante : [email protected]. Vous pouvez également adresser une réclamation auprés de la CNIL directement via son site internet www.cnil.fr.

Les champs obligatoires sont marqués *.

Contacter l'office notarial
SELARL OFFICE NOTARIAL DE L'HORLOGE

541 avenue Francis Blanchard - Im. les Sorbiers
01170 GEX

Tous les biens de l'office notarial
SIRET:
303 303 754 00020
TVA Intra-communautaire:
FR58 303 303 754
/>