Immonot, l'immobilier des notaires
Achat - Maison
Le Crozet (42310)
732 000 €
(Honoraires de négociation à la charge du vendeur)
Numéro principal :
06 78 42 23 68
Envoyer un email
Numéro principal :
06 78 42 23 68
Email

Achat Maison Le Crozet (42310) 5 pièces 133 m2


Retour
732 000 €
(Honoraires de négociation à la charge du vendeur)
Tous les biens de l'office
732 000 €
(Honoraires de négociation à la charge du vendeur)
Barème des honoraires de négociation

Financer ce bien Assurance emprunteur
Déménagement Améliorer son habitat
Caractéristiques
Surface habitable
133  m2
Surface terrain
455  m2
Pièces
5
Chambres
4
Garage
Oui
Référence
01043-137

Maison à vendre à Le Crozet dans la Loire (42310), ref : 01043-137

VILLA A VENDRE en l'état futur d'achèvement - Livraison premier trimestre 2027.
Dans un environnement naturel, préservé,  vous recherchez équilibre entre calme absolu et proximité de la SUISSE. Venez découvrir cette villa d'une surface habitable de 133 m2 aux prestations soignée, nichée à l'abri d'un petit bois,  comprenant :
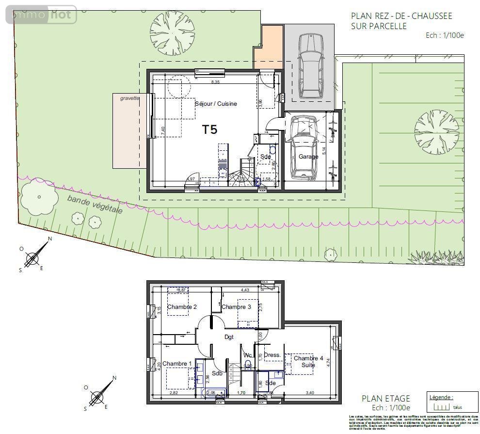
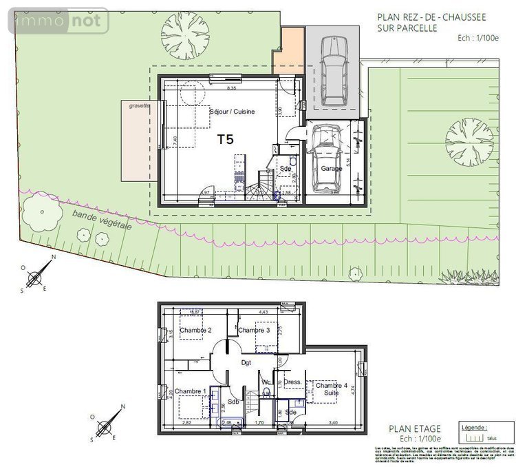
- Au rez-de-chaussée : entrée sur séjour-salon-espace cuisine (54 m2), départ d'escalier pour l'étage, salle de douche avec W.C. placard.
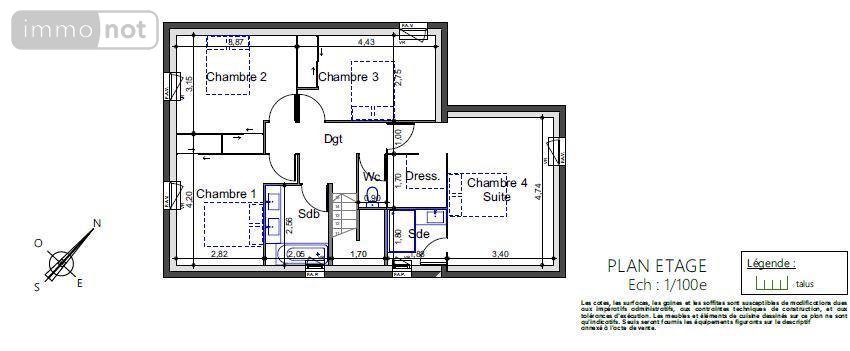
- A l'étage : dégagement, trois chambres avec placard (12 - 13 et 12 m2), salle de bains, W.C, suite parentale (25 m2) avec dressing et salle de bains.
Garage attenant. Pompe à chaleur air/eau. Plancher chauffant au rez-de-chaussée. Radiateurs hydrauliques à l'étage. Larges baies vitrées.
Jardin entièrement clos d'une surface de 455 m2.

Diagnostics (Dpe non requis)
A
B
C
D
E
F
G
Économe
Énergivore
Consommations énergétiques
Consommations énergétiques (en énergie primaire) pour le chauffage, la production d'eau chaude sanitaire et le refroidissement Indice de mesure : kWhEP/m 2 .an
A
B
C
D
E
F
G
Faible émission
Forte émission
Émissions de gaz à effet de serre
Émissions de gaz à effet de serre (GES) pour le chauffage, la production d'eau chaude sanitaire et le refroidissement Indice de mesure : kgeqCO2/m 2 .an
État des risques

Les informations sur les risques auxquels ce bien est exposé sont disponibles sur le site Géorisques : www.georisques.gouv.fr

Contacter l'office notarial
SELARL OFFICE NOTARIAL DE L'HORLOGE

541 avenue Francis Blanchard - Im. les Sorbiers
01170 GEX

Tous les biens de l'office notarial

Formulaire de contact

Nous vous informons de l'existence de la liste d'opposition au démarchage téléphonique BLOCTEL sur laquelle vous pouvez vous inscrire bloctel.gouv.fr.

Confidentialité et conformité au RGPD.
Vos données personnelles sont traitées par Notariat Services en tant que responsable de traitement afin de répondre à votre demande de mise en relation avec SELARL OFFICE NOTARIAL DE L'HORLOGE. Les grandes lignes concernant la responsabilité liée à ce traitement effectué par Notariat Services sont disponibles ici. Vos données sont conservées pendant 36 mois et sont destinées à la mise en relation avec SELARL OFFICE NOTARIAL DE L'HORLOGE. Conformément à la loi "informatique et libertés" et au RGPD, vous pouvez exercer vos droits d'opposition, d'accès, de rectification, d'effacement, de limitation et de portabilité en adressant un email à l'adresse suivante : [email protected]. Vous pouvez également adresser une réclamation auprés de la CNIL directement via son site internet www.cnil.fr.

Les champs obligatoires sont marqués *.

Contacter l'office notarial
SELARL OFFICE NOTARIAL DE L'HORLOGE

541 avenue Francis Blanchard - Im. les Sorbiers
01170 GEX

Tous les biens de l'office notarial
SIRET:
303 303 754 00020
TVA Intra-communautaire:
FR58 303 303 754
/>