Immonot, l'immobilier des notaires
Achat - Maison
Conlie (72240)
132 000 €
120 000 € + Honoraires de négociation TTC : 120 000 €
Soit 100,0% à la charge de l'acquéreur
Numéro principal :
02.43.39.29.00
Envoyer un email
Numéro principal :
02.43.39.29.00
Email

Achat Maison Conlie (72240) 3 pièces 71 m2


Retour
132 000 €
120 000 € + Honoraires de négociation TTC : 120 000 €
Soit 100,0% à la charge de l'acquéreur
Tous les biens de l'office
132 000 €
120 000 € + Honoraires de négociation TTC : 120 000 €
Soit 100,0% à la charge de l'acquéreur
Barème des honoraires de négociation

Financer ce bien Assurance emprunteur
Déménagement Écorénover son logement
Caractéristiques
Surface habitable
71  m2
Pièces
3
Chambres
2
Chauffage
Gaz
Meuble
non
Garage
Oui
Référence
72003-1091934

Maison à vendre à Conlie dans la Sarthe (72240), ref : 72003-1091934

Une maison mitoyenne d'environ 71 m², située en centre-bourg à CONLIE (72), comprenant : 
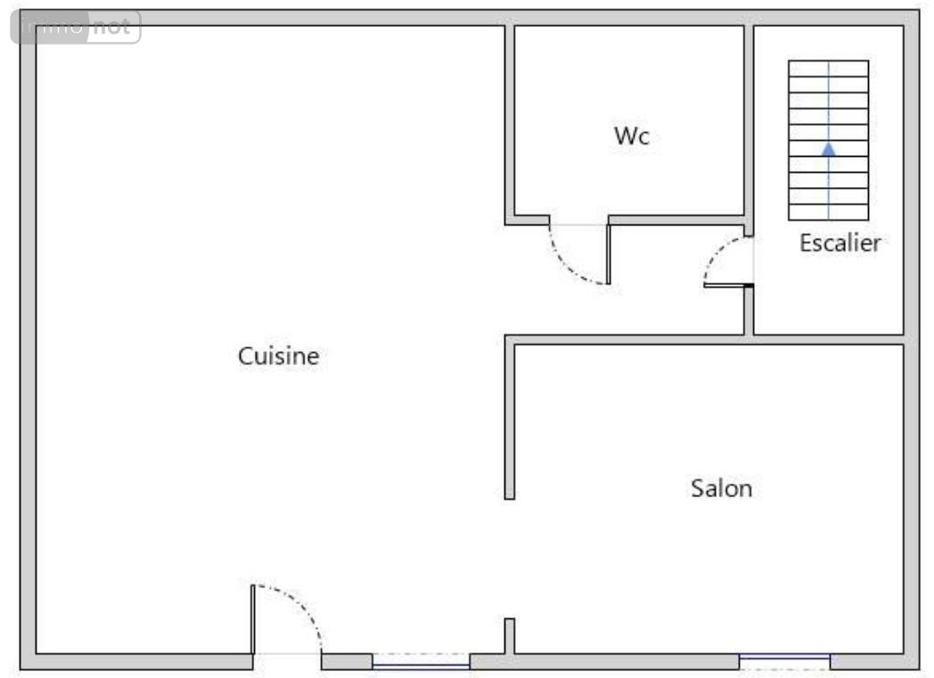
- Au rez-de-chaussée : entrée par la cuisine aménagée et équipée donnant sur salon/séjour avec cheminée foyer ouvert, W.C avec lave-mains;
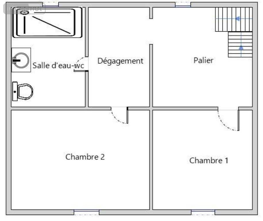
- A l'étage : palier, dégagement, deux chambres dont une avec placard, salle d'eau avec W.C.
Grenier.Cave sous partie de la maison.Courette au-devant.Un garage avec jardinet séparé.
A proximité immédiate des commerces, écoles et commodités.
Sans travaux à prévoir.
Locataire en place depuis le 04/04/2023 (bail d'habitation non meublé )Montant du loyer mensuel actuel hors charges : 550,00€
OFFICE NOTARIAL LE MANS - Gare Novaxis  Maître Julien LEFEVRE 19 boulevard Marie et Alexandre Oyon [email protected] [email protected] Tel: 02.43.39.29.00  OFFICE NOTARIAL de RUAUDIN Maître Pauline PERON 61 rue Principale (ancienne Poste en face de la pharmacie) [email protected] Tel: 02.43.78.92.90

Diagnostics (Réalisé le 27/12/2022 et présenté selon la référence en vigueur de 2021)

Consommation énergétique (dont Émissions de gaz à effet de serre)

A
B
C
D
227
E
F
G
Économe
Énergivore
Tableau de diagnostic de la performance énergétique des logements
Consommations énergétiques
Consommations énergétiques (en énergie primaire) pour le chauffage, la production d'eau chaude sanitaire et le refroidissement Indice de mesure : kWhEP/m 2 .an
A
B
C
D
49
E
F
G
Faible émission
Forte émission
Tableau de diagnostic de la performance énergétique des logements
Émissions de gaz à effet de serre
Émissions de gaz à effet de serre (GES) pour le chauffage, la production d'eau chaude sanitaire et le refroidissement Indice de mesure : kgeqCO2/m 2 .an
État des risques

Les informations sur les risques auxquels ce bien est exposé sont disponibles sur le site Géorisques : www.georisques.gouv.fr

Contacter l'office notarial
SELARL LEFEVRE et Associés, Notaires et Conseils

19 bd Alexandre Oyon BP 24093
72004 LE MANS CEDEX 1

Tous les biens de l'office notarial

Formulaire de contact

Nous vous informons de l'existence de la liste d'opposition au démarchage téléphonique BLOCTEL sur laquelle vous pouvez vous inscrire bloctel.gouv.fr.

Confidentialité et conformité au RGPD.
Vos données personnelles sont traitées par Notariat Services en tant que responsable de traitement afin de répondre à votre demande de mise en relation avec SELARL LEFEVRE et Associés, Notaires et Conseils. Les grandes lignes concernant la responsabilité liée à ce traitement effectué par Notariat Services sont disponibles ici. Vos données sont conservées pendant 36 mois et sont destinées à la mise en relation avec SELARL LEFEVRE et Associés, Notaires et Conseils. Conformément à la loi "informatique et libertés" et au RGPD, vous pouvez exercer vos droits d'opposition, d'accès, de rectification, d'effacement, de limitation et de portabilité en adressant un email à l'adresse suivante : [email protected]. Vous pouvez également adresser une réclamation auprés de la CNIL directement via son site internet www.cnil.fr.

Les champs obligatoires sont marqués *.

Contacter l'office notarial
SELARL LEFEVRE et Associés, Notaires et Conseils

19 bd Alexandre Oyon BP 24093
72004 LE MANS CEDEX 1

Tous les biens de l'office notarial
SIRET:
407 912 641 00062
TVA Intra-communautaire:
FR00 407 912 641
/>