Immonot, l'immobilier des notaires
Achat - Propriété
Le Mesnil (50580)
675 200 €
650 000 € + Honoraires de négociation TTC : 25 200 €
Soit 3,88% à la charge de l'acquéreur
Numéro principal :
02.33.87.67.60
Envoyer un email
Numéro principal :
02.33.87.67.60
Email

Achat Propriété Le Mesnil (50580) 16 pièces 439 m2


Retour
675 200 €
650 000 € + Honoraires de négociation TTC : 25 200 €
Soit 3,88% à la charge de l'acquéreur
Tous les biens de l'office
675 200 €
650 000 € + Honoraires de négociation TTC : 25 200 €
Soit 3,88% à la charge de l'acquéreur
Barème des honoraires de négociation

Financer ce bien Assurance emprunteur
Déménagement Améliorer son habitat
Caractéristiques
Surface habitable
439  m2
Surface terrain
40 700  m2
Pièces
16
Chambres
10
Etat général
Moyen
Référence
045/1719

Propriete à vendre à Le Mesnil dans la Manche (50580), ref : 045/1719

LE MESNIL, MANOIR DU XVIIeme sur 4 HECTARES DE TERRES - ! VIDEOS DU BIEN DISPONIBLE SUR NOTRE INSTAGRAM : Etude Fontanet Dupont Manquet !
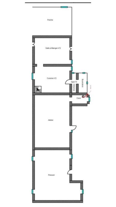
Situé à LE MESNIL, l'ETUDE FONTANET ET DUPONT-MANQUET vous propose ce MANOIR du XVIIème siècle de 340.00m² habitable sur un terrain de 4 hectares avec sa seconde maison (ou gite) de 98.00m² habitable.
LE MANOIR :
Au rez-de-chaussée : après un magnifique escalier en pierres, une grande entrée avec poêle à bois dessert à droite, trois chambres et une salle de bains avec douche et baignoire et, à gauche, une salle à manger, une kitchenette, un sanitaire indépendant, une pièce palière (permettant un accès au rez-de-jardin et à l'étage) desservant un joli salon puis un magnifique belvédère donnant vue sur la propriété,
Au rez-de-jardin : une cuisine aménagée et équipée, permettant un accès direct aux extérieurs, dessert un salon et une buanderie,
Au 1er étage : un palier dessert à gauche, une chambre et, à droite, trois à quatre chambres, un petit sauna et une salle d'eau avec sanitaire,
LE GITE :
Entièrement en plain-pied avec une grande pièce de vie + cuisine ouverte aménagée et équipée + accès direct à une terrasse privative donnant vue sur le domaine, trois chambres, une salle d'eau avec sanitaire, une salle de bains, une buanderie et un sanitaire indépendant,
Sous le manoir, deux grandes caves dont une à usage d'atelier,
En face du manoir, au SUD, un grand terrain de 4 hectares avec un puits, un ruisseau courant le long et un étang.
Chauffage par pompe à chaleur en aérothermie,
Consommation en énergie THEORIQUE DU MANOIR : 2975 à 4025 € / an,
Consommation en énergie THEORIQUE DU GITE : 1066 à 1442 € / an

Suivez-nous sur les réseaux sociaux :
- Facebook : Etude Fontanet & Dupont-Manquet
- Instagram : Etude Fontanet Dupont Manquet
Les informations sur les risques auxquels ce bien est exposé sont disponibles sur le site Géorisques : www.georisques.gouv.fr - Classe énergie : D - Prix Hon. Négo Inclus : 675 200,00 € dont 3,88% Hon. Négo TTC charge acq. Prix Hors Hon. Négo :650 000,00 € - Réf : 045/1719

Diagnostics (Réalisé le 17/04/2024 et présenté selon la référence en vigueur de 2021)

Consommation énergétique (dont Émissions de gaz à effet de serre)

A
B
C
178
D
E
F
G
Économe
Énergivore
Tableau de diagnostic de la performance énergétique des logements
Consommations énergétiques
Consommations énergétiques (en énergie primaire) pour le chauffage, la production d'eau chaude sanitaire et le refroidissement Indice de mesure : kWhEP/m 2 .an
A
5
B
C
D
E
F
G
Faible émission
Forte émission
Tableau de diagnostic de la performance énergétique des logements
Émissions de gaz à effet de serre
Émissions de gaz à effet de serre (GES) pour le chauffage, la production d'eau chaude sanitaire et le refroidissement Indice de mesure : kgeqCO2/m 2 .an
État des risques

Les informations sur les risques auxquels ce bien est exposé sont disponibles sur le site Géorisques : www.georisques.gouv.fr

Formulaire de contact

Nous vous informons de l'existence de la liste d'opposition au démarchage téléphonique BLOCTEL sur laquelle vous pouvez vous inscrire bloctel.gouv.fr.

Confidentialité et conformité au RGPD.
Vos données personnelles sont traitées par Notariat Services en tant que responsable de traitement afin de répondre à votre demande de mise en relation avec SELARL B.FONTANET - ML.DUPONT-MANQUET - NOTAIRES ASSOCIES. Les grandes lignes concernant la responsabilité liée à ce traitement effectué par Notariat Services sont disponibles ici. Vos données sont conservées pendant 36 mois et sont destinées à la mise en relation avec SELARL B.FONTANET - ML.DUPONT-MANQUET - NOTAIRES ASSOCIES. Conformément à la loi "informatique et libertés" et au RGPD, vous pouvez exercer vos droits d'opposition, d'accès, de rectification, d'effacement, de limitation et de portabilité en adressant un email à l'adresse suivante : [email protected]. Vous pouvez également adresser une réclamation auprés de la CNIL directement via son site internet www.cnil.fr.

Les champs obligatoires sont marqués *.
SIRET:
322 366 139 00010
TVA Intra-communautaire:
FR87 322 366 139
/>