Immonot, l'immobilier des notaires
Achat - Maison
La Hague (50460)  (Hague (La))
447 280 €
430 000 € + Honoraires de négociation TTC : 17 280 €
Soit 4,02% à la charge de l'acquéreur
Numéro principal :
02.33.87.67.60
Envoyer un email
Numéro principal :
02.33.87.67.60
Email

Achat Maison La Hague (50460)  (Hague (La)) 5 pièces 125 m2


Retour
447 280 €
430 000 € + Honoraires de négociation TTC : 17 280 €
Soit 4,02% à la charge de l'acquéreur
Tous les biens de l'office
447 280 €
430 000 € + Honoraires de négociation TTC : 17 280 €
Soit 4,02% à la charge de l'acquéreur
Barème des honoraires de négociation

Financer ce bien Assurance emprunteur
Déménager Améliorer son habitat
Caractéristiques
Surface habitable
125  m2
Surface terrain
736  m2
Pièces
5
Chambres
3
Etat général
Bon
Année de construction
1970
Garage
Oui
Référence
045/1689

Maison à vendre à La Hague dans la Manche (50460), ref : 045/1689

LA HAGUE, COUP DE COEUR PAVILLON PROCHE MER - ! VIDEOS DU BIEN DISPONIBLE SUR NOTRE INSTAGRAM : Etude Fontanet Dupont Manquet ! UNIQUEMENT CHEZ LES NOTAIRES
Idéalement située à URVILLE NACQUEVILLE, dans le secteur du FORT, l'ETUDE FONTANET ET DUPONT-MANQUET vous propose ce PAVILLON INDEPENDANT AVEC COMMODITES DE PLAIN-PIED de 125.00m² habitable environ construit dans les années 1970 sur un terrain de 736.00m² avec ses 3 CHAMBRES, son GARAGE et sa PROXIMITE IMMEDIATE A LA MER.
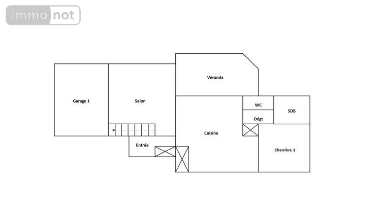
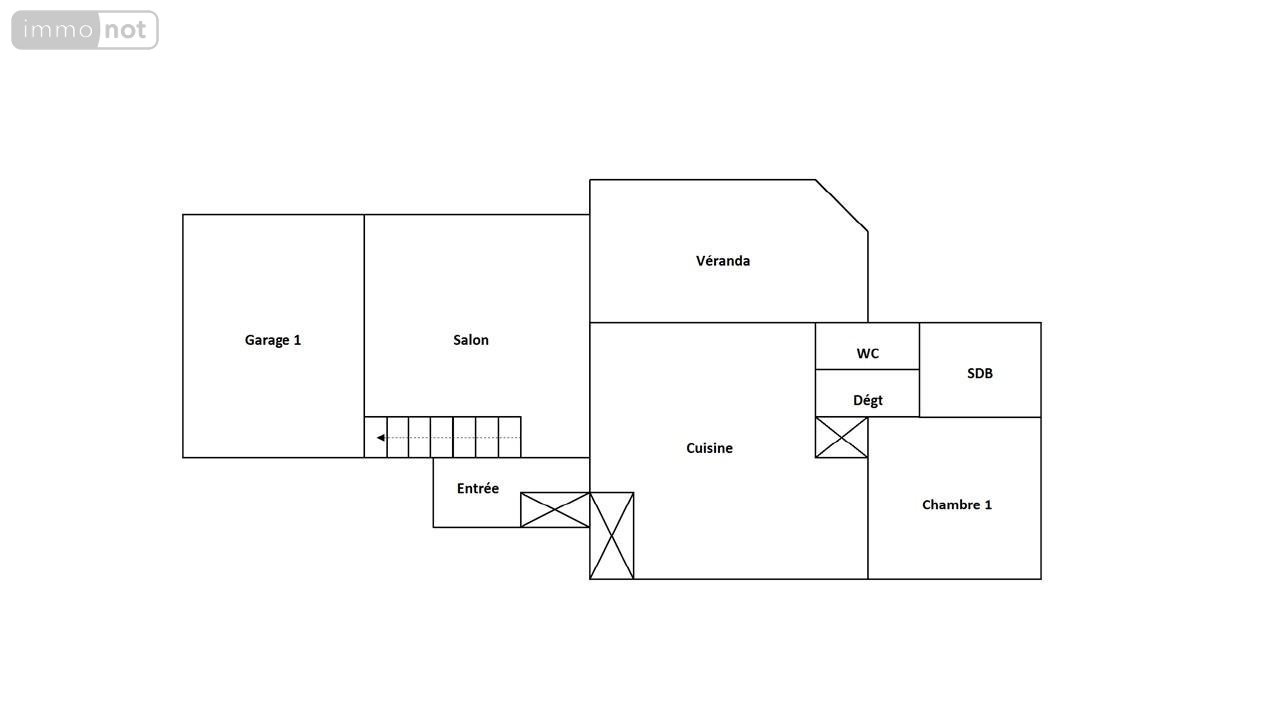
Ce pavillon est aménagé en :
Au rez-de-chaussée :
- Une entrée (5.70m²) avec penderie,
- Une pièce de vie (23.00m²) exposée SUD avec mezzanine,
- Une cuisine ouverte aménagée et équipée (23.00m²) avec salle à manger exposée NORD suivi d'une véranda (16.00m²) exposée SUD avec accès direct à la terrasse et au jardin,
- Une chambre (12.50m²) avec penderie,
- Une salle d'eau (4.00m²),
- Un sanitaire indépendant suspendu avec lave-main,
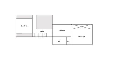
Au 1er étage :
- Un palier mezzanine (6.50m²) desservant une chambre (9.00m²) avec rangements sous les rampants et une suite parentale (13.50m²) avec rangements sous rampants et dressing (6.70m²) desservant une salle de bains (5.30m²) et un sanitaire indépendant,
Attenant, un garage (19.00m²) avec porte motorisée et buanderie,
A l'avant, au NORD, une cour bitumée avec stationnement avec en fond, un second garage (17.00m²),
A l'arrière, au SUD, sans vis-à-vis, une terrasse bois avec BBQ suivi d'un joli jardin clos de haies donnant sur la campagne,
Huisseries en PVC double / Chauffage électrique,
Taxe foncière : 710 € / an,
Consommation en énergie THEORIQUE : 1900 à 2610 € / an,

Suivez-nous sur les réseaux sociaux :
- Facebook : Etude Fontanet & Dupont-Manquet
- Instagram : Etude Fontanet Dupont Manquet
Les informations sur les risques auxquels ce bien est exposé sont disponibles sur le site Géorisques : www.georisques.gouv.fr - Classe énergie : D - Prix Hon. Négo Inclus : 447 280,00 € dont 4,02% Hon. Négo TTC charge acq. Prix Hors Hon. Négo :430 000,00 € - Réf : 045/1689

Diagnostics (Réalisé le 25/05/2025 et présenté selon la référence en vigueur de 2021)

Consommation énergétique (dont Émissions de gaz à effet de serre)

A
B
C
D
217
E
F
G
Économe
Énergivore
Tableau de diagnostic de la performance énergétique des logements
Consommations énergétiques
Consommations énergétiques (en énergie primaire) pour le chauffage, la production d'eau chaude sanitaire et le refroidissement Indice de mesure : kWhEP/m 2 .an
A
B
6
C
D
E
F
G
Faible émission
Forte émission
Tableau de diagnostic de la performance énergétique des logements
Émissions de gaz à effet de serre
Émissions de gaz à effet de serre (GES) pour le chauffage, la production d'eau chaude sanitaire et le refroidissement Indice de mesure : kgeqCO2/m 2 .an
État des risques

Les informations sur les risques auxquels ce bien est exposé sont disponibles sur le site Géorisques : www.georisques.gouv.fr

Formulaire de contact

Nous vous informons de l'existence de la liste d'opposition au démarchage téléphonique BLOCTEL sur laquelle vous pouvez vous inscrire bloctel.gouv.fr.

Confidentialité et conformité au RGPD.
Vos données personnelles sont traitées par Notariat Services en tant que responsable de traitement afin de répondre à votre demande de mise en relation avec SELARL B.FONTANET - ML.DUPONT-MANQUET - NOTAIRES ASSOCIES. Les grandes lignes concernant la responsabilité liée à ce traitement effectué par Notariat Services sont disponibles ici. Vos données sont conservées pendant 36 mois et sont destinées à la mise en relation avec SELARL B.FONTANET - ML.DUPONT-MANQUET - NOTAIRES ASSOCIES. Conformément à la loi "informatique et libertés" et au RGPD, vous pouvez exercer vos droits d'opposition, d'accès, de rectification, d'effacement, de limitation et de portabilité en adressant un email à l'adresse suivante : [email protected]. Vous pouvez également adresser une réclamation auprés de la CNIL directement via son site internet www.cnil.fr.

Les champs obligatoires sont marqués *.
SIRET:
322 366 139 00010
TVA Intra-communautaire:
FR87 322 366 139
/>