Immonot, l'immobilier des notaires
Achat - Appartement
Rennes (35000)
292 600 €
280 000 € + Honoraires de négociation TTC : 12 600 €
Soit 4,5% à la charge de l'acquéreur
Numéro principal :
06.69.04.31.05 ou 02.99.00.31.05
Envoyer un email
Numéro principal :
06.69.04.31.05 ou 02.99.00.31.05
Email

Achat Appartement Rennes (35000) 3 pièces 69 m2


Retour
292 600 €
280 000 € + Honoraires de négociation TTC : 12 600 €
Soit 4,5% à la charge de l'acquéreur
Tous les biens de l'office
292 600 €
280 000 € + Honoraires de négociation TTC : 12 600 €
Soit 4,5% à la charge de l'acquéreur
Barème des honoraires de négociation

Financer ce bien Assurance emprunteur
Déménagement Améliorer son Habitat
Caractéristiques
Surface habitable
69  m2
Pièces
3
Chambres
2
Chauffage
Individuel
Etat général
A renover
Année de construction
1959
Garage
Oui
Référence
35117/1009

Appartement à vendre à Rennes en Ille-et-Vilaine (35000), ref : 35117/1009
RENNES-ARSENAL REDON/CITE JUDICIAIRE

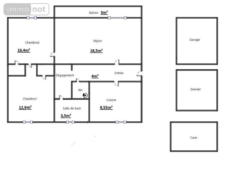
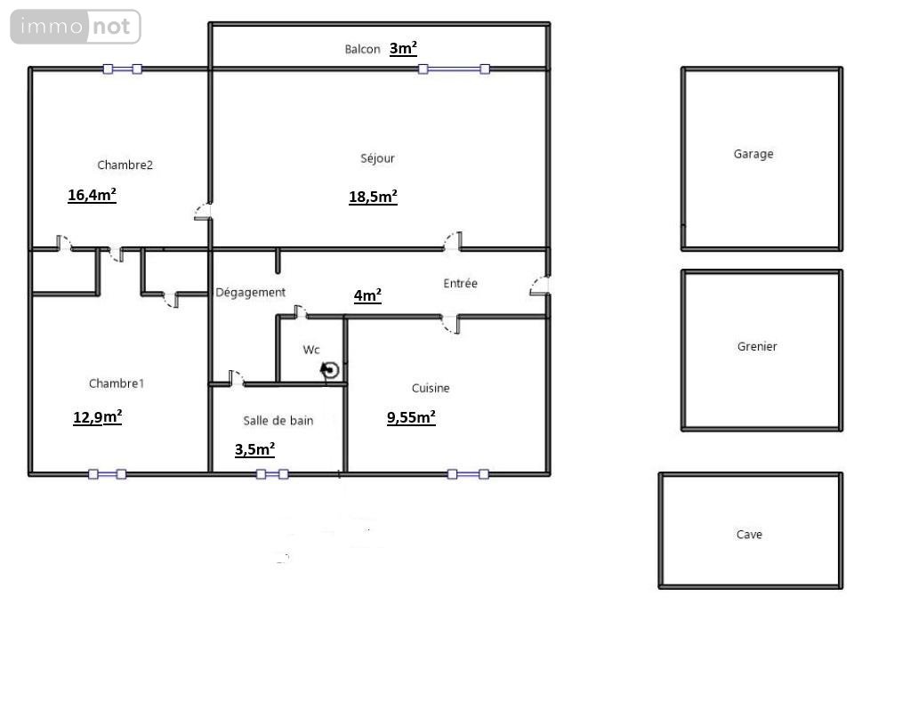
RENNES, T3 - Appartement de 69m² à rénover comprenant un box fermé, une cave et un grenier. A 160m du metro Mabilay.
Au 3ieme étage sans ascenseur : entrée, cuisine, salon donnant sur un balcon, deux chambres, sdb, wc. Double vitrage, chauff au gaz.
Prévoir travaux. Emplacement top, rue de redon.
- Classe énergie : E - Classe climat : E - Montant estimé des dépenses annuelles d'énergie pour un usage standard : 1500 à 2080 € (base 2021) - Prix Hon. Négo Inclus : 292 600 € dont 4,50% Hon. Négo TTC charge acq. Prix Hors Hon. Négo :280 000 € - Réf : 35117/1009

Bien en copropriété
Bien soumis à copropriété
Oui
Nbre de lots de la copropriété
57
Montant des charges prévisionnelles annuelles moyen
934.0 €
Diagnostics (Réalisé le 15/10/2025 et présenté selon la référence en vigueur de 2021)

Consommation énergétique (dont Émissions de gaz à effet de serre)

A
B
C
D
E
237
F
G
Économe
Énergivore
Tableau de diagnostic de la performance énergétique des logements
Consommations énergétiques
Consommations énergétiques (en énergie primaire) pour le chauffage, la production d'eau chaude sanitaire et le refroidissement Indice de mesure : kWhEP/m 2 .an
A
B
C
D
E
51
F
G
Faible émission
Forte émission
Tableau de diagnostic de la performance énergétique des logements
Émissions de gaz à effet de serre
Émissions de gaz à effet de serre (GES) pour le chauffage, la production d'eau chaude sanitaire et le refroidissement Indice de mesure : kgeqCO2/m 2 .an

Estimation annuelle des coûts d'énergie du logement

Montant estimé des dépenses annuelle des coûts d'énergie du logement.

Entre 1500 € et 2080 € par an

Prix moyen des énergies indexées sur l'année de référence (abonnements compris)

État des risques

Les informations sur les risques auxquels ce bien est exposé sont disponibles sur le site Géorisques : www.georisques.gouv.fr

Contacter l'office notarial
SELARL EMC NOTAIRES

2 rue de la Goulgattière BP 62126
35220 CHATEAUBOURG

Tous les biens de l'office notarial

Formulaire de contact

Nous vous informons de l'existence de la liste d'opposition au démarchage téléphonique BLOCTEL sur laquelle vous pouvez vous inscrire bloctel.gouv.fr.

Confidentialité et conformité au RGPD.
Vos données personnelles sont traitées par Notariat Services en tant que responsable de traitement afin de répondre à votre demande de mise en relation avec SELARL EMC NOTAIRES. Les grandes lignes concernant la responsabilité liée à ce traitement effectué par Notariat Services sont disponibles ici. Vos données sont conservées pendant 36 mois et sont destinées à la mise en relation avec SELARL EMC NOTAIRES. Conformément à la loi "informatique et libertés" et au RGPD, vous pouvez exercer vos droits d'opposition, d'accès, de rectification, d'effacement, de limitation et de portabilité en adressant un email à l'adresse suivante : [email protected]. Vous pouvez également adresser une réclamation auprés de la CNIL directement via son site internet www.cnil.fr.

Les champs obligatoires sont marqués *.

Contacter l'office notarial
SELARL EMC NOTAIRES

2 rue de la Goulgattière BP 62126
35220 CHATEAUBOURG

Tous les biens de l'office notarial
SIRET:
492 435 755 00029
TVA Intra-communautaire:
FR90 492 435 755
/>