Immonot, l'immobilier des notaires
Achat - Maison
Vivoin (72170)
42 800 €
40 000 € + Honoraires de négociation TTC : 2 800 €
Soit 7,0% à la charge de l'acquéreur
Numéro principal :
02 43 97 40 02
Envoyer un email
Numéro principal :
02 43 97 40 02
Email

Achat Maison Vivoin (72170) 3 pièces 57 m2


Retour
42 800 €
40 000 € + Honoraires de négociation TTC : 2 800 €
Soit 7,0% à la charge de l'acquéreur
Tous les biens de l'office
42 800 €
40 000 € + Honoraires de négociation TTC : 2 800 €
Soit 7,0% à la charge de l'acquéreur
Barème des honoraires de négociation

Financer ce bien Assurance Emprunteur
Déménagement Écorénover son logement
Caractéristiques
Surface habitable
57,24  m2
Surface terrain
46 m
Pièces
3
Chambres
1
Chauffage
Électricité, Bois
Référence
72126-3156

Maison à vendre à Vivoin dans la Sarthe (72170), ref : 72126-3156

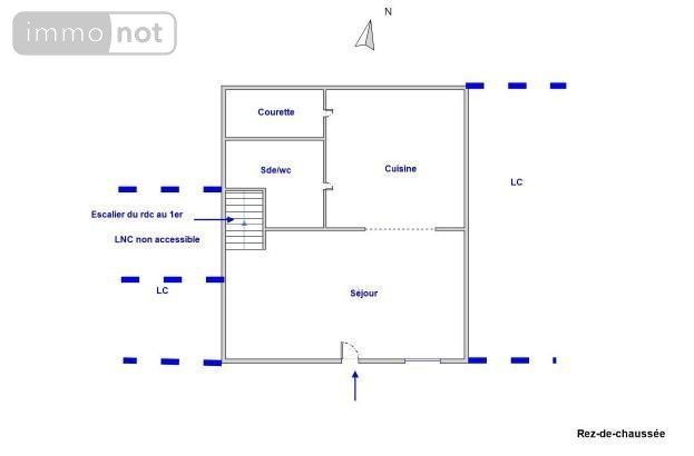
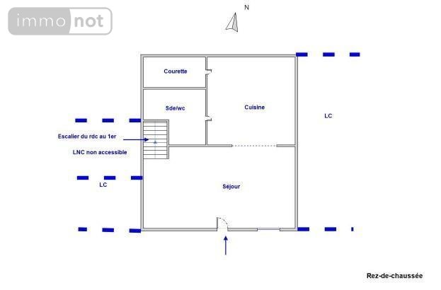
Logement fonctionnel idéal pour de investissement locatif de 57m² au coeur de VIVOIN, comprenant une pièce de vie avec en enfilade une cuisine avec cheminée, une salle d'eau avec WC, et accès à une petite cour.
A l'étage une pièce desservant une chambre avec cheminée insert et un autre espace avec ballon d'eau chaude, donnant accès au grenier au dessus.
le tout sur 46m²

Diagnostics (Réalisé le 12/03/2026 et présenté selon la référence en vigueur de 2021)

Consommation énergétique (dont Émissions de gaz à effet de serre)

A
B
C
D
E
F
341
G
Économe
Énergivore
Tableau de diagnostic de la performance énergétique des logements
Consommations énergétiques
Consommations énergétiques (en énergie primaire) pour le chauffage, la production d'eau chaude sanitaire et le refroidissement Indice de mesure : kWhEP/m 2 .an
A
B
C
12
D
E
F
G
Faible émission
Forte émission
Tableau de diagnostic de la performance énergétique des logements
Émissions de gaz à effet de serre
Émissions de gaz à effet de serre (GES) pour le chauffage, la production d'eau chaude sanitaire et le refroidissement Indice de mesure : kgeqCO2/m 2 .an

Logement à consommation énergétique excessive

Estimation annuelle des coûts d'énergie du logement

Montant estimé des dépenses annuelle des coûts d'énergie du logement.

Entre 1540 € et 2140 € par an

Prix moyen des énergies indexées sur l'année de référence (abonnements compris)

État des risques

Les informations sur les risques auxquels ce bien est exposé sont disponibles sur le site Géorisques : www.georisques.gouv.fr

Contacter l'office notarial
ACP NOTAIRES

82 rue de Mamers
72260 MAROLLES LES BRAULTS

Tous les biens de l'office notarial

Formulaire de contact

Nous vous informons de l'existence de la liste d'opposition au démarchage téléphonique BLOCTEL sur laquelle vous pouvez vous inscrire bloctel.gouv.fr.

Confidentialité et conformité au RGPD.
Vos données personnelles sont traitées par Notariat Services en tant que responsable de traitement afin de répondre à votre demande de mise en relation avec ACP NOTAIRES. Les grandes lignes concernant la responsabilité liée à ce traitement effectué par Notariat Services sont disponibles ici. Vos données sont conservées pendant 36 mois et sont destinées à la mise en relation avec ACP NOTAIRES. Conformément à la loi "informatique et libertés" et au RGPD, vous pouvez exercer vos droits d'opposition, d'accès, de rectification, d'effacement, de limitation et de portabilité en adressant un email à l'adresse suivante : [email protected]. Vous pouvez également adresser une réclamation auprés de la CNIL directement via son site internet www.cnil.fr.

Les champs obligatoires sont marqués *.

Contacter l'office notarial
ACP NOTAIRES

82 rue de Mamers
72260 MAROLLES LES BRAULTS

Tous les biens de l'office notarial
/>