Immonot, l'immobilier des notaires
Achat - Appartement
Neuilly-sur-Seine (92200)
3 575 000 €
3 455 426 € + Honoraires de négociation TTC : 119 574 €
Soit 3,46% à la charge de l'acquéreur
Numéro principal :
01.46.43.19.19
Envoyer un email
Numéro principal :
01.46.43.19.19
Email

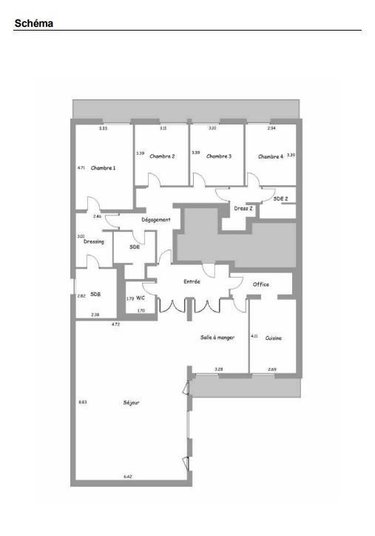
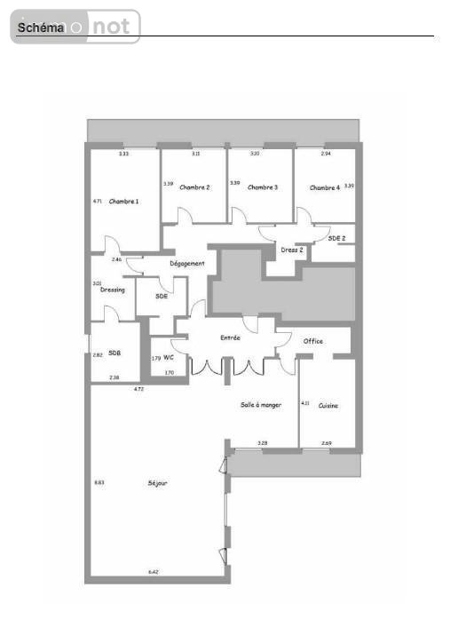
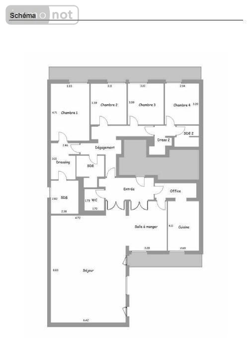
Achat Appartement Neuilly-sur-Seine (92200) 11 pièces 339 m2


Retour
3 575 000 €
3 455 426 € + Honoraires de négociation TTC : 119 574 €
Soit 3,46% à la charge de l'acquéreur
Tous les biens de l'office
3 575 000 €
3 455 426 € + Honoraires de négociation TTC : 119 574 €
Soit 3,46% à la charge de l'acquéreur
Barème des honoraires de négociation

Financer ce bien Assurance emprunteur
Déménagement Améliorer son habitat
Caractéristiques
Surface habitable
339,44  m2
Surface terrain
1 590  m2
Pièces
11
Chambres
8
Chauffage
Convecteur Électrique
Garage
Oui
Référence
92010-1300

Appartement à vendre à Neuilly-sur-Seine dans les Hauts-de-Seine (92200), ref : 92010-1300

NEUILLY SUR SEINE. SAUSSAYE. Aux deux derniers niveaux (3+4) avec ascenseur d'un petit immeuble de très bon standing sécurisé, 2 APPARTEMENTS de 5 et 6P d'une surface totale de 339.44m² avec 4 espaces extérieurs A REUNIR. PREVOIR TRAVAUX DE RENOVATION. EXCELLENT POTENTIEL. DOSSIER SUR DEMANDE. VENTES SEPAREES POSSIBLES.
2 caves et 7 parkings (dont 2 boxes).

État des risques

Les informations sur les risques auxquels ce bien est exposé sont disponibles sur le site Géorisques : www.georisques.gouv.fr

Contacter l'office notarial
CHOIX et associés

2 rue de l'Ecole de Mars
92200 NEUILLY SUR SEINE

Tous les biens de l'office notarial

Formulaire de contact

Nous vous informons de l'existence de la liste d'opposition au démarchage téléphonique BLOCTEL sur laquelle vous pouvez vous inscrire bloctel.gouv.fr.

Confidentialité et conformité au RGPD.
Vos données personnelles sont traitées par Notariat Services en tant que responsable de traitement afin de répondre à votre demande de mise en relation avec CHOIX et associés. Les grandes lignes concernant la responsabilité liée à ce traitement effectué par Notariat Services sont disponibles ici. Vos données sont conservées pendant 36 mois et sont destinées à la mise en relation avec CHOIX et associés. Conformément à la loi "informatique et libertés" et au RGPD, vous pouvez exercer vos droits d'opposition, d'accès, de rectification, d'effacement, de limitation et de portabilité en adressant un email à l'adresse suivante : [email protected]. Vous pouvez également adresser une réclamation auprés de la CNIL directement via son site internet www.cnil.fr.

Les champs obligatoires sont marqués *.

Contacter l'office notarial
CHOIX et associés

2 rue de l'Ecole de Mars
92200 NEUILLY SUR SEINE

Tous les biens de l'office notarial
SIRET:
441 087 566 00010
TVA Intra-communautaire:
FR59 441 087 566
/>