Immonot, l'immobilier des notaires
Achat - Maison
Aixe-sur-Vienne (87700)
350 000 €
340 000 € + Honoraires de négociation TTC : 10 000 €
Soit 2,94% à la charge de l'acquéreur
Numéro principal :
05.55.77.14.55
Envoyer un email
Numéro principal :
05.55.77.14.55
Email

Achat Maison Aixe-sur-Vienne (87700)  Maison de maître 13 pièces 350 m2


Retour
350 000 €
340 000 € + Honoraires de négociation TTC : 10 000 €
Soit 2,94% à la charge de l'acquéreur
Tous les biens de l'office
350 000 €
340 000 € + Honoraires de négociation TTC : 10 000 €
Soit 2,94% à la charge de l'acquéreur
Barème des honoraires de négociation

Financer ce bien Assurance emprunteur
Déménagement Améliorer son habitat
Caractéristiques
Surface habitable
350  m2
Surface terrain
1 600  m2
Pièces
13
Chambres
7
Chauffage
Cheminée et/ou insert, Fuel, cheminee
Taxe foncière
3193.0
Etat général
A rénover
Année de construction
1933
Nombre d'étage(s)
2
Cave
Oui
Terrasse
Oui
Place(s) parking
1
Garage
Oui
Garage(s)
2
Référence
87006/1177
Les +
Centre Ville
Bus
Commerces
Ecole

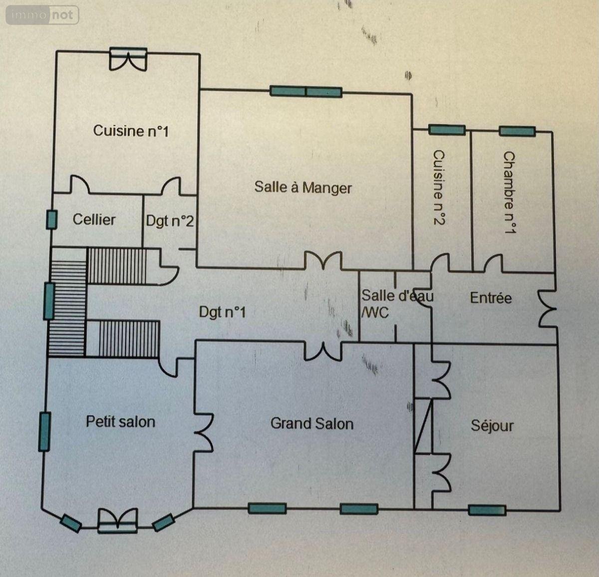
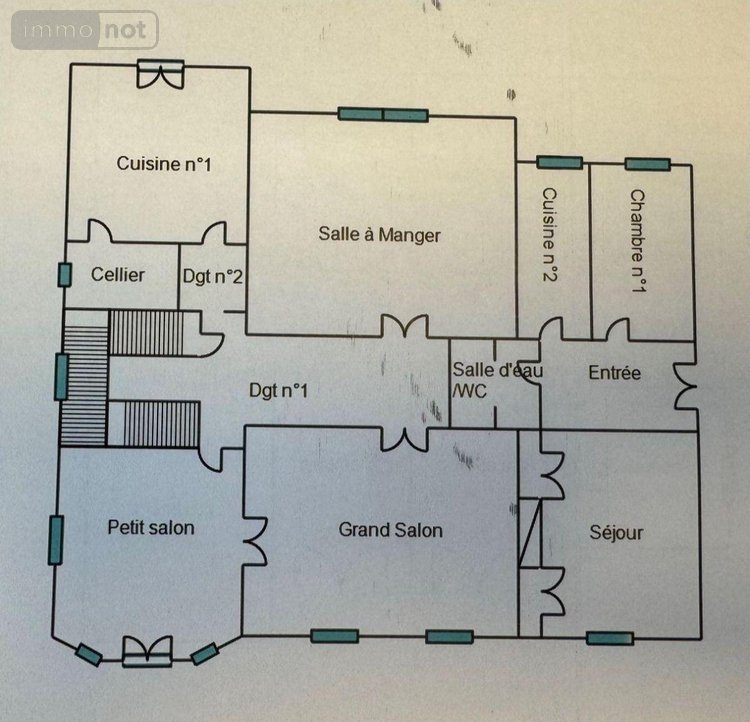
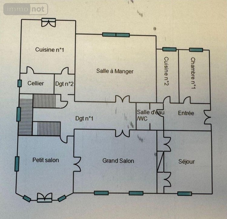
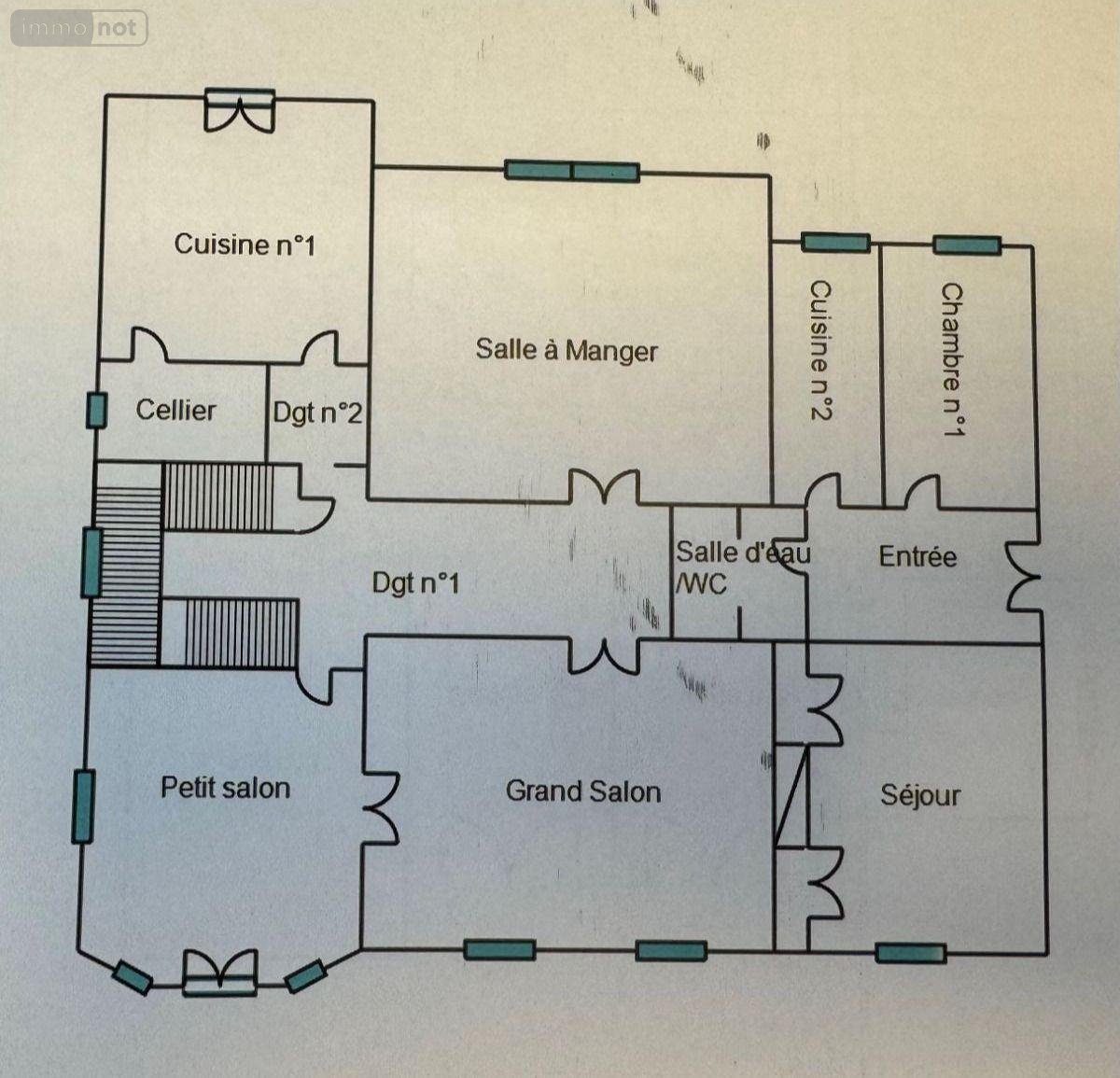
Maison de maître à vendre à Aixe-sur-Vienne en Haute-Vienne (87700), ref : 87006/1177

AIXE SUR VIENNE (87700) - En centre ville, proche commerces et commodités, maison de maître (1930) avec beaucoup de cachet, disposant de 350m2 environ, bien entretenue, éléments anciens préservés, élevée sur caves/2 garages/chaufferie/buanderie.
Rez-de-chaussée lumineux et traversant : vaste entrée, pièces de réception de 46m2 avec belles cheminées anciennes, parquet - salle à manger (27m2) vue sur jardin - cuisine reliée au jardin et à un cellier,
1er étage : palier desservant 4 chambres spacieuses (plus de 15m2) dont certaines avec point d'eau, parquet, anciennes cheminées, salle de bains avec charmant petit balcon, WC, lingerie,
2ème étage : 2 chambres, grenier d'environ 150m2 aménageable.
+ Appartement sur le côté indépendant (ou pouvant communiquer avec la partie principale) en partie rénové de 45m2 environ : avec sa propre entrée, cuisine aménagée, salle d'eau et WC refaits, salon et chambre.
Chaudière au fioul, cheminées - électricité refaite - cour fermée devant par un porche, terrain arboré et plat sur l'arrière avec petites dépendances.

Diagnostics (Réalisé le 05/03/2024 et présenté selon la référence en vigueur de 2021)

Consommation énergétique (dont Émissions de gaz à effet de serre)

A
B
C
D
E
F
G
382
Économe
Énergivore
Tableau de diagnostic de la performance énergétique des logements
Consommations énergétiques
Consommations énergétiques (en énergie primaire) pour le chauffage, la production d'eau chaude sanitaire et le refroidissement Indice de mesure : kWhEP/m 2 .an
A
B
C
D
E
F
G
105
Faible émission
Forte émission
Tableau de diagnostic de la performance énergétique des logements
Émissions de gaz à effet de serre
Émissions de gaz à effet de serre (GES) pour le chauffage, la production d'eau chaude sanitaire et le refroidissement Indice de mesure : kgeqCO2/m 2 .an

Logement à consommation énergétique excessive

Estimation annuelle des coûts d'énergie du logement

Montant estimé des dépenses annuelle des coûts d'énergie du logement.

Entre 9860 € et 13390 € par an

Prix moyen des énergies indexées sur l'année de référence (abonnements compris)

État des risques

Les informations sur les risques auxquels ce bien est exposé sont disponibles sur le site Géorisques : www.georisques.gouv.fr

Contacter l'office notarial
NOTAIRES SAINT SURIN

15 bis avenue Saint-Surin BP 510
87012 LIMOGES CEDEX
Voir le site web
Tous les biens de l'office notarial
Votre contact : Sandrine BERNABEU

Formulaire de contact

Nous vous informons de l'existence de la liste d'opposition au démarchage téléphonique BLOCTEL sur laquelle vous pouvez vous inscrire bloctel.gouv.fr.

Confidentialité et conformité au RGPD.
Vos données personnelles sont traitées par Notariat Services en tant que responsable de traitement afin de répondre à votre demande de mise en relation avec NOTAIRES SAINT SURIN. Les grandes lignes concernant la responsabilité liée à ce traitement effectué par Notariat Services sont disponibles ici. Vos données sont conservées pendant 36 mois et sont destinées à la mise en relation avec NOTAIRES SAINT SURIN. Conformément à la loi "informatique et libertés" et au RGPD, vous pouvez exercer vos droits d'opposition, d'accès, de rectification, d'effacement, de limitation et de portabilité en adressant un email à l'adresse suivante : [email protected]. Vous pouvez également adresser une réclamation auprés de la CNIL directement via son site internet www.cnil.fr.

Les champs obligatoires sont marqués *.

Contacter l'office notarial
NOTAIRES SAINT SURIN

15 bis avenue Saint-Surin BP 510
87012 LIMOGES CEDEX
Voir le site web
Tous les biens de l'office notarial
Votre contact : Sandrine BERNABEU
SIRET:
306 593 880 00033
TVA Intra-communautaire:
FR07 306 593 880
/>