Immonot, l'immobilier des notaires
Achat - Maison
Saint-Vincent-du-Lorouër (72150)
281 400 €
268 000 € + Honoraires de négociation TTC : 13 400 €
Soit 5,0% à la charge de l'acquéreur
Numéro principal :
06 31 61 26 41
Envoyer un email
Numéro principal :
06 31 61 26 41
Email

Achat Maison Saint-Vincent-du-Lorouër (72150) 9 pièces 172 m2


Retour
281 400 €
268 000 € + Honoraires de négociation TTC : 13 400 €
Soit 5,0% à la charge de l'acquéreur
Tous les biens de l'office
281 400 €
268 000 € + Honoraires de négociation TTC : 13 400 €
Soit 5,0% à la charge de l'acquéreur
Barème des honoraires de négociation

Financer ce bien Assurance emprunteur
Déménagement Écorénover son logement
Caractéristiques
Surface habitable
172,86  m2
Surface terrain
5 150  m2
Pièces
9
Chambres
4
Référence
13816/1160

Maison à vendre à Saint-Vincent-du-Lorouër dans la Sarthe (72150), ref : 13816/1160
BOURG

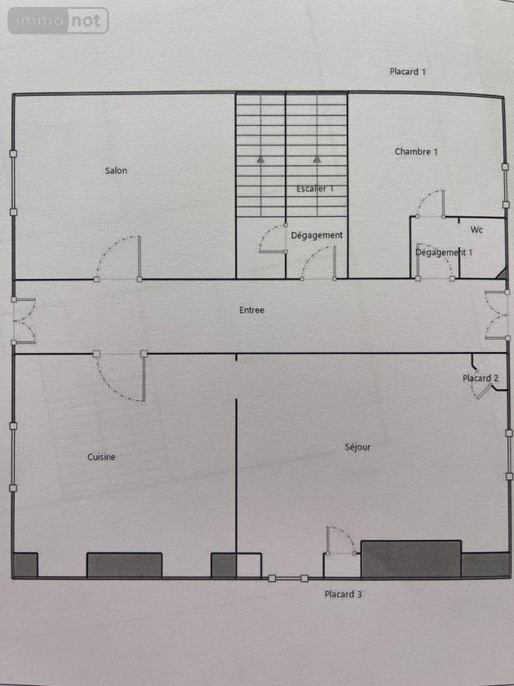
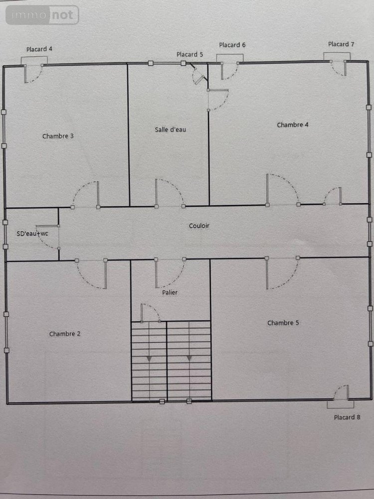
Bourg , à proximité de toutes commodités. Maison de Maitre à vendre à Saint-Vincent-du-Lorouër (72150) en Sarthe (72) entre le Mans et Tours, à 5 minutes du Grand Lucé. Cette propriété offre 172,86 m² habitables, ainsi qu'un grand potentiel de développement de ses superficies habitables. Elle possède également des dépendances , le tout un TERRAIN de 5150m², offrant un espace extérieur significatif avec son PARC paysagé et arboré d'arbres centenaires, avec son espace de stationnement, son bassin? La configuration de la maison inclut un espace de vie spacieux, idéal pour les activités familiales ou d'accueil. Les chambres sont réparties de manière à offrir de l'intimité aux occupants. L'agencement des pièces permet une circulation fluide à travers l'ensemble de la maison qui a su conserver ses éléments de caractère et d'authenticité (parquets, moulures, pavage, hauteur sous plafonds , etc. . MAISON COMPRENANT: Hall d'entrée (traversant sur parc), donnant accès à une pièce de vie avec cheminée insert, ouverte sur une Cuisine dinatoire. Salon (sur sol parquet), dégagement desservant un WC et une Chambre/Bureau. EN ETAGE : Couloir desservant quatre Chambres indépendantes (sur sols parquets) , une Salle d'eau (avec douche bac large, vasque. Double accès par le couloir et par une chambre) , un Cabinet de toilette avec WC et douche. GRENIER SUR L'ENSEMBLE . Les DEPENDANCES offrent un premier corps de bâtiment à rénover en fonction de vos projets (il est constitué de 4 pièces et d'un four à pains . Le second bâtiment compte trois pièces, un four à pains, ainsi qu'un grenier sur l'ensemble, ETC ?. Les couvertures sont récentes, l'assainissement est collectif (tout à l'égout). PREVOIR TRAVAUX (dont embellissements et isolation ) . Un AUDIT énergétique réalisé pourra vous donner des préconisation pour améliorer la classe énergétique ( nous consulter). Saint-Vincent-du-Lorouër est une commune de la Sarthe, offrant divers points d'intérêt. Les résidents bénéficient de proximité avec plusieurs écoles, commerces locaux et services à la personne. La commune possède également des espaces verts, des étangs, propices aux activités en plein air. Proche de la foret de Bercé. Les transports en commun (bus) sont accessibles à pied depuis la maison. Le prix de vente est fixé à 281400 euros. Contactez notre office notarial pour obtenir de plus amples renseignements sur cette maison à vendre à Saint-Vincent-du-Lorouër. Retrouvez toutes nos annonces sur le site internet de notre étude : www.arn.notaires.fr.

Maison à vendre à Saint-Vincent-du-Lorouër dans la Sarthe (72150), ref : 13816/1160
BOURG

House for Sale in Saint-Vincent-du-Lorouër (72150) in Sarthe (72)
This house offers 172.86 m² of living space on 5150 m² of land. The property comprises a total of 9 rooms, including 4 bedrooms. This configuration makes it ideal for a family or shared living arrangement.
The location in Saint-Vincent-du-Lorouër, in the Sarthe département, gives access to a wide range of services and infrastructures. The commune is close to major roads, making it easy to get to neighboring towns. Shops, educational establishments and health services are all within easy reach, making daily life more convenient.
The surrounding countryside and green spaces contribute to a pleasant living environment, encouraging outdoor activities. What's more, the commune is close to places of cultural and historical interest that can enrich local life.
The selling price of this house is 281400 euros.
Contact our notary office for more information on this house for sale in Saint-Vincent-du-Lorouër.

Maison à vendre à Saint-Vincent-du-Lorouër dans la Sarthe (72150), ref : 13816/1160
BOURG

Casa en venta en Saint-Vincent-du-Lorouër (72150) en Sarthe (72)
Ésta casa tiene 172,86 m² de espacio habitable y está construida sobre un terreno de 5 150 m². Ella posee 9 piezas, de los cuales 4 dormitorios, lo que la hace ideal para una familia o un proyecto que requiera varios espacios habitables.
La casa está situada en Saint-Vincent-du-Lorouër, un pueblo con comodidades locales, tiendas locales y servicios esenciales. La campiña circundante ofrece el escenario perfecto para una amplia gama de actividades al aire libre.
La región de Sarthe también es conocida por sus atracciones turísticas, entre las que destaca el famoso circuito de las 24 Horas de Le Mans, que atrae a numerosos visitantes cada año. Otros lugares de interés, como el Parque Natural Regional de Normandie-Maine, se encuentran en las inmediaciones y ofrecen la oportunidad de practicar senderismo y exploración.
El precio de venta de esta casa es de 281.400 euros.
Contacte con nuestra notaría para más información sobre esta casa en venta en Saint-Vincent-du-Lorouër.

Diagnostics (Réalisé le 30/07/2024 et présenté selon la référence en vigueur de 2021)

Consommation énergétique (dont Émissions de gaz à effet de serre)

A
B
C
D
E
F
311
G
Économe
Énergivore
Tableau de diagnostic de la performance énergétique des logements
Consommations énergétiques
Consommations énergétiques (en énergie primaire) pour le chauffage, la production d'eau chaude sanitaire et le refroidissement Indice de mesure : kWhEP/m 2 .an
A
B
C
D
E
F
71
G
Faible émission
Forte émission
Tableau de diagnostic de la performance énergétique des logements
Émissions de gaz à effet de serre
Émissions de gaz à effet de serre (GES) pour le chauffage, la production d'eau chaude sanitaire et le refroidissement Indice de mesure : kgeqCO2/m 2 .an

Logement à consommation énergétique excessive

Estimation annuelle des coûts d'énergie du logement

Montant estimé des dépenses annuelle des coûts d'énergie du logement.

Entre 5320 € et 7250 € par an

Prix moyen des énergies indexées sur l'année de référence (abonnements compris)

État des risques

Les informations sur les risques auxquels ce bien est exposé sont disponibles sur le site Géorisques : www.georisques.gouv.fr

Contacter l'office notarial
SAS ALLIANCE RESEAU NOTAIRES

9 place du Château
72150 LE GRAND LUCE
Voir le site web
Tous les biens de l'office notarial
Votre contact : Grégory PILLAULT

Formulaire de contact

Nous vous informons de l'existence de la liste d'opposition au démarchage téléphonique BLOCTEL sur laquelle vous pouvez vous inscrire bloctel.gouv.fr.

Confidentialité et conformité au RGPD.
Vos données personnelles sont traitées par Notariat Services en tant que responsable de traitement afin de répondre à votre demande de mise en relation avec SAS ALLIANCE RESEAU NOTAIRES. Les grandes lignes concernant la responsabilité liée à ce traitement effectué par Notariat Services sont disponibles ici. Vos données sont conservées pendant 36 mois et sont destinées à la mise en relation avec SAS ALLIANCE RESEAU NOTAIRES. Conformément à la loi "informatique et libertés" et au RGPD, vous pouvez exercer vos droits d'opposition, d'accès, de rectification, d'effacement, de limitation et de portabilité en adressant un email à l'adresse suivante : [email protected]. Vous pouvez également adresser une réclamation auprés de la CNIL directement via son site internet www.cnil.fr.

Les champs obligatoires sont marqués *.

Contacter l'office notarial
SAS ALLIANCE RESEAU NOTAIRES

9 place du Château
72150 LE GRAND LUCE
Voir le site web
Tous les biens de l'office notarial
Votre contact : Grégory PILLAULT
SIRET:
531 373 744 00014
TVA Intra-communautaire:
FR61 531 373 744
/>