Immonot, l'immobilier des notaires
Achat - Maison
Clermont-Ferrand (63000)
252 000 €
240 000 € + Honoraires de négociation TTC : 12 000 €
Soit 5,0% à la charge de l'acquéreur
Numéro principal :
07 80 59 49 39
Envoyer un email
Numéro principal :
07 80 59 49 39
Email

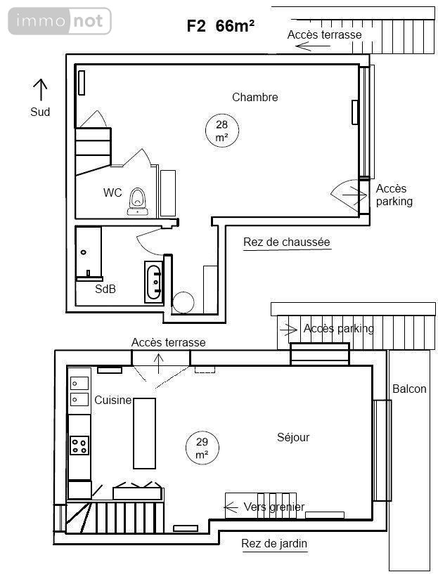
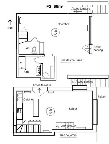
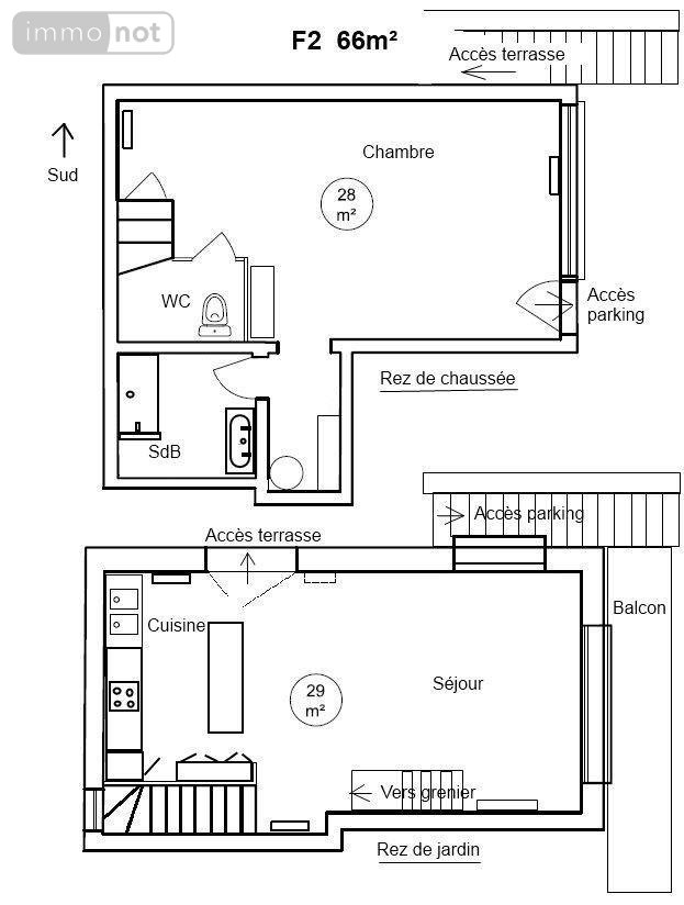
Achat Maison Clermont-Ferrand (63000) 8 pièces 110 m2


Retour
252 000 €
240 000 € + Honoraires de négociation TTC : 12 000 €
Soit 5,0% à la charge de l'acquéreur
Tous les biens de l'office
252 000 €
240 000 € + Honoraires de négociation TTC : 12 000 €
Soit 5,0% à la charge de l'acquéreur
Barème des honoraires de négociation

Financer ce bien Assurance Emprunteur
Déménagement Améliorer son habitat
Caractéristiques
Surface habitable
110  m2
Surface terrain
658 m
Pièces
8
Chauffage
Electricite
Taxe foncière
1832.0
Etat général
Bon
Meuble
Non
Place(s) parking
2
Référence
2025-64-2025399
Les +
Bus
Commerces
Ecole

Maison à vendre à Clermont-Ferrand dans le Puy-de-Dôme (63000), ref : 2025-64-2025399

Votre Office Notarial vous propose à CLERMONT-FERRAND, proche des facultés, maison s'élevant sur 3 niveaux comprenant un appartement de type F2 en rez de chaussée + un duplex s'élevant sur 2 niveaux avec accès direct sur terrasse et jardin. Possibilité création 3ème appartement dans la bâtisse. Entrées indépendantes pour chaque appartements. Combles privatives à 2 appartements pouvant faire office de dortoir ou stockage. Parking privatif 3 véhicules. Locataire en place sur un appartement. Proximité commerces et services. Idéal investisseurs! Pour tous renseignements, contacter Sarah HENNION.

Diagnostics (Réalisé le 09/08/2023 et présenté selon la référence en vigueur de 2021)

Consommation énergétique (dont Émissions de gaz à effet de serre)

A
B
C
D
226
E
F
G
Économe
Énergivore
Tableau de diagnostic de la performance énergétique des logements
Consommations énergétiques
Consommations énergétiques (en énergie primaire) pour le chauffage, la production d'eau chaude sanitaire et le refroidissement Indice de mesure : kWhEP/m 2 .an
A
B
7
C
D
E
F
G
Faible émission
Forte émission
Tableau de diagnostic de la performance énergétique des logements
Émissions de gaz à effet de serre
Émissions de gaz à effet de serre (GES) pour le chauffage, la production d'eau chaude sanitaire et le refroidissement Indice de mesure : kgeqCO2/m 2 .an

Estimation annuelle des coûts d'énergie du logement

Montant estimé des dépenses annuelle des coûts d'énergie du logement.

Entre 950 € et 1330 € par an

Prix moyen des énergies indexées sur l'année de référence (abonnements compris)

État des risques

Les informations sur les risques auxquels ce bien est exposé sont disponibles sur le site Géorisques : www.georisques.gouv.fr

Contacter l'office notarial
Etude de Me L. GACHON

10 rue d'Aucène
63490 SAUXILLANGES

Tous les biens de l'office notarial
Votre contact : Sarah HENNION

Formulaire de contact

Nous vous informons de l'existence de la liste d'opposition au démarchage téléphonique BLOCTEL sur laquelle vous pouvez vous inscrire bloctel.gouv.fr.

Confidentialité et conformité au RGPD.
Vos données personnelles sont traitées par Notariat Services en tant que responsable de traitement afin de répondre à votre demande de mise en relation avec OFFICE NOTARIAL DE SAUXILLANGES. Les grandes lignes concernant la responsabilité liée à ce traitement effectué par Notariat Services sont disponibles ici. Vos données sont conservées pendant 36 mois et sont destinées à la mise en relation avec OFFICE NOTARIAL DE SAUXILLANGES. Conformément à la loi "informatique et libertés" et au RGPD, vous pouvez exercer vos droits d'opposition, d'accès, de rectification, d'effacement, de limitation et de portabilité en adressant un email à l'adresse suivante : [email protected]. Vous pouvez également adresser une réclamation auprés de la CNIL directement via son site internet www.cnil.fr.

Les champs obligatoires sont marqués *.

Contacter l'office notarial
Etude de Me L. GACHON

10 rue d'Aucène
63490 SAUXILLANGES

Tous les biens de l'office notarial
Votre contact : Sarah HENNION
SIRET:
830 493 821 00029
TVA Intra-communautaire:
FR03 830 493 821
/>