Immonot, l'immobilier des notaires
Achat - Maison
Lécluse (59259)
225 000 €
(Honoraires de négociation à la charge du vendeur)
Numéro principal :
03.21.73.03.22
Envoyer un email
Numéro principal :
03.21.73.03.22
Email

Achat Maison Lécluse (59259) 6 pièces 211 m2


Retour
225 000 €
(Honoraires de négociation à la charge du vendeur)
Tous les biens de l'office
225 000 €
(Honoraires de négociation à la charge du vendeur)
Barème des honoraires de négociation

Financer ce bien Assurance Emprunteur
Déménagement Améliorer son habitat
Caractéristiques
Surface habitable
211  m2
Surface terrain
467 m
Pièces
6
Chambres
5
Chauffage
Électricité, Poêle à granulés
Référence
62017-3220

Maison à vendre à Lécluse dans le Nord (59259), ref : 62017-3220

++ Exclusivité Etude ++
Maison à vendre à LECLUSE (59259 Nord).
Cette maison, rénovée intérieurement, se compose sur environ 211 m² habitables comme suit :
- rez-de-chaussée :
* entrée sur couloir ;
* séjour (17,8 m²) ouvert sur salon (25,05 m²) donnant sur cuisine équipée avec son espace repas (18,5 m²) ;
* dégagement vers étage / cave ;
* WC / buanderie ;
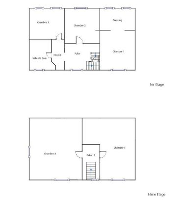
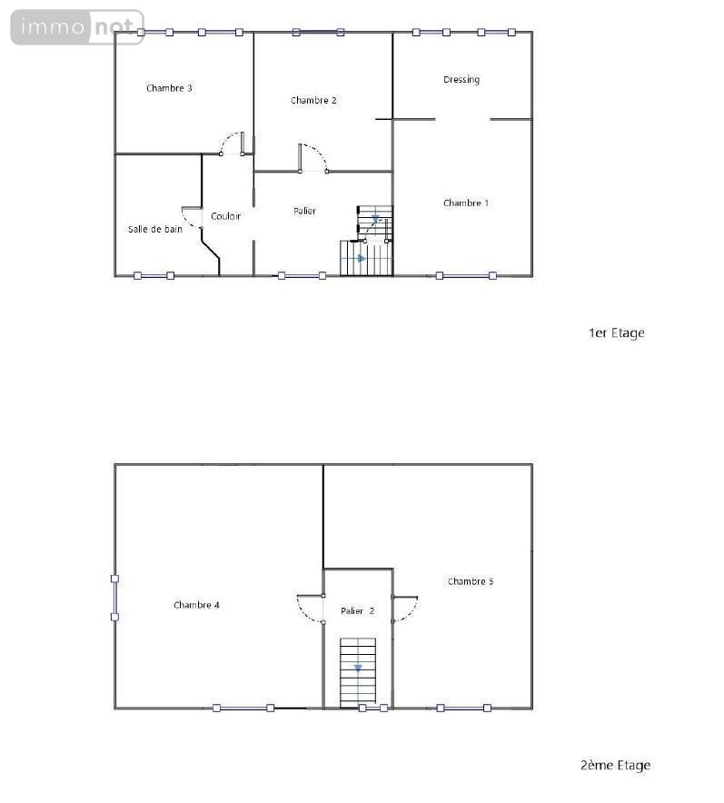
- 1er étage : palier desservant :
* 3 chambres dont une avec dressing : 18,2 m² + 7,8 m² de dressing / 11,47 m² / 14,5 m² ;
* salle de bain avec WC (13,2 m²) :
- 2ème étage : palier desservant deux grandes chambres (19,8 m² / 25,6 m²) ;
- cave.
La maison est actuellement :
- chauffée par poêle à pellets pour le rdc + radiateurs électriques pour étages ;
- équipée de menuiseries en PVC/aluminium double vitrage (avec volets, électriques pour partie) ;
- raccordée au tout à l'égout.
A l'extérieur, la maison dispose :
- d'un jardin clos à l'arrière (pas de passage privatif sur le côté de la maison) ;
- d'une ancienne petite dépendance à rénover ;
- d'un local, attenant à la maison mais avec son entrée indépendante, loué par bail commercial, moyennant un loyer de 100 € / mois + 60 € de provision sur charges (eau et électricité).
Des travaux de finitions extérieures sont à prévoir, en particulier pour la façade arrière / terrasse / jardin.
Taxe foncière 2025 : 1.486 €.
Le tout sur et avec 467 m² de terrain.
Informations relatives au diagnostic de performance énergétique : Consommations énergétiques (CE) Classe D indice 196 kWhEP/m²/an et émissions de gaz à effet de serre (GES) Classe B indice 6 kgéqCO2/m²/an.
Les informations sur les risques auxquels ce bien est exposé sont disponibles sur le site Géorisques : www.georisques.gouv.fr
Prix de vente : 225.000 € (honoraire de négociation à la charge du vendeur), provision sur frais d'acte de vente : 18.500 €.
Secteur MARQUION, BARALLE, BUISSY, BOURLON, CAGNICOURT, LAGNICOURT, BAPAUME, BULLECOURT, DURY, VIS-EN-ARTOIS, CROISILLES, ECOUST-SAINT-MEIN, PRONVILLE, INCHY-EN-ARTOIS, MOEUVRES, LAGNICOURT-MARCEL, OISY-LE-VERGER, BUGNICOURT, CANTIN, GOEULZIN, FERIN, LECLUSE, BRUNEMONT, HAMEL, TORTEQUESNE, ESTREES, BELLONNE, MORCHIES, VAULX-VRAUCOURT, CHERISY, DOIGNIES, HERMIES, BERTINCOURT, SAUDEMONT, RUMAUCOURT, ECOURT-SAINT-QUENTIN, SAUCHY-LESTREE, SAUCHY-CAUCHY, EPINOY, AUBIGNY-AU-BAC, BRUNEMONT, AUBENCHEUL-AU-BAC, SAILLY-LEZ-CAMBRAI, NEUVILLE-SAINT-REMY, RAILLENCOURT-SAINT-OLLE, HAYNECOURT, SANCOURT, ABANCOURT, FRESSIES, FRESSAIN, MORY, ARRAS, CAMBRAI, GOUZEAUCOURT, HAVRINCOURT, ARLEUX, PALLUEL, ARRAS, DOUAI, CAMBRAI... E-Valley, Canal de la Sensée, marais, Canal Seine-Nord, proximité autoroutes A 1 / A 26 / A 2, ...

Diagnostics (Réalisé le 24/04/2025 et présenté selon la référence en vigueur de 2021)

Consommation énergétique (dont Émissions de gaz à effet de serre)

A
B
C
D
196
E
F
G
Économe
Énergivore
Tableau de diagnostic de la performance énergétique des logements
Consommations énergétiques
Consommations énergétiques (en énergie primaire) pour le chauffage, la production d'eau chaude sanitaire et le refroidissement Indice de mesure : kWhEP/m 2 .an
A
B
6
C
D
E
F
G
Faible émission
Forte émission
Tableau de diagnostic de la performance énergétique des logements
Émissions de gaz à effet de serre
Émissions de gaz à effet de serre (GES) pour le chauffage, la production d'eau chaude sanitaire et le refroidissement Indice de mesure : kgeqCO2/m 2 .an

Estimation annuelle des coûts d'énergie du logement

Montant estimé des dépenses annuelle des coûts d'énergie du logement.

Entre 2830 € et 3900 € par an

Prix moyen des énergies indexées sur l'année de référence (abonnements compris)

État des risques

Les informations sur les risques auxquels ce bien est exposé sont disponibles sur le site Géorisques : www.georisques.gouv.fr

Contacter l'office notarial
SCP CORBISÉ et FRANCOIS

40 route Nationale
62860 MARQUION

Tous les biens de l'office notarial

Formulaire de contact

Nous vous informons de l'existence de la liste d'opposition au démarchage téléphonique BLOCTEL sur laquelle vous pouvez vous inscrire bloctel.gouv.fr.

Confidentialité et conformité au RGPD.
Vos données personnelles sont traitées par Notariat Services en tant que responsable de traitement afin de répondre à votre demande de mise en relation avec SCP David CORBISÉ et Philippe FRANCOIS. Les grandes lignes concernant la responsabilité liée à ce traitement effectué par Notariat Services sont disponibles ici. Vos données sont conservées pendant 36 mois et sont destinées à la mise en relation avec SCP David CORBISÉ et Philippe FRANCOIS. Conformément à la loi "informatique et libertés" et au RGPD, vous pouvez exercer vos droits d'opposition, d'accès, de rectification, d'effacement, de limitation et de portabilité en adressant un email à l'adresse suivante : [email protected]. Vous pouvez également adresser une réclamation auprés de la CNIL directement via son site internet www.cnil.fr.

Les champs obligatoires sont marqués *.

Contacter l'office notarial
SCP CORBISÉ et FRANCOIS

40 route Nationale
62860 MARQUION

Tous les biens de l'office notarial
SIRET:
784 040 859 00018
TVA Intra-communautaire:
FR47 784 040 859
/>