Immonot, l'immobilier des notaires
Achat - Maison
Écourt-Saint-Quentin (62860)
236 000 €
(Honoraires de négociation à la charge du vendeur)
Numéro principal :
03.21.73.03.22
Envoyer un email
Numéro principal :
03.21.73.03.22
Email

Achat Maison Écourt-Saint-Quentin (62860) 10 pièces 196 m2


Retour
236 000 €
(Honoraires de négociation à la charge du vendeur)
Tous les biens de l'office
236 000 €
(Honoraires de négociation à la charge du vendeur)
Barème des honoraires de négociation

Financer ce bien Assurance emprunteur
Déménagement Améliorer son habitat
Caractéristiques
Surface habitable
196  m2
Surface terrain
560 m
Pièces
10
Chambres
6
Chauffage
Gaz de ville
Garage
Oui
Référence
62017-3213

Maison à vendre à Écourt-Saint-Quentin dans le Pas-de-Calais (62860), ref : 62017-3213

Maison individuelle de semi plain pied à vendre à ECOURT-SAINT-QUENTIN (62860 Pas-de-Calais).
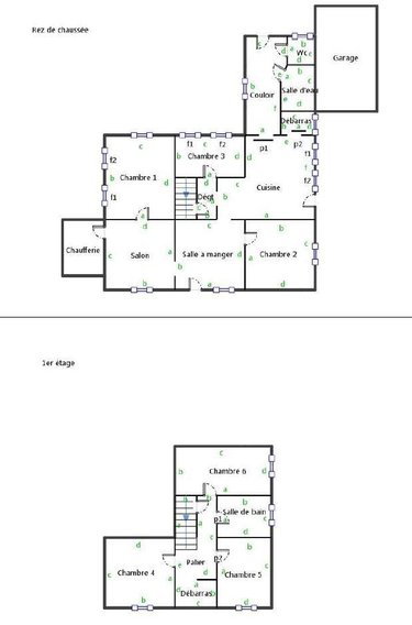
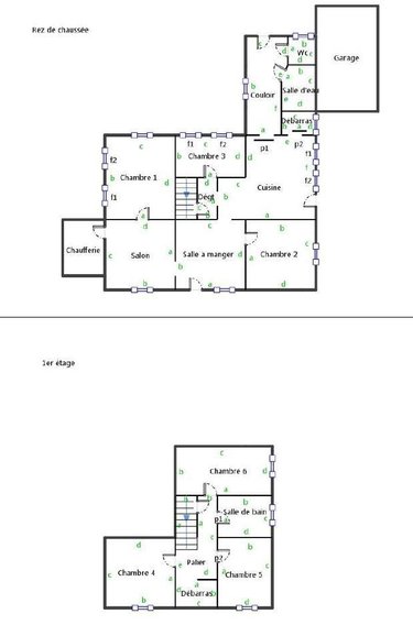
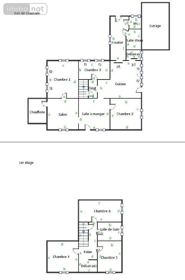
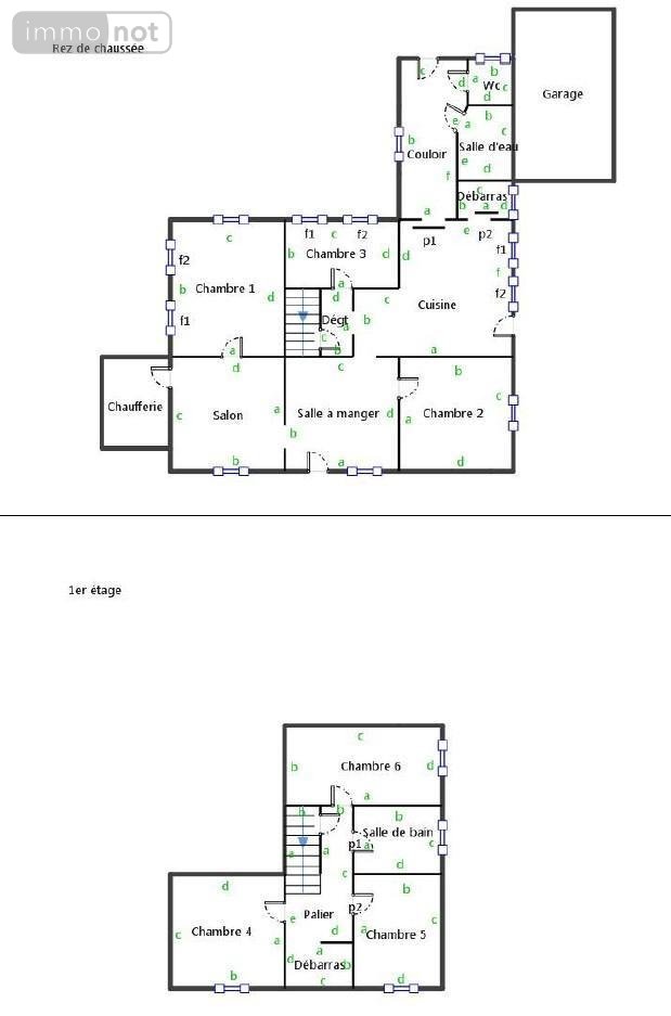
Cette maison se compose sur environ 196 m² habitables comme suit :
- rez-de-chaussée :
* entrée sur séjour (23 m²) avec salon attenant (16,5 m²) et ouvert sur grande cuisine équipée lumineuse avec son espace repas (17 m²) et cagibis (2,5 m²);
* 3 chambres (21,5 m² / 13,5 m² / 16,5 m²) ;
* couloir menant à une salle d'eau avec espace buanderie (6 m²), WC (1,4 m²), et accès extérieur ;
* couloir menant à l'étage :
- 1er étage : palier desservant :
* 3 chambres (14,2 m² / 14,3 m² / 16,8 m²) ;
* 1 pièce pour dressing (3,3 m²) ;
* salle de bains (6 m²) :
- 2ème étage : grand grenier isolé (35 m² loi Carrez) ;
- cave.
La maison est :
- chauffée au gaz de ville (chaudière 2020) ;
- équipée de menuiseries en PVC double vitrage (avec volets, électriques pour partie) ;
- raccordée au tout à l'égout.
A l'extérieur, la maison dispose :
- d'une allée pour stationnement de deux véhicules ;
- d'un garage ;
- d'un jardin entièrement clos.
Taxe foncière 2023 : 1.100 €.
Le tout sur et avec 560 m² de terrain.
Informations relatives au diagnostic de performance énergétique : Consommations énergétiques (CE) Classe E indice 303 kWhEP/m²/an et émissions de gaz à effet de serre (GES) Classe E indice 51 kgéqCO2/m²/an.
Les informations sur les risques auxquels ce bien est exposé sont disponibles sur le site Géorisques : www.georisques.gouv.fr
Prix de vente : 236.000 € (honoraire de négociation à la charge du vendeur).
Provision sur frais d'acte de vente : 19.300 €.
Secteur MARQUION, BARALLE, BUISSY, BOURLON, CAGNICOURT, LAGNICOURT, BAPAUME, BULLECOURT, DURY, VIS-EN-ARTOIS, CROISILLES, ECOUST-SAINT-MEIN, PRONVILLE, INCHY-EN-ARTOIS, MOEUVRES, LAGNICOURT-MARCEL, OISY-LE-VERGER, BUGNICOURT, CANTIN, GOEULZIN, FERIN, LECLUSE, BRUNEMONT, HAMEL, TORTEQUESNE, ESTREES, BELLONNE, MORCHIES, VAULX-VRAUCOURT, CHERISY, DOIGNIES, HERMIES, BERTINCOURT, SAUDEMONT, RUMAUCOURT, ECOURT-SAINT-QUENTIN, SAUCHY-LESTREE, SAUCHY-CAUCHY, EPINOY, AUBIGNY-AU-BAC, BRUNEMONT, AUBENCHEUL-AU-BAC, SAILLY-LEZ-CAMBRAI, NEUVILLE-SAINT-REMY, RAILLENCOURT-SAINT-OLLE, HAYNECOURT, SANCOURT, ABANCOURT, FRESSIES, FRESSAIN, MORY, ARRAS, CAMBRAI, GOUZEAUCOURT, HAVRINCOURT, ARLEUX, PALLUEL, ARRAS, DOUAI, CAMBRAI..... E-Valley, Canal de la Sensée, marais, Canal Seine-Nord, proximité autoroutes A 1 / A 26 / A 2, ...

Diagnostics (Réalisé le 28/08/2024 et présenté selon la référence en vigueur de 2021)

Consommation énergétique (dont Émissions de gaz à effet de serre)

A
B
C
D
E
303
F
G
Économe
Énergivore
Tableau de diagnostic de la performance énergétique des logements
Consommations énergétiques
Consommations énergétiques (en énergie primaire) pour le chauffage, la production d'eau chaude sanitaire et le refroidissement Indice de mesure : kWhEP/m 2 .an
A
B
C
D
E
51
F
G
Faible émission
Forte émission
Tableau de diagnostic de la performance énergétique des logements
Émissions de gaz à effet de serre
Émissions de gaz à effet de serre (GES) pour le chauffage, la production d'eau chaude sanitaire et le refroidissement Indice de mesure : kgeqCO2/m 2 .an

Estimation annuelle des coûts d'énergie du logement

Montant estimé des dépenses annuelle des coûts d'énergie du logement.

Entre 5160 € et 7040 € par an

Prix moyen des énergies indexées sur l'année de référence (abonnements compris)

État des risques

Les informations sur les risques auxquels ce bien est exposé sont disponibles sur le site Géorisques : www.georisques.gouv.fr

Contacter l'office notarial
SCP CORBISÉ et FRANCOIS

40 route Nationale
62860 MARQUION

Tous les biens de l'office notarial

Formulaire de contact

Nous vous informons de l'existence de la liste d'opposition au démarchage téléphonique BLOCTEL sur laquelle vous pouvez vous inscrire bloctel.gouv.fr.

Confidentialité et conformité au RGPD.
Vos données personnelles sont traitées par Notariat Services en tant que responsable de traitement afin de répondre à votre demande de mise en relation avec SCP David CORBISÉ et Philippe FRANCOIS. Les grandes lignes concernant la responsabilité liée à ce traitement effectué par Notariat Services sont disponibles ici. Vos données sont conservées pendant 36 mois et sont destinées à la mise en relation avec SCP David CORBISÉ et Philippe FRANCOIS. Conformément à la loi "informatique et libertés" et au RGPD, vous pouvez exercer vos droits d'opposition, d'accès, de rectification, d'effacement, de limitation et de portabilité en adressant un email à l'adresse suivante : [email protected]. Vous pouvez également adresser une réclamation auprés de la CNIL directement via son site internet www.cnil.fr.

Les champs obligatoires sont marqués *.

Contacter l'office notarial
SCP CORBISÉ et FRANCOIS

40 route Nationale
62860 MARQUION

Tous les biens de l'office notarial
SIRET:
784 040 859 00018
TVA Intra-communautaire:
FR47 784 040 859
/>