Immonot, l'immobilier des notaires
Achat - Maison
Marquion (62860)
179 350 €
170 000 € + Honoraires de négociation TTC : 9 350 €
Soit 5,5% à la charge de l'acquéreur
Numéro principal :
03.21.73.03.22
Envoyer un email
Numéro principal :
03.21.73.03.22
Email

Achat Maison Marquion (62860) 4 pièces 135 m2


Retour
179 350 €
170 000 € + Honoraires de négociation TTC : 9 350 €
Soit 5,5% à la charge de l'acquéreur
Tous les biens de l'office
179 350 €
170 000 € + Honoraires de négociation TTC : 9 350 €
Soit 5,5% à la charge de l'acquéreur
Barème des honoraires de négociation

Financer ce bien Assurer
Déménagement Améliorer son habitat
Caractéristiques
Surface habitable
135  m2
Surface terrain
1 435  m2
Pièces
4
Chambres
2
Chauffage
Gaz de ville
Garage
Oui
Référence
62017-3197

Maison à vendre à Marquion dans le Pas-de-Calais (62860), ref : 62017-3197

Située dans un village à proximité de MARQUION (62860 Pas-de-Calais) :
Maison individuelle de type longère à vendre.
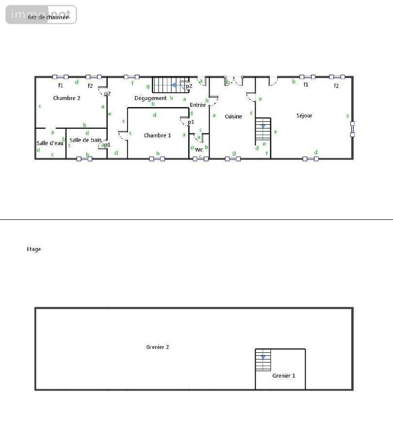
Cette maison, de plain pied et à conforter, se compose sur environ 135 m² habitables comme suit :
* entrée sur cuisine (23,6 m²) ;
* d'une part salon-séjour (42,9 m², cheminée non tubée, escalier menant à l'étage) ;
* d'autre part seconde entrée et couloir ;
* WC ;
* 2 chambres (14,7 m² et 17,7 m²) ;
* salle de bain (9,9 m²) ;
* salle d'eau (3 m², privative à une chambre) ;
* cave ;
* grand grenier isolé (avec écran sous-toiture déjà posé), offrant des possibilités supplémentaires d'aménagements, après travaux d'usage.
La maison est actuellement :
- chauffée au gaz de ville ;
- équipée de menuiseries en PVC double vitrage + volets électriques / en bois avec survitrage dans le salon-séjour ;
- raccordée à un assainissement individuel (qui sera à raccorder au réseau d'assainissement collectif, en cours d'élaboration dans la commune, par l'acquéreur, le moment venu).
A l'extérieur, la maison dispose :
- d'un portail motorisé à rue (moteur de 2024) ;
- de deux garages (portes manuelles) ;
- d'une terrasse en pavés ;
- d'un jardin clos et arboré.
Le tout sur et avec 1.435 m² de terrain.
Taxe foncière (2025) : 809 €.
Informations relatives au diagnostic de performance énergétique : Consommations énergétiques (CE) Classe F indice 414 kWhEP/m²/an et émissions de gaz à effet de serre (GES) Classe F indice 83 kgéqCO2/m²/an. Logement à consommations énergétiques excessives.
Les informations sur les risques auxquels ce bien est exposé sont disponibles sur le site Géorisques : www.georisques.gouv.fr
Prix de vente : 170.000 € net vendeur, honoraire de négociation à la charge de l'acquéreur : 9.350 € (5,5 % TTC du prix de vente), provision sur frais d'acte de vente : 14.400 €.
Secteur MARQUION, CAMBRAI, DOUAI, ARRAS, SAUCHY-CAUCHY, BOURLON, SAINS-LES-MARQUION, BARALLE, BUISSY, SAUCHY-CAUCHY, SAUCHY-LESTREE, SAUDEMONT, RECOURT, QUEANT, OISY-LE-VERGER, PALLUEL, CAGNICOURT, HENDECOURT-LES-CAGNICOURT, RIENCOURT-LES-CAGNICOURT, CROISILLES, AUBIGNY-AU-BAC, AUBENCHEUL-AU-BAC, EPINOY, BUGNICOURT, CANTIN, VITRY-EN-ARTOIS, BIACHE-SAINT-VAAST, GOUY-SOUS-BELLONNE, ARLEUX, TORTEQUESNE, ETAING, HAMEL, DURY, VIS-EN-ARTOIS, SAUDEMONT, RUMAUCOURT, ECOURT-SAINT-QUENTIN, LECLUSE, ETERPIGNY, REMY, HAMBLAIN-LES-PRES, BOIRY-NOTRE-DAME, PELVES, BREBIERES, FERIN, GOEULZIN, COURCHELETTES, LAMBRES-LES-DOUAI,..... E-VALLEY, OSARTIS, E-VALLEY, Canal Seine-Nord, proximité autoroutes A 1 / A 23 / A 2, ...

Diagnostics (Réalisé le 15/10/2025 et présenté selon la référence en vigueur de 2021)

Consommation énergétique (dont Émissions de gaz à effet de serre)

A
B
C
D
E
F
414
G
Économe
Énergivore
Tableau de diagnostic de la performance énergétique des logements
Consommations énergétiques
Consommations énergétiques (en énergie primaire) pour le chauffage, la production d'eau chaude sanitaire et le refroidissement Indice de mesure : kWhEP/m 2 .an
A
B
C
D
E
F
83
G
Faible émission
Forte émission
Tableau de diagnostic de la performance énergétique des logements
Émissions de gaz à effet de serre
Émissions de gaz à effet de serre (GES) pour le chauffage, la production d'eau chaude sanitaire et le refroidissement Indice de mesure : kgeqCO2/m 2 .an

Logement à consommation énergétique excessive

Estimation annuelle des coûts d'énergie du logement

Montant estimé des dépenses annuelle des coûts d'énergie du logement.

Entre 4610 € et 6270 € par an

Prix moyen des énergies indexées sur l'année de référence (abonnements compris)

État des risques

Les informations sur les risques auxquels ce bien est exposé sont disponibles sur le site Géorisques : www.georisques.gouv.fr

Contacter l'office notarial
SCP CORBISÉ et FRANCOIS

40 route Nationale
62860 MARQUION

Tous les biens de l'office notarial

Formulaire de contact

Nous vous informons de l'existence de la liste d'opposition au démarchage téléphonique BLOCTEL sur laquelle vous pouvez vous inscrire bloctel.gouv.fr.

Confidentialité et conformité au RGPD.
Vos données personnelles sont traitées par Notariat Services en tant que responsable de traitement afin de répondre à votre demande de mise en relation avec SCP David CORBISÉ et Philippe FRANCOIS. Les grandes lignes concernant la responsabilité liée à ce traitement effectué par Notariat Services sont disponibles ici. Vos données sont conservées pendant 36 mois et sont destinées à la mise en relation avec SCP David CORBISÉ et Philippe FRANCOIS. Conformément à la loi "informatique et libertés" et au RGPD, vous pouvez exercer vos droits d'opposition, d'accès, de rectification, d'effacement, de limitation et de portabilité en adressant un email à l'adresse suivante : [email protected]. Vous pouvez également adresser une réclamation auprés de la CNIL directement via son site internet www.cnil.fr.

Les champs obligatoires sont marqués *.

Contacter l'office notarial
SCP CORBISÉ et FRANCOIS

40 route Nationale
62860 MARQUION

Tous les biens de l'office notarial
SIRET:
784 040 859 00018
TVA Intra-communautaire:
FR47 784 040 859
/>