Immonot, l'immobilier des notaires
Achat - Maison
Inchy-en-Artois (62860)
189 900 €
(Honoraires de négociation à la charge du vendeur)
Numéro principal :
03.21.73.03.22
Envoyer un email
Numéro principal :
03.21.73.03.22
Email

Achat Maison Inchy-en-Artois (62860) 11 pièces 199 m2


Retour
189 900 €
(Honoraires de négociation à la charge du vendeur)
Tous les biens de l'office
189 900 €
(Honoraires de négociation à la charge du vendeur)
Barème des honoraires de négociation

Financer ce bien Assurance emprunteur
Déménagement Améliorer son habitat
Caractéristiques
Surface habitable
199,80  m2
Surface terrain
210  m2
Pièces
11
Chambres
6
Chauffage
Gaz de ville
Garage
Oui
Référence
62017-3105

Maison à vendre à Inchy-en-Artois dans le Pas-de-Calais (62860), ref : 62017-3105

Ensemble immobilier de 2 maisons à vendre à INCHY-EN-ARTOIS (62860 Pas-de-Calais).
Cet ensemble comprend donc :
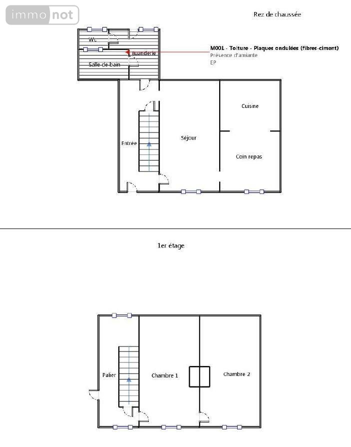
* une première maison, d'une superficie habitable d'environ 85,6 m², se composant :
- rez-de-chaussée : entrée (2,28 m²) donnant sur salon (13,65 m²), salle à manger (13 m²), cuisine (4,62 m²), dégagement (2,06 m²) donnant sur salle de bain (6,27 m²) et WC (1,19 m²) ;
- 1er étage : palier (4,81 m²) desservant 2 chambres (11,16 m² et 12,4 m² permettant d'accéder au 2ème étage) ;
- 2ème étage (mansardé) : 1 chambre (12,6 m²) et grenier ;
- extérieur : portail et cour fermée (pas de jardin), garage à rue.
Cette maison était précédemment louée 560 € / mois.
Informations relatives au diagnostic de performance énergétique : Consommations énergétiques (CE) Classe F indice 377 kWhEP/m²/an et émissions de gaz à effet de serre (GES) Classe F indice 72 kgéqCO2/m²/an. Logement à consommations énergétiques excessives.
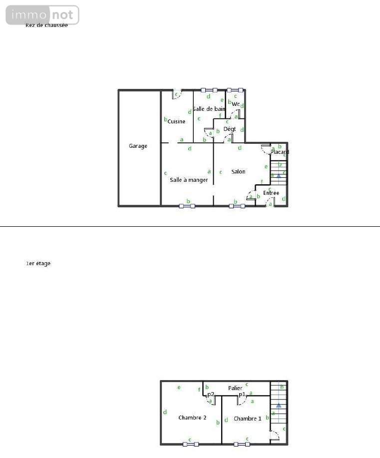
* une seconde maison, d'une superficie habitable d'environ 114,18 m², se composant :
- rez-de-chaussée : entrée sur couloir (7,43 m²), séjour (20,59 m²), espace repas donnant sur cuisine (16,5 m²), dégagement (6,3 m²) donnant sur salle de bain (3,92 m²) et WC (1,31 m²) ;
- 1er étage : palier (6,81 m²) desservant 2 chambres (18,7 m² passante et 16,27 m²) ;
- 2ème étage (mansardé) : 1 chambre (16,35 m²) et grenier ;
- cave ;
- extérieur : pas de garage, petite cour fermée (pas de jardin).
Cette maison était précédemment louée 600 € / mois.
Informations relatives au diagnostic de performance énergétique : Consommations énergétiques (CE) Classe E indice 258 kWhEP/m²/an et émissions de gaz à effet de serre (GES) Classe E indice 52 kgéqCO2/m²/an. Logement à consommations énergétiques excessives.
Concernant les maisons, elles sont actuellement :
- chauffée au gaz de ville (chaudières indépendantes pour chaque maison) ;
- équipée de menuiseries en PVC double vitrage + volets ;
- raccordée ensemble à une fosse septique commune.
Loyers bruts annuels potentiels perçus : 13.800 €.
Taxe foncière 2024 : 1.661 €.
Les informations sur les risques auxquels ce bien est exposé sont disponibles sur le site Géorisques : www.georisques.gouv.fr
Prix de vente : 189.900 € (honoraire de négociation à la charge du vendeur), provision sur frais d'acte de vente : 15.900 €.
Secteur MARQUION, BARALLE, BUISSY, BOURLON, CAGNICOURT, LAGNICOURT, BAPAUME, BULLECOURT, DURY, VIS-EN-ARTOIS, CROISILLES, ECOUST-SAINT-MEIN, PRONVILLE, INCHY-EN-ARTOIS, MOEUVRES, LAGNICOURT, MORCHIES, VAULX-VRAUCOURT, CHERISY, DOIGNIES, HERMIES, BERTINCOURT, SAUDEMONT, RUMAUCOURT, ECOURT-SAINT-QUENTIN, MORY, ARRAS, CAMBRAI, GOUZEAUCOURT, HAVRINCOURT, ARLEUX, GOEULZIN, PALLUEL, ARRAS, DOUAI, CAMBRAI, FONTAINE-NOTRE-DAME, HERMIES..... E-Valley, Canal de la Sensée, marais, Canal Seine-Nord, proximité autoroutes A 1 / A 26 / A 2, ...

Diagnostics (Réalisé le 27/02/2025 et présenté selon la référence en vigueur de 2021)

Consommation énergétique (dont Émissions de gaz à effet de serre)

A
B
C
D
E
258
F
G
Économe
Énergivore
Tableau de diagnostic de la performance énergétique des logements
Consommations énergétiques
Consommations énergétiques (en énergie primaire) pour le chauffage, la production d'eau chaude sanitaire et le refroidissement Indice de mesure : kWhEP/m 2 .an
A
B
C
D
E
52
F
G
Faible émission
Forte émission
Tableau de diagnostic de la performance énergétique des logements
Émissions de gaz à effet de serre
Émissions de gaz à effet de serre (GES) pour le chauffage, la production d'eau chaude sanitaire et le refroidissement Indice de mesure : kgeqCO2/m 2 .an

Estimation annuelle des coûts d'énergie du logement

Montant estimé des dépenses annuelle des coûts d'énergie du logement.

Entre 2600 € et 3590 € par an

Prix moyen des énergies indexées sur l'année de référence (abonnements compris)

État des risques

Les informations sur les risques auxquels ce bien est exposé sont disponibles sur le site Géorisques : www.georisques.gouv.fr

Contacter l'office notarial
SCP CORBISÉ et FRANCOIS

40 route Nationale
62860 MARQUION

Tous les biens de l'office notarial

Formulaire de contact

Nous vous informons de l'existence de la liste d'opposition au démarchage téléphonique BLOCTEL sur laquelle vous pouvez vous inscrire bloctel.gouv.fr.

Confidentialité et conformité au RGPD.
Vos données personnelles sont traitées par Notariat Services en tant que responsable de traitement afin de répondre à votre demande de mise en relation avec SCP David CORBISÉ et Philippe FRANCOIS. Les grandes lignes concernant la responsabilité liée à ce traitement effectué par Notariat Services sont disponibles ici. Vos données sont conservées pendant 36 mois et sont destinées à la mise en relation avec SCP David CORBISÉ et Philippe FRANCOIS. Conformément à la loi "informatique et libertés" et au RGPD, vous pouvez exercer vos droits d'opposition, d'accès, de rectification, d'effacement, de limitation et de portabilité en adressant un email à l'adresse suivante : [email protected]. Vous pouvez également adresser une réclamation auprés de la CNIL directement via son site internet www.cnil.fr.

Les champs obligatoires sont marqués *.

Contacter l'office notarial
SCP CORBISÉ et FRANCOIS

40 route Nationale
62860 MARQUION

Tous les biens de l'office notarial
SIRET:
784 040 859 00018
TVA Intra-communautaire:
FR47 784 040 859
/>