Immonot, l'immobilier des notaires
Achat - Maison
Lécluse (59259)
100 000 €
(Honoraires de négociation à la charge du vendeur)
Numéro principal :
03.21.73.03.22
Envoyer un email
Numéro principal :
03.21.73.03.22
Email

Achat Maison Lécluse (59259) 5 pièces 86 m2


Retour
100 000 €
(Honoraires de négociation à la charge du vendeur)
Tous les biens de l'office
100 000 €
(Honoraires de négociation à la charge du vendeur)
Barème des honoraires de négociation

Financer ce bien Assurer
Déménagement Améliorer son habitat
Caractéristiques
Surface habitable
86  m2
Surface terrain
506  m2
Pièces
5
Chambres
2
Chauffage
Gaz de ville
Garage
Oui
Référence
62017-3196

Maison à vendre à Lécluse dans le Nord (59259), ref : 62017-3196

+ Uniquement à l'Etude +
Maison de type longère individuelle à rénover à vendre à LECLUSE (59259 Nord).
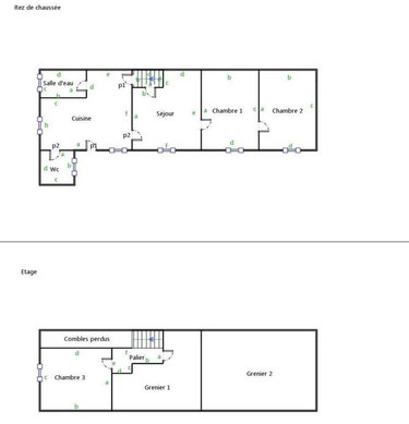
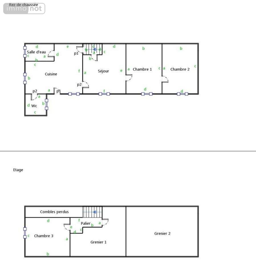
La maison se compose sur environ 86 m² habitables comme suit :
- rez-de-chaussée :
* entrée sur cuisine (18,2 m²) ;
* salle d'eau (3,2 m²) ;
* WC (1,3 m²) ;
* salle à manger (18 m²) ;
* salon (16,5 m²) ;
* chambre (18,3 m²) ;
- 1er étage (mansardés, surfaces loi Carrez) :
* palier (2 m²) ;
* 1 chambre (7 m²) ;
* grenier double (32 m²) ;
- cave.
La maison est actuellement :
- équipée de menuiseries bois (simple et vitrage) + PVC double vitrage ;
- équipée d'un chauffage central au gaz de ville (chaudière de 2022, Viessmann, entretenue) ;
- raccordée au tout à l'égout.
Extérieurement, le bien dispose également :
- d'un portail à rue ;
- d'un jardin clos ;
- d'anciennes petites dépendances.
Le tout sur et avec 506 m² de terrain.
Informations relatives au diagnostic de performance énergétique : Consommations énergétiques (CE) Classe G indice 595 kWhEP/m²/an et émissions de gaz à effet de serre (GES) Classe F indice 82 kgéqCO2/m²/an. Logement à consommations énergétiques excessives.
Les informations sur les risques auxquels ce bien est exposé sont disponibles sur le site Géorisques : www.georisques.gouv.fr
Prix de vente : 100.000 € (honoraire de négociation à la charge du vendeur), provision sur frais d'acte de vente : 9.300 €.

Secteur MARQUION, BARALLE, BUISSY, BOURLON, OISY-LE-VERGER, PALLUEL, ARLEUX, BRUNEMONT, AUBIGNY-AU-BAC, GOEULZIN, FERIN, CORBEHEM, BREBIERES, BUGNICOURT, FRESSAIN, FECHAIN, HAMEL, LECLUSE, RECOURT, ETAING, VITRY-EN-ARTOIS, TORTEQUESNE, SAILLY-EN-OSTREVENT, GOUY-SOUS-BELLONNE, BELLONNE, CAGNICOURT, LAGNICOURT, BAPAUME, BULLECOURT, DURY, VIS-EN-ARTOIS, CROISILLES, WANCOURT, ECOUST-SAINT-MEIN, PRONVILLE, INCHY-EN-ARTOIS, MOEUVRES, LAGNICOURT, MORCHIES, VAULX-VRAUCOURT, CHERISY, DOIGNIES, HERMIES, BERTINCOURT, SAUDEMONT, RUMAUCOURT, ECOURT-SAINT-QUENTIN, MORY, ARRAS, CAMBRAI, GOUZEAUCOURT, HAVRINCOURT, BAPAUME..... E-VALLEY, Canal Seine-Nord Europe, Vallée de la Sensée... proximité autoroutes A 1 / A 23 / A 2, ...

Diagnostics (Réalisé le 06/10/2025 et présenté selon la référence en vigueur de 2021)

Consommation énergétique (dont Émissions de gaz à effet de serre)

A
B
C
D
E
F
G
595
Économe
Énergivore
Tableau de diagnostic de la performance énergétique des logements
Consommations énergétiques
Consommations énergétiques (en énergie primaire) pour le chauffage, la production d'eau chaude sanitaire et le refroidissement Indice de mesure : kWhEP/m 2 .an
A
B
C
D
E
F
82
G
Faible émission
Forte émission
Tableau de diagnostic de la performance énergétique des logements
Émissions de gaz à effet de serre
Émissions de gaz à effet de serre (GES) pour le chauffage, la production d'eau chaude sanitaire et le refroidissement Indice de mesure : kgeqCO2/m 2 .an

Logement à consommation énergétique excessive

Estimation annuelle des coûts d'énergie du logement

Montant estimé des dépenses annuelle des coûts d'énergie du logement.

Entre 3590 € et 4910 € par an

Prix moyen des énergies indexées sur l'année de référence (abonnements compris)

État des risques

Les informations sur les risques auxquels ce bien est exposé sont disponibles sur le site Géorisques : www.georisques.gouv.fr

Contacter l'office notarial
SCP CORBISÉ et FRANCOIS

40 route Nationale
62860 MARQUION

Tous les biens de l'office notarial

Formulaire de contact

Nous vous informons de l'existence de la liste d'opposition au démarchage téléphonique BLOCTEL sur laquelle vous pouvez vous inscrire bloctel.gouv.fr.

Confidentialité et conformité au RGPD.
Vos données personnelles sont traitées par Notariat Services en tant que responsable de traitement afin de répondre à votre demande de mise en relation avec SCP David CORBISÉ et Philippe FRANCOIS. Les grandes lignes concernant la responsabilité liée à ce traitement effectué par Notariat Services sont disponibles ici. Vos données sont conservées pendant 36 mois et sont destinées à la mise en relation avec SCP David CORBISÉ et Philippe FRANCOIS. Conformément à la loi "informatique et libertés" et au RGPD, vous pouvez exercer vos droits d'opposition, d'accès, de rectification, d'effacement, de limitation et de portabilité en adressant un email à l'adresse suivante : [email protected]. Vous pouvez également adresser une réclamation auprés de la CNIL directement via son site internet www.cnil.fr.

Les champs obligatoires sont marqués *.

Contacter l'office notarial
SCP CORBISÉ et FRANCOIS

40 route Nationale
62860 MARQUION

Tous les biens de l'office notarial
SIRET:
784 040 859 00018
TVA Intra-communautaire:
FR47 784 040 859
/>