Immonot, l'immobilier des notaires
Achat - Maison
Val-au-Perche (61260)  (Le Theil)
179 350 €
170 000 € + Honoraires de négociation TTC : 9 350 €
Soit 5,5% à la charge de l'acquéreur
Numéro principal :
06 08 73 83 52
Envoyer un email
Numéro principal :
06 08 73 83 52
Email

Achat Maison Val-au-Perche (61260)  (Le Theil) 6 pièces 198 m2


Retour
179 350 €
170 000 € + Honoraires de négociation TTC : 9 350 €
Soit 5,5% à la charge de l'acquéreur
Tous les biens de l'office
179 350 €
170 000 € + Honoraires de négociation TTC : 9 350 €
Soit 5,5% à la charge de l'acquéreur
Barème des honoraires de négociation

Financer ce bien Assurance Emprunteur
Déménagement Améliorer son habitat
Caractéristiques
Surface habitable
198  m2
Surface terrain
1 086 m2
Pièces
6
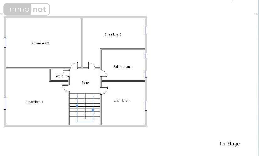
Chambres
4
Chauffage
Gaz, Gaz de ville
Niveau
Semi-plain-pied
Etat général
Bon
Année de construction
1950
Nombre d'étage(s)
2
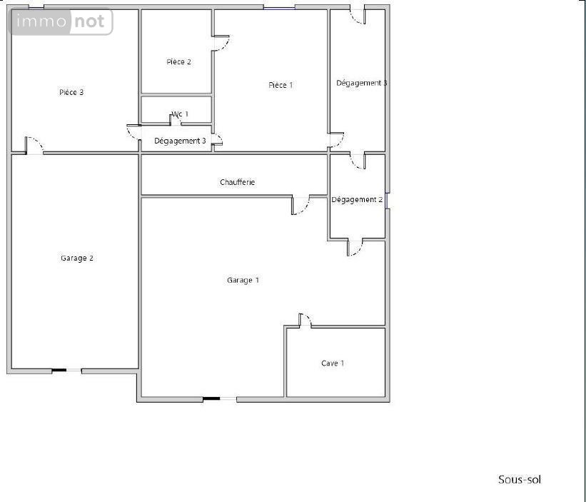
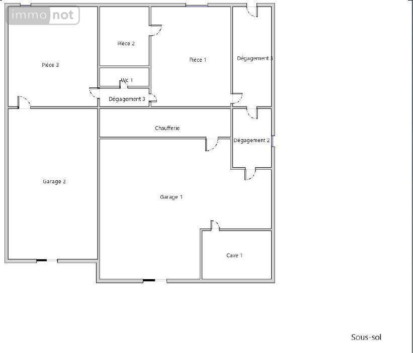
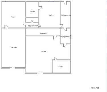
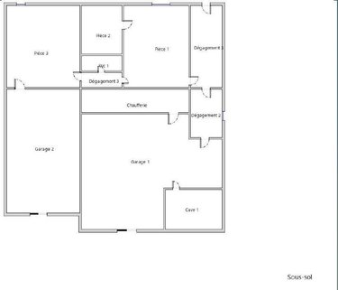
Sous Sol
Oui
Cave
Oui
Terrasse
Oui
Garage
Oui
Garage(s)
2
Référence
61068-22
Les +
Centre Ville
Gare
Commerces

Maison à vendre à Val-au-Perche dans l'Orne (61260), ref : 61068-22

Située dans un cadre calme et verdoyant, cette maison familiale avec jardin offre de beaux volumes lumineux et un fort potentiel d'aménagement, idéale pour un projet de résidence principale ou une famille souhaitant personnaliser son futur chez-soi.
?? Localisation stratégique
À 10 min de La Ferté-Bernard, 15 min de Nogent-le-Rotrou et 18 min de Bellême
Gare SNCF, écoles et commerces à proximité
Accès rapide à l'autoroute A11 (10 km)
? Les points forts du bien
198 m² habitables sur 3 niveaux
4 chambres + 2 pièces à aménager au 2? étage
Terrain clos et arboré de 1 086 m², parfait pour profiter du jardin ou installer une terrasse
2 garages + stationnement extérieur
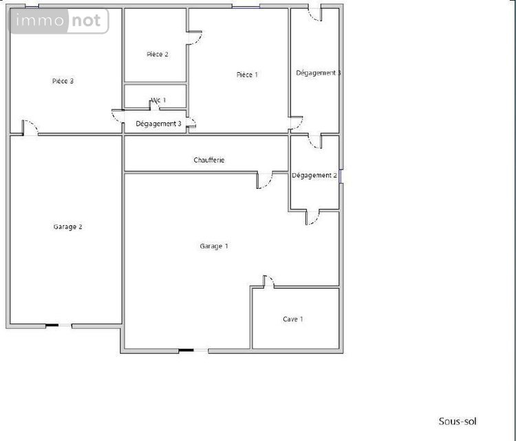
Sous-sol total pour rangement et loisirs
Chauffage gaz de ville, menuiseries PVC double vitrage avec volets roulants électriques
Tout à l'égout
??? Agencement pratique et modulable
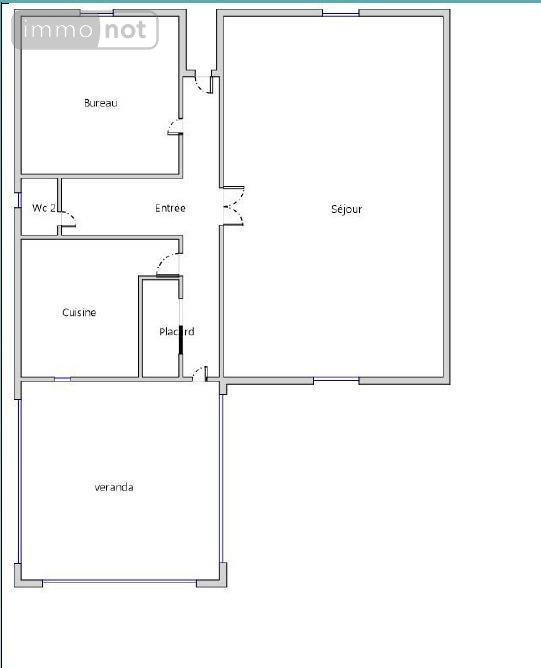
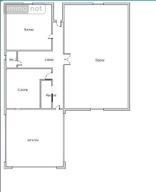
Rez-de-chaussée :
Entrée accueillante
Salon / séjour lumineux de 35 m² avec accès terrasse et jardin
Cuisine aménagée et équipée
Bureau ou chambre en rez-de-chaussée
Véranda
WC indépendant
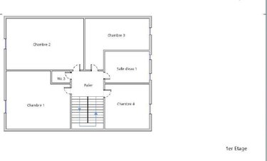
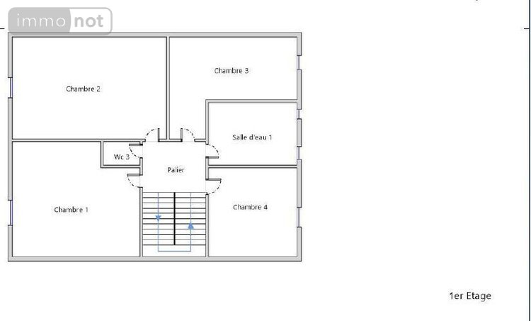
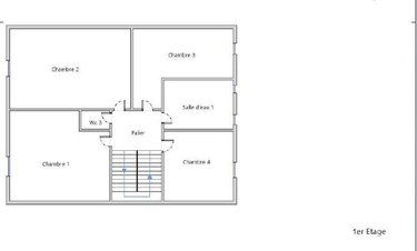
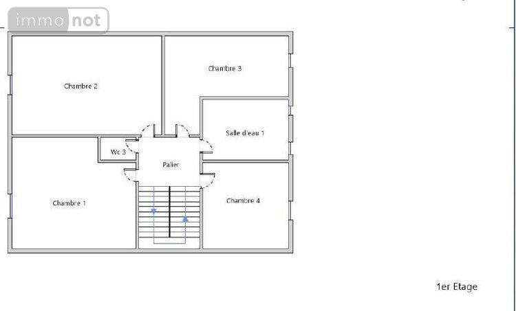
1er étage :
Palier desservant 4 chambres (dont une avec lavabo et dressing)
Salle d'eau avec WC
2e étage (à rafraîchir) :
2 pièces mansardées + salle de douche
Potentiel d'aménagement pour chambres supplémentaires, bureau ou espace loisirs
? Adaptée pour des retraités grâce à un agencement pratique et confortable.
Une maison spacieuse, lumineuse et pleine de potentiel, dans un village calme avec toutes les commodités à portée de main.
Idéale pour une famille ou un projet de résidence principale personnalisable.
?? Contactez nous dès maintenant pour organiser une visite et découvrir tout le potentiel de ce bien !

Diagnostics (Réalisé le 17/07/2025 et présenté selon la référence en vigueur de 2021)

Consommation énergétique (dont Émissions de gaz à effet de serre)

A
B
C
D
E
328
F
G
Économe
Énergivore
Tableau de diagnostic de la performance énergétique des logements
Consommations énergétiques
Consommations énergétiques (en énergie primaire) pour le chauffage, la production d'eau chaude sanitaire et le refroidissement Indice de mesure : kWhEP/m 2 .an
A
B
C
D
E
66
F
G
Faible émission
Forte émission
Tableau de diagnostic de la performance énergétique des logements
Émissions de gaz à effet de serre
Émissions de gaz à effet de serre (GES) pour le chauffage, la production d'eau chaude sanitaire et le refroidissement Indice de mesure : kgeqCO2/m 2 .an

Estimation annuelle des coûts d'énergie du logement

Montant estimé des dépenses annuelle des coûts d'énergie du logement.

Entre 5850 € et 7950 € par an

Prix moyen des énergies indexées sur l'année de référence (abonnements compris)

État des risques

Les informations sur les risques auxquels ce bien est exposé sont disponibles sur le site Géorisques : www.georisques.gouv.fr

Contacter l'office notarial
SELARL STEPHANIE JERPHANION - PIERRE-YVES MARIN

36 place de la Liberté
61130 BELLEME

Tous les biens de l'office notarial

Formulaire de contact

Nous vous informons de l'existence de la liste d'opposition au démarchage téléphonique BLOCTEL sur laquelle vous pouvez vous inscrire bloctel.gouv.fr.

Confidentialité et conformité au RGPD.
Vos données personnelles sont traitées par Notariat Services en tant que responsable de traitement afin de répondre à votre demande de mise en relation avec SELARL STEPHANIE JERPHANION - PIERRE-YVES MARIN. Les grandes lignes concernant la responsabilité liée à ce traitement effectué par Notariat Services sont disponibles ici. Vos données sont conservées pendant 36 mois et sont destinées à la mise en relation avec SELARL STEPHANIE JERPHANION - PIERRE-YVES MARIN. Conformément à la loi "informatique et libertés" et au RGPD, vous pouvez exercer vos droits d'opposition, d'accès, de rectification, d'effacement, de limitation et de portabilité en adressant un email à l'adresse suivante : [email protected]. Vous pouvez également adresser une réclamation auprés de la CNIL directement via son site internet www.cnil.fr.

Les champs obligatoires sont marqués *.
SIRET:
839 794 922 00014
TVA Intra-communautaire:
FR92 839 794 922
/>