Immonot, l'immobilier des notaires
Achat - Maison
Martigné-Ferchaud (35640)
46 000 €
40 000 € + Honoraires de négociation TTC : 6 000 €
Soit 15,0% à la charge de l'acquéreur
Numéro principal :
07 82 26 63 53
Envoyer un email
Numéro principal :
07 82 26 63 53
Email

Achat Maison Martigné-Ferchaud (35640)  Corps de ferme 3 pièces 53 m2


Retour
46 000 €
40 000 € + Honoraires de négociation TTC : 6 000 €
Soit 15,0% à la charge de l'acquéreur
Tous les biens de l'office
46 000 €
40 000 € + Honoraires de négociation TTC : 6 000 €
Soit 15,0% à la charge de l'acquéreur
Barème des honoraires de négociation

Financer ce bien Assurer
Déménagement Améliorer son Habitat
Caractéristiques
Surface habitable
53,16  m2
Surface terrain
1 370  m2
Pièces
3
Chambres
2
Chauffage
Electricite, bois
Taxe foncière
135.0
Année de construction
1948
Référence
Cheuvreux mf2-VI

Corps de ferme à vendre à Martigné-Ferchaud en Ille-et-Vilaine (35640), ref : Cheuvreux mf2-VI

Calme et arboré. - Exclusivité de l'Etude Notariale CHEUVREUX RENNES
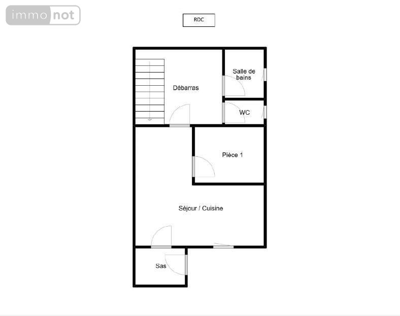
Cette maison de 53,16 m² en campagne avec un terrain de 1370 m² et une parcelle agricole attenante de 17 127 m² , se situe à 8 mn en voiture du bourg de MARTIGNE-FERCHAUD, à 25 mn en voiture de BAIN-DE-BRETAGNE et 15 mn en voiture de CHÂTEAUBRIANT. Elle comprend :
En rez-de-jardin :
- un séjour avec cuisine
- un cellier
- une chambre
- une salle de bains
- un wc séparé
Au premier étage
- une chambre
- deux greniers
Dépendances :
- un hangar de 220 m²
- un garage
- une parcelle agricole attenante de 17 127 m²
En extérieur :
- un jardin
- une cour
- un puit
Informations générales :
- année de construction : avant 1949
- taxe foncière : 135 euros
- la parcelle est de 1 370 m²
- autres surfaces : 57,45 m²
Informations techniques :
- chauffage électrique et bois
- eau chaude électrique
- fenêtres double vitrage
Informations pratiques :
- situé à 8 mn en voiture de la gare de MARTIGNE-FERCHAUD
- situé à 7 mn en voiture de commerces, d'écoles et d'infrastructures sportives
Les prix indiqués (net vendeur et honoraires d'agence inclus) ne comprennent pas les frais liés à l'acte notarié (droits d'enregistrement, frais de notaire, etc.)

Diagnostics (Réalisé le 20/01/2025 et présenté selon la référence en vigueur de 2021)

Consommation énergétique (dont Émissions de gaz à effet de serre)

A
B
C
D
E
F
G
472
Économe
Énergivore
Tableau de diagnostic de la performance énergétique des logements
Consommations énergétiques
Consommations énergétiques (en énergie primaire) pour le chauffage, la production d'eau chaude sanitaire et le refroidissement Indice de mesure : kWhEP/m 2 .an
A
B
C
14
D
E
F
G
Faible émission
Forte émission
Tableau de diagnostic de la performance énergétique des logements
Émissions de gaz à effet de serre
Émissions de gaz à effet de serre (GES) pour le chauffage, la production d'eau chaude sanitaire et le refroidissement Indice de mesure : kgeqCO2/m 2 .an

Logement à consommation énergétique excessive

Estimation annuelle des coûts d'énergie du logement

Montant estimé des dépenses annuelle des coûts d'énergie du logement.

Entre 1410 € et 1960 € par an

Prix moyen des énergies indexées sur l'année de référence (abonnements compris)

État des risques

Les informations sur les risques auxquels ce bien est exposé sont disponibles sur le site Géorisques : www.georisques.gouv.fr

Contacter l'office notarial
SAS CHEUVREUX RENNES

24 Boulevard de Beaumont
35000 RENNES

Tous les biens de l'office notarial
Votre contact : Steve PAUMIER

Formulaire de contact

Nous vous informons de l'existence de la liste d'opposition au démarchage téléphonique BLOCTEL sur laquelle vous pouvez vous inscrire bloctel.gouv.fr.

Confidentialité et conformité au RGPD.
Vos données personnelles sont traitées par Notariat Services en tant que responsable de traitement afin de répondre à votre demande de mise en relation avec SAS CHEUVREUX RENNES. Les grandes lignes concernant la responsabilité liée à ce traitement effectué par Notariat Services sont disponibles ici. Vos données sont conservées pendant 36 mois et sont destinées à la mise en relation avec SAS CHEUVREUX RENNES. Conformément à la loi "informatique et libertés" et au RGPD, vous pouvez exercer vos droits d'opposition, d'accès, de rectification, d'effacement, de limitation et de portabilité en adressant un email à l'adresse suivante : [email protected]. Vous pouvez également adresser une réclamation auprés de la CNIL directement via son site internet www.cnil.fr.

Les champs obligatoires sont marqués *.

Contacter l'office notarial
SAS CHEUVREUX RENNES

24 Boulevard de Beaumont
35000 RENNES

Tous les biens de l'office notarial
Votre contact : Steve PAUMIER
SIRET:
753 600 824 00043
TVA Intra-communautaire:
FR10 753 600 824
/>