Proche LAC DU DER - Idéal gîte ou famille nombreuse.
Maison de type longère en pan de bois, comprenant deux logements, composée de la manière suivante:
Entrée par un porte rue :
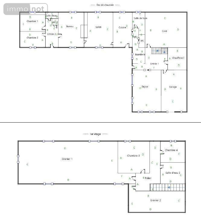
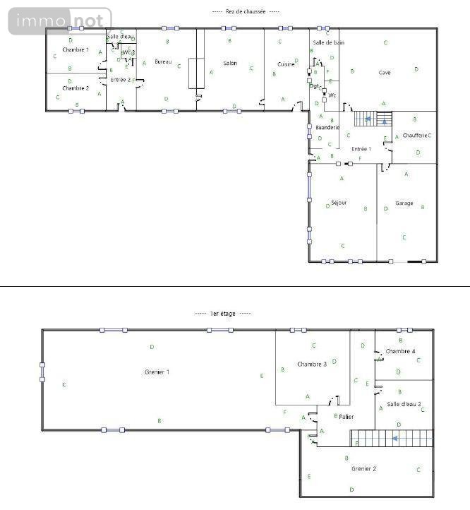
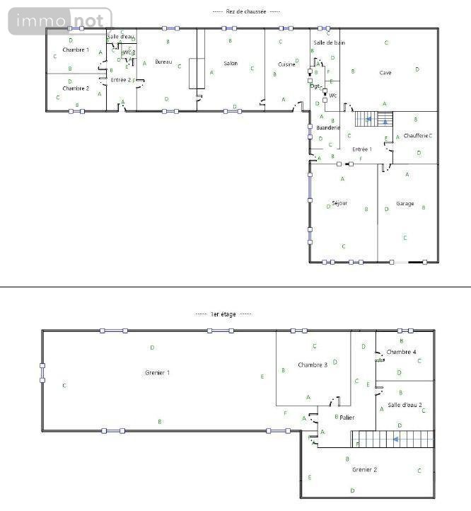
A gauche , le corps de logis principal (188 m2), habitable de plain-pied, comprend:
- Au RDC: Une entrée sur cour, un salon, une salle à manger, une cuisine aménagée et équipée, une salle de bains avec douche et baignoire, 2 chambres, une salle d'eau, 2 WC, un salon d'été, un garage,  chaufferie et cave.
- A l'étage: deux chambres, une salle d'eau et un grand grenier aménageable déjà isolée et les ouvertures créées.
DPE: F ( Chauffage fioul)
A droite du porche, une seconde habitation (61 m2) comprenant: 
- Au RDC: Entrée sur la pièce de vie avec coin cuisine ouvert et une salle d'eau.
- A l'étage: un dégagement, deux chambres et WC avec lave mains.
DPE : E (Chauffage électrique)
Chaque habitation comprend une terrasse et un petit terrain clôturé.
Un garage non attenant et une remise.
Derrière, un grand terrain clos et arboré.
Pas de vis à vis.	
										
	                        
Consommation énergétique (dont Émissions de gaz à effet de serre)
Logement à consommation énergétique excessive
Estimation annuelle des coûts d'énergie du logement
Montant estimé des dépenses annuelle des coûts d'énergie du logement.
Entre 6200 € et 8430 € par an
Prix moyen des énergies indexées sur l'année de référence (abonnements compris)
Les informations sur les risques auxquels ce bien est exposé sont disponibles sur le site Géorisques : www.georisques.gouv.fr
 
		Formulaire de contact
