Immonot, l'immobilier des notaires
Achat - Appartement
Blois (41000)
183 750 €
175 000 € + Honoraires de négociation TTC : 8 750 €
Soit 5,0% à la charge de l'acquéreur
Numéro principal :
02.38.98.66.78
Envoyer un email
Numéro principal :
02.38.98.66.78
Email

Achat Appartement Blois (41000) 5 pièces 124 m2


Retour
183 750 €
175 000 € + Honoraires de négociation TTC : 8 750 €
Soit 5,0% à la charge de l'acquéreur
Tous les biens de l'office
183 750 €
175 000 € + Honoraires de négociation TTC : 8 750 €
Soit 5,0% à la charge de l'acquéreur
Barème des honoraires de négociation

Financer ce bien Assurance emprunteur
Déménagement Améliorer son habitat
Caractéristiques
Surface habitable
124,28  m2
Surface terrain
2 142  m2
Pièces
5
Chambres
3
Chauffage
Électricité
Garage
Oui
Référence
45050-1288

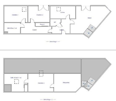
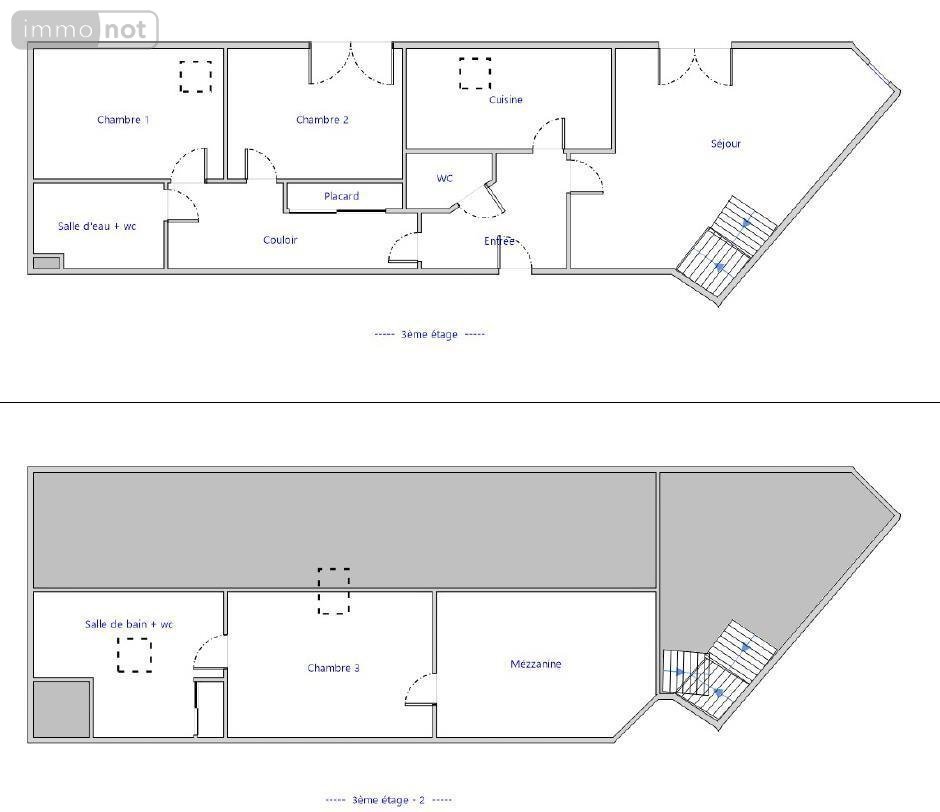
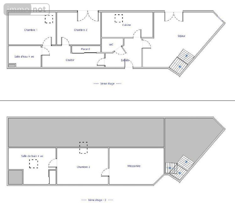
Appartement à vendre à Blois dans le Loir-et-Cher (41000), ref : 45050-1288

Situé en centre-ville de Blois, dans le quartier recherché de la Halle aux Grains, dans la résidence "Les Jardins de la Providence", un emplacement pratique à proximité des commerces, des services et des transports.
Caractéristiques du bien :
Surface habitable : 124,28 m² (dont 97,65 m² selon la surface Carrez). Un espace spacieux et bien agencé sur deux niveaux.
Situation : Ce bien se trouve au 3e et dernier étage, offrant une belle vue et une grande luminosité.
Agencement :
Rez-de-chaussée :
Entrée avec placards intégrés pour le rangement
Couloir
Cuisine aménagée, prête à l'usage
Séjour cathédrale, offrant un volume impressionnant et une belle hauteur sous plafond
Deux chambres
Salle d'eau avec WC
Mezzanine :
Chambre supplémentaire
Salle de bains avec WC intégré
Dépendances :
Box de stationnement de 21,80 m², permettant un stationnement sécurisé
Cave de 3,23 m², pour le stockage supplémentaire
Performance énergétique :
DPE : D / A, indiquant une performance énergétique assez bonne avec des faibles émissions de gaz à effet de serre.
Note : Ce bien est soumis au statut de la copropriété, avec des charges communes à prévoir.
Ce duplex T5 est idéal pour ceux qui cherchent un grand espace de vie, avec des volumes intéressants et un emplacement central à Blois.
La copropriété comprend 30 lots, partie de bâtiment comportant obligatoirement une partie privative et une quote-part de parties communes dans l'immeuble
Le montant des charges annuelles est de 2 704 €.
Pas de procédure en cours dans la copropriété.
Les informations sur les risques auxquels ce bien est exposé sont disponibles sur le site Géorisques : www. georisques. gouv. fr

Bien en copropriété
Bien soumis à copropriété
Oui
Nbre de lots de la copropriété
30
Montant des charges prévisionnelles annuelles moyen
2705.0 €
Diagnostics (Réalisé le 18/06/2024 et présenté selon la référence en vigueur de 2021)

Consommation énergétique (dont Émissions de gaz à effet de serre)

A
B
C
185
D
E
F
G
Économe
Énergivore
Tableau de diagnostic de la performance énergétique des logements
Consommations énergétiques
Consommations énergétiques (en énergie primaire) pour le chauffage, la production d'eau chaude sanitaire et le refroidissement Indice de mesure : kWhEP/m 2 .an
A
5
B
C
D
E
F
G
Faible émission
Forte émission
Tableau de diagnostic de la performance énergétique des logements
Émissions de gaz à effet de serre
Émissions de gaz à effet de serre (GES) pour le chauffage, la production d'eau chaude sanitaire et le refroidissement Indice de mesure : kgeqCO2/m 2 .an

Estimation annuelle des coûts d'énergie du logement

Montant estimé des dépenses annuelle des coûts d'énergie du logement.

Entre 1210 € et 1690 € par an

Prix moyen des énergies indexées sur l'année de référence (abonnements compris)

État des risques

Les informations sur les risques auxquels ce bien est exposé sont disponibles sur le site Géorisques : www.georisques.gouv.fr

Contacter l'office notarial
SCP L. BUCHETON et J-H. DESAULTY

202 rue Emile Mengin BP 20
45205 MONTARGIS CEDEX

Tous les biens de l'office notarial

Formulaire de contact

Nous vous informons de l'existence de la liste d'opposition au démarchage téléphonique BLOCTEL sur laquelle vous pouvez vous inscrire bloctel.gouv.fr.

Confidentialité et conformité au RGPD.
Vos données personnelles sont traitées par Notariat Services en tant que responsable de traitement afin de répondre à votre demande de mise en relation avec SCP Luc BUCHETON et Jean-Henry DESAULTY. Les grandes lignes concernant la responsabilité liée à ce traitement effectué par Notariat Services sont disponibles ici. Vos données sont conservées pendant 36 mois et sont destinées à la mise en relation avec SCP Luc BUCHETON et Jean-Henry DESAULTY. Conformément à la loi "informatique et libertés" et au RGPD, vous pouvez exercer vos droits d'opposition, d'accès, de rectification, d'effacement, de limitation et de portabilité en adressant un email à l'adresse suivante : [email protected]. Vous pouvez également adresser une réclamation auprés de la CNIL directement via son site internet www.cnil.fr.

Les champs obligatoires sont marqués *.

Contacter l'office notarial
SCP L. BUCHETON et J-H. DESAULTY

202 rue Emile Mengin BP 20
45205 MONTARGIS CEDEX

Tous les biens de l'office notarial
SIRET:
775 485 816 00034
TVA Intra-communautaire:
FR51 775 485 816
/>