Immonot, l'immobilier des notaires
Achat - Maison
Montargis (45200)
179 800 €
(Honoraires de négociation à la charge du vendeur)
Numéro principal :
06.58.59.11.72
Envoyer un email
Numéro principal :
06.58.59.11.72
Email

Achat Maison Montargis (45200) 4 pièces 83 m2


Retour
179 800 €
(Honoraires de négociation à la charge du vendeur)
Tous les biens de l'office
179 800 €
(Honoraires de négociation à la charge du vendeur)
Barème des honoraires de négociation

Financer ce bien Assurance Emprunteur
Déménagement Améliorer son habitat
Caractéristiques
Surface habitable
83  m2
Surface terrain
291 m
Pièces
4
Chambres
2
Chauffage
Gaz de ville, Chaudière à condensation
Référence
45051-477

Maison à vendre à Montargis dans le Loiret (45200), ref : 45051-477

MONTARGIS Centre-ville, proche de toutes les commodités à pieds,
Venez découvrir cette meulière de 83 m², mitoyenne d'un côté, élevée sur cave, chaufferie/buanderie, atelier, et comprenant :
- Au rez-de-chaussée : hall d'entrée (9 m²), séjour (26.3 m²), cuisine aménagée et équipée (7.45 m), W.C.
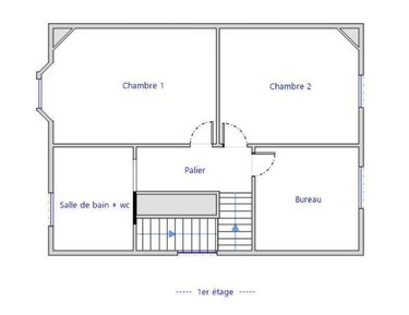
- A l'étage : palier desservant 2 chambres (13 m² et 13 m²), bureau ou chambre d'enfant (7.7 m²), salle de bains avec W.C (4.43 m²).
Prestations : double vitrage PVC et porte en alu (2014), volets métalliques, chauffage central gaz de ville (chaudière à condensation 2016), fibre optique, tout à l'égout, adoucisseur d'eau, tableau et installation électrique récente.
Aucuns travaux à prévoir.
Jardin clos de 291 m².

Diagnostics (Réalisé le 03/02/2026 et présenté selon la référence en vigueur de 2021)

Consommation énergétique (dont Émissions de gaz à effet de serre)

A
B
C
D
E
242
F
G
Économe
Énergivore
Tableau de diagnostic de la performance énergétique des logements
Consommations énergétiques
Consommations énergétiques (en énergie primaire) pour le chauffage, la production d'eau chaude sanitaire et le refroidissement Indice de mesure : kWhEP/m 2 .an
A
B
C
D
E
53
F
G
Faible émission
Forte émission
Tableau de diagnostic de la performance énergétique des logements
Émissions de gaz à effet de serre
Émissions de gaz à effet de serre (GES) pour le chauffage, la production d'eau chaude sanitaire et le refroidissement Indice de mesure : kgeqCO2/m 2 .an

Estimation annuelle des coûts d'énergie du logement

Montant estimé des dépenses annuelle des coûts d'énergie du logement.

Entre 1810 € et 2500 € par an

Prix moyen des énergies indexées sur l'année de référence (abonnements compris)

État des risques

Les informations sur les risques auxquels ce bien est exposé sont disponibles sur le site Géorisques : www.georisques.gouv.fr

Contacter l'office notarial
SARL EMMANUEL COLLET NOTAIRE

47 rue Gambetta BP 117
45201 MONTARGIS CEDEX

Tous les biens de l'office notarial

Formulaire de contact

Nous vous informons de l'existence de la liste d'opposition au démarchage téléphonique BLOCTEL sur laquelle vous pouvez vous inscrire bloctel.gouv.fr.

Confidentialité et conformité au RGPD.
Vos données personnelles sont traitées par Notariat Services en tant que responsable de traitement afin de répondre à votre demande de mise en relation avec SARL EMMANUEL COLLET NOTAIRE. Les grandes lignes concernant la responsabilité liée à ce traitement effectué par Notariat Services sont disponibles ici. Vos données sont conservées pendant 36 mois et sont destinées à la mise en relation avec SARL EMMANUEL COLLET NOTAIRE. Conformément à la loi "informatique et libertés" et au RGPD, vous pouvez exercer vos droits d'opposition, d'accès, de rectification, d'effacement, de limitation et de portabilité en adressant un email à l'adresse suivante : [email protected]. Vous pouvez également adresser une réclamation auprés de la CNIL directement via son site internet www.cnil.fr.

Les champs obligatoires sont marqués *.

Contacter l'office notarial
SARL EMMANUEL COLLET NOTAIRE

47 rue Gambetta BP 117
45201 MONTARGIS CEDEX

Tous les biens de l'office notarial
SIRET:
452 316 631 00020
TVA Intra-communautaire:
FR27 452 316 631
/>