Immonot, l'immobilier des notaires
Location - Appartement
Rennes (35000)
705 €/mois
Dépôt de garantie : 705 €
Numéro principal :
02.99.79.66.79
Envoyer un email
Numéro principal :
02.99.79.66.79
Email

Location Appartement Rennes (35000) 3 pièces 60 m2


Retour
705 €/mois
Dépôt de garantie : 705 €
Tous les biens de l'office
705 €/mois
Dépôt de garantie : 705 €
Barème des honoraires de négociation

Financer ce bien Assurer
Déménagement Améliorer son Habitat
Caractéristiques
Surface habitable
60,07  m2
Pièces
3
Chambres
2
Référence
1121

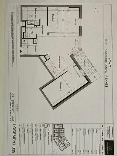
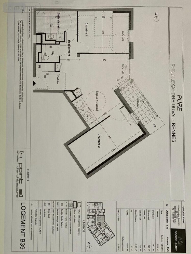
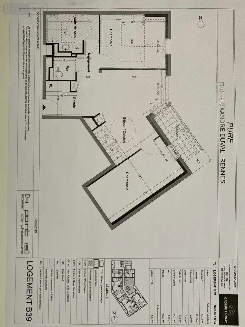
Appartement à louer à Rennes en Ille-et-Vilaine (35000), ref : 1121
Arsenal - Redon

SERVICE LOCATION Sophie NICOLAS au 02.99.79.66.79 ou à [email protected]
RENNES, ARSENAL REDON rue Alexandre Duval,
appartement très récent de type 3 de 60 m² situé au 3ème étage avec ascenseur, comprenant entrée avec placard, un WC séparé, une salle de bain, un séjour avec cuisine aménagée et équipée (hotte et plaques vitrocéramiques), deux chambres.
un parking P22 privatif en sous sol. Balcon de 4.87 m²
chauffage individuel par chaudière individuelle gaz.
Immeuble fibré.
Libre le 22 novembre 2025.
!! Conditions de ressources pour les locataires - LOI PINEL
Loyer : 705 ? - Charges : 47? comprenant l'entretien des parties communes - Dépôt de garantie : 705.00? - Honoraires locataires état des lieux inclus : 645 ?.

Diagnostics (Réalisé le 30/11/2022 et présenté selon la référence en vigueur de 2021)

Consommation énergétique (dont Émissions de gaz à effet de serre)

A
B
C
63
D
E
F
G
Économe
Énergivore
Tableau de diagnostic de la performance énergétique des logements
Consommations énergétiques
Consommations énergétiques (en énergie primaire) pour le chauffage, la production d'eau chaude sanitaire et le refroidissement Indice de mesure : kWhEP/m 2 .an
A
B
C
13
D
E
F
G
Faible émission
Forte émission
Tableau de diagnostic de la performance énergétique des logements
Émissions de gaz à effet de serre
Émissions de gaz à effet de serre (GES) pour le chauffage, la production d'eau chaude sanitaire et le refroidissement Indice de mesure : kgeqCO2/m 2 .an

Estimation annuelle des coûts d'énergie du logement

Montant estimé des dépenses annuelle des coûts d'énergie du logement.

Entre 377 € et 511 € par an

Prix moyen des énergies indexées sur l'année de référence (abonnements compris)

État des risques

Les informations sur les risques auxquels ce bien est exposé sont disponibles sur le site Géorisques : www.georisques.gouv.fr

Contacter l'office notarial
SAS OFFICE DU CARRÉ Notaires

4 rue du Champ Dolent
35012 RENNES CEDEX

Tous les biens de l'office notarial

Formulaire de contact

Nous vous informons de l'existence de la liste d'opposition au démarchage téléphonique BLOCTEL sur laquelle vous pouvez vous inscrire bloctel.gouv.fr.

Confidentialité et conformité au RGPD.
Vos données personnelles sont traitées par Notariat Services en tant que responsable de traitement afin de répondre à votre demande de mise en relation avec SAS OFFICE DU CARRÉ Notaires. Les grandes lignes concernant la responsabilité liée à ce traitement effectué par Notariat Services sont disponibles ici. Vos données sont conservées pendant 36 mois et sont destinées à la mise en relation avec SAS OFFICE DU CARRÉ Notaires. Conformément à la loi "informatique et libertés" et au RGPD, vous pouvez exercer vos droits d'opposition, d'accès, de rectification, d'effacement, de limitation et de portabilité en adressant un email à l'adresse suivante : [email protected]. Vous pouvez également adresser une réclamation auprés de la CNIL directement via son site internet www.cnil.fr.

Les champs obligatoires sont marqués *.

Contacter l'office notarial
SAS OFFICE DU CARRÉ Notaires

4 rue du Champ Dolent
35012 RENNES CEDEX

Tous les biens de l'office notarial
SIRET:
317 575 405 00020
TVA Intra-communautaire:
FR84 317 575 405
/>