Immonot, l'immobilier des notaires
Achat - Appartement
Noyal-sur-Vilaine (35530)
171 200 €
160 000 € + Honoraires de négociation TTC : 11 200 €
Soit 7,0% à la charge de l'acquéreur
Numéro principal :
06.08.96.18.79
Envoyer un email
Numéro principal :
06.08.96.18.79
Email

Achat Appartement Noyal-sur-Vilaine (35530) 2 pièces 48 m2


Retour
171 200 €
160 000 € + Honoraires de négociation TTC : 11 200 €
Soit 7,0% à la charge de l'acquéreur
Tous les biens de l'office
171 200 €
160 000 € + Honoraires de négociation TTC : 11 200 €
Soit 7,0% à la charge de l'acquéreur
Barème des honoraires de négociation

Financer ce bien Assurance emprunteur
Déménagement Améliorer son Habitat
Caractéristiques
Surface habitable
48,60  m2
Pièces
2
Chambres
1
Chauffage
Individuel, Individuel
Niveau
Plain-pied
Etat général
Excellent
Meuble
Non
Terrasse
Oui
Place(s) parking
1
Référence
091-537

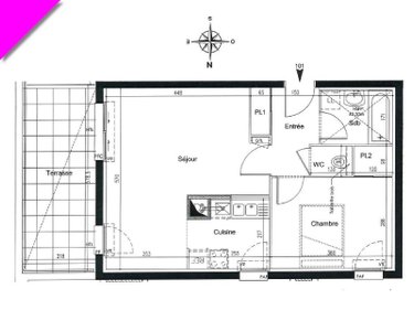
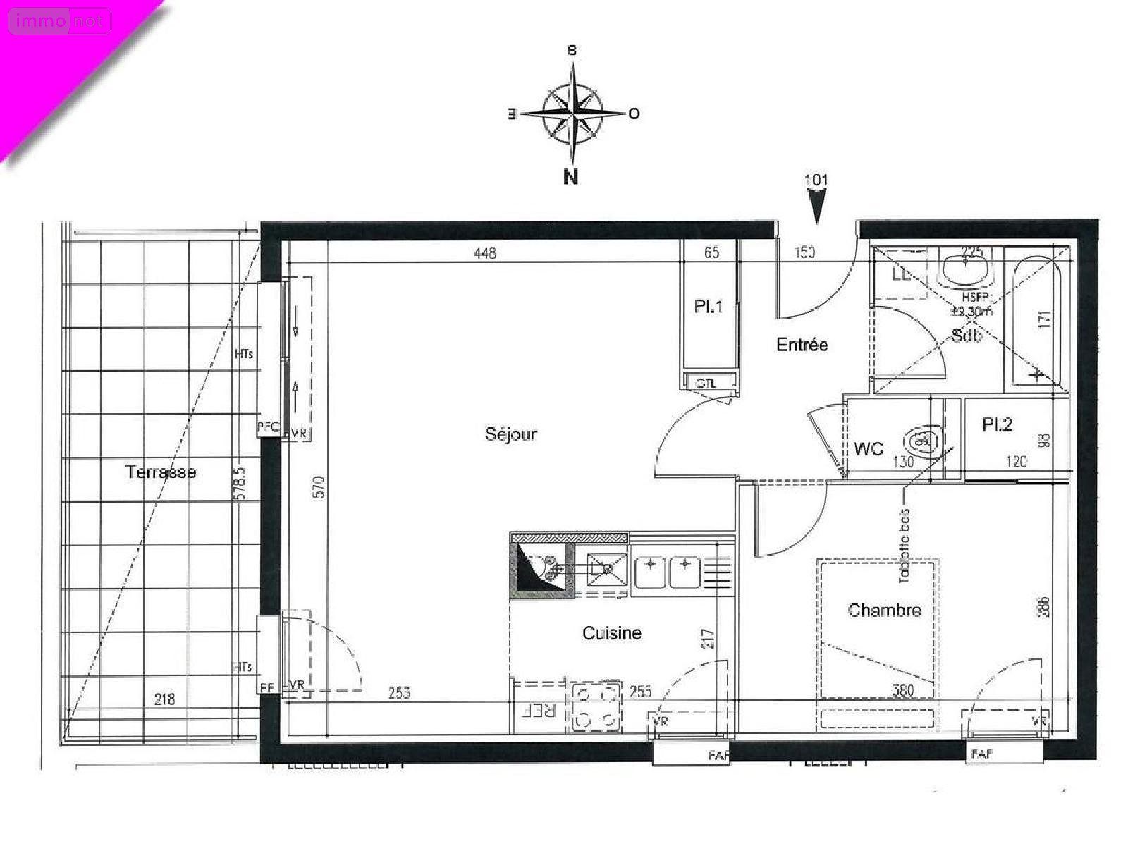
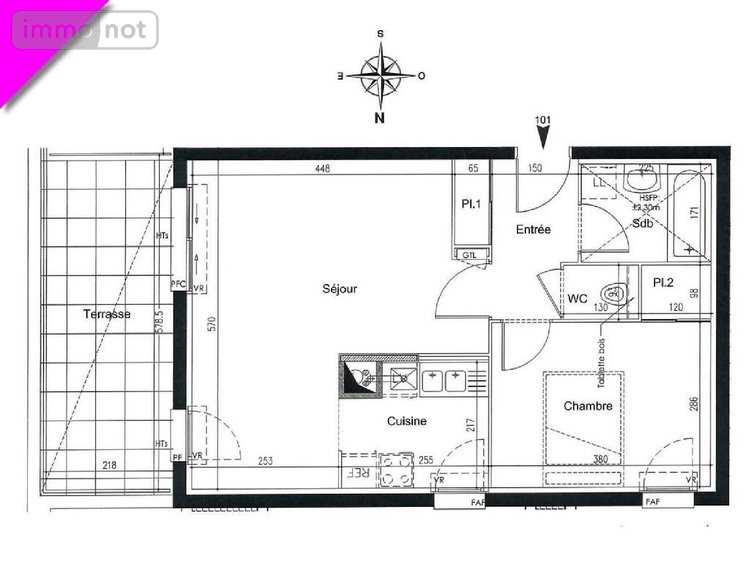
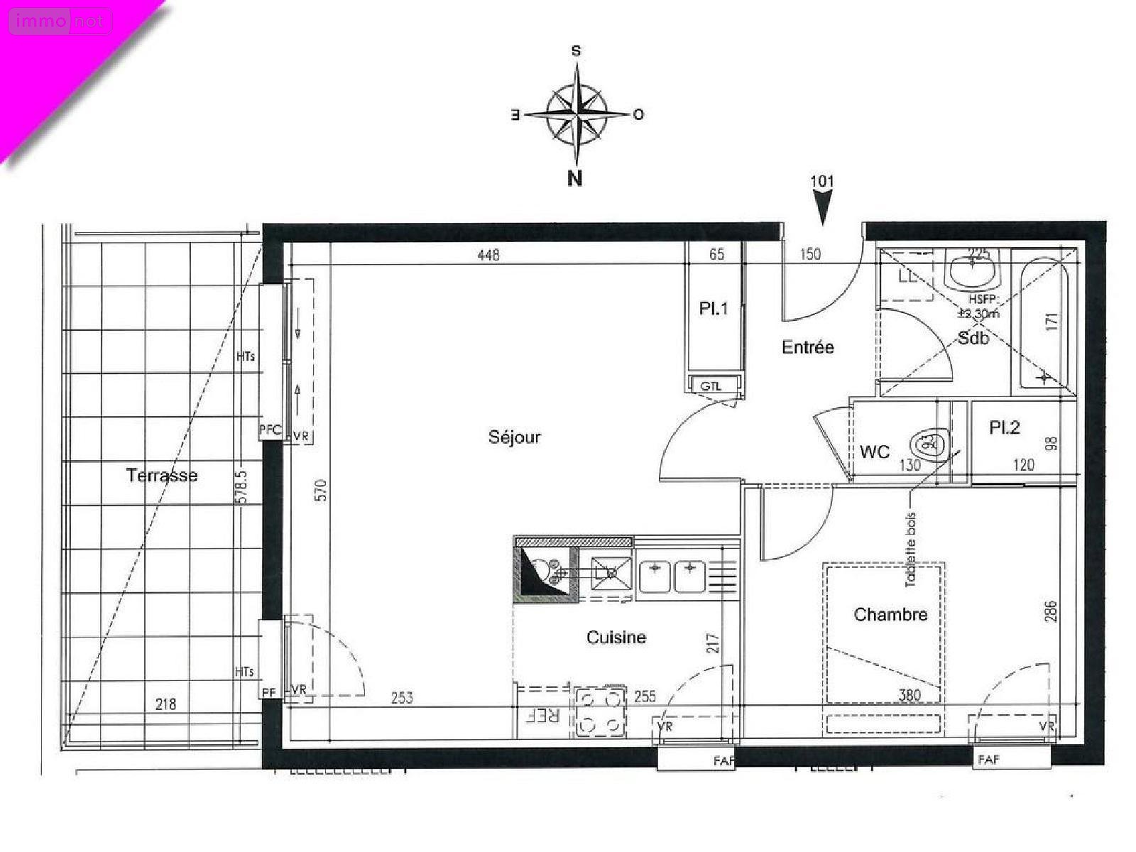
Appartement à vendre à Noyal-sur-Vilaine en Ille-et-Vilaine (35530), ref : 091-537
NOYAL SUR VILAINE

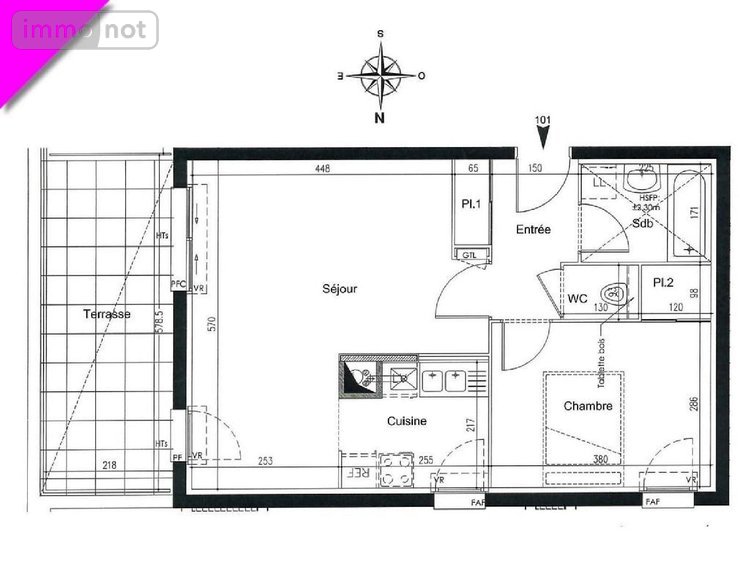
Appartement deux pièces situé au rez-de-chaussée comprenant :
Entrée, avec placard, séjour ouvrant sur une terrasse exposé à l'est, cuisine ouverte, chambre, salle d'eau et wc séparés.
Place de stationnement réservée et cave en sous-sol.

Diagnostics (Réalisé le 11/09/2025 et présenté selon la référence en vigueur de 2021)

Consommation énergétique (dont Émissions de gaz à effet de serre)

A
B
C
D
167
E
F
G
Économe
Énergivore
Tableau de diagnostic de la performance énergétique des logements
Consommations énergétiques
Consommations énergétiques (en énergie primaire) pour le chauffage, la production d'eau chaude sanitaire et le refroidissement Indice de mesure : kWhEP/m 2 .an
A
B
C
D
33
E
F
G
Faible émission
Forte émission
Tableau de diagnostic de la performance énergétique des logements
Émissions de gaz à effet de serre
Émissions de gaz à effet de serre (GES) pour le chauffage, la production d'eau chaude sanitaire et le refroidissement Indice de mesure : kgeqCO2/m 2 .an

Estimation annuelle des coûts d'énergie du logement

Montant estimé des dépenses annuelle des coûts d'énergie du logement.

Entre 850 € et 1200 € par an

Prix moyen des énergies indexées sur l'année de référence (abonnements compris)

État des risques

Les informations sur les risques auxquels ce bien est exposé sont disponibles sur le site Géorisques : www.georisques.gouv.fr

Contacter l'office notarial
ETUDE DU MAIL

13 impasse Gautier Père et Fils
35270 COMBOURG
Voir le site web
Tous les biens de l'office notarial
Votre contact : Skander FARZA

Formulaire de contact

Nous vous informons de l'existence de la liste d'opposition au démarchage téléphonique BLOCTEL sur laquelle vous pouvez vous inscrire bloctel.gouv.fr.

Confidentialité et conformité au RGPD.
Vos données personnelles sont traitées par Notariat Services en tant que responsable de traitement afin de répondre à votre demande de mise en relation avec ETUDE DU MAIL. Les grandes lignes concernant la responsabilité liée à ce traitement effectué par Notariat Services sont disponibles ici. Vos données sont conservées pendant 36 mois et sont destinées à la mise en relation avec ETUDE DU MAIL. Conformément à la loi "informatique et libertés" et au RGPD, vous pouvez exercer vos droits d'opposition, d'accès, de rectification, d'effacement, de limitation et de portabilité en adressant un email à l'adresse suivante : [email protected]. Vous pouvez également adresser une réclamation auprés de la CNIL directement via son site internet www.cnil.fr.

Les champs obligatoires sont marqués *.

Contacter l'office notarial
ETUDE DU MAIL

13 impasse Gautier Père et Fils
35270 COMBOURG
Voir le site web
Tous les biens de l'office notarial
Votre contact : Skander FARZA
SIRET:
348 770 116 00013
TVA Intra-communautaire:
FR72 348 770 116
/>