Immonot, l'immobilier des notaires
Achat - Appartement
Bordeaux (33000)
449 000 €
427 620 € + Honoraires de négociation TTC : 21 380 €
Soit 5,0% à la charge de l'acquéreur
Numéro principal :
06 83 74 26 78
Envoyer un email
Numéro principal :
06 83 74 26 78
Email

Achat Appartement Bordeaux (33000) 5 pièces 145 m2


Retour
449 000 €
427 620 € + Honoraires de négociation TTC : 21 380 €
Soit 5,0% à la charge de l'acquéreur
Tous les biens de l'office
449 000 €
427 620 € + Honoraires de négociation TTC : 21 380 €
Soit 5,0% à la charge de l'acquéreur
Barème des honoraires de négociation

Financer ce bien Assurance emprunteur
Déménagement Améliorer son habitat
Caractéristiques
Surface habitable
145,34  m2
Pièces
5
Chambres
4
Chauffage
Gaz
Taxe foncière
3148.0
Année de construction
1975
Nombre d'étage(s)
12
Piscine
Oui
Place(s) parking
1
Référence
33010/108
Les +
Centre Ville
Bus
Commerces
Ecole

Appartement à vendre à Bordeaux en Gironde (33000), ref : 33010/108
Croix Blanche

BORDEAUX (GIRONDE-33000): EXCLUSIVITE -CROIX BLANCHE - APPARTEMENT AVEC CELLIER INDIVIDUEL PRIVATIF ET PLACE DE PARKING .
Situé au 9 eme étage d'un résidence avec piscine au 13 eme étage, cet appartement est le fruit de la réunion de 3 lots distincts.
Il est modulable selon vos besoins et offre plusieurs possibilités d'exploitation .
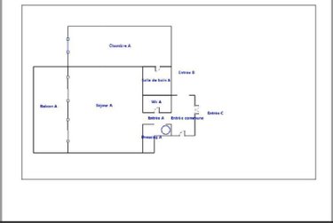
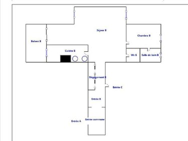
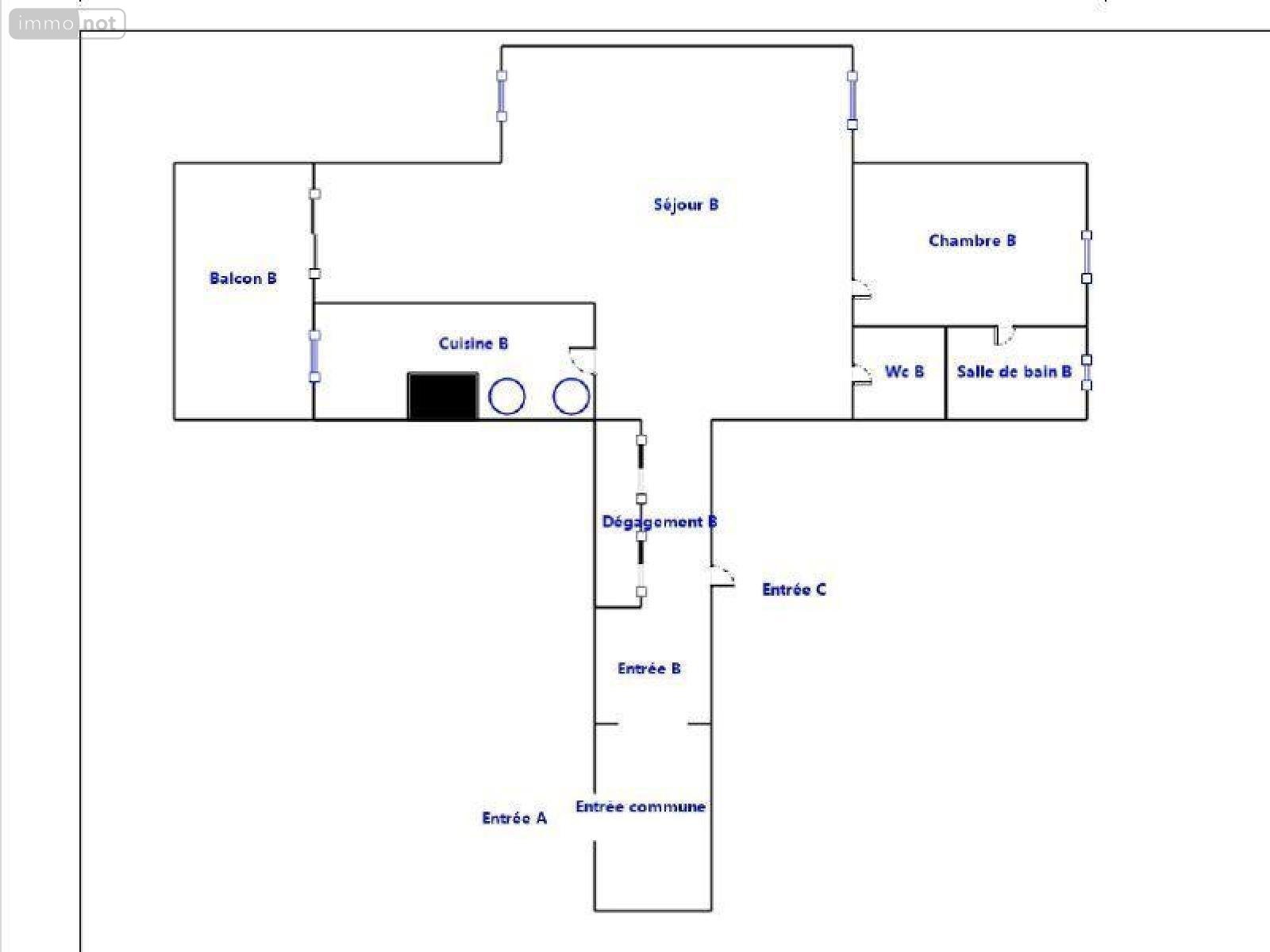
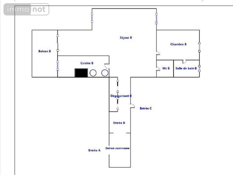
D'une surface de 145.34 m² carrez il bénéficie d'une superficie généreuse permettant d'accueillir un vaste appartement familial comme actuellement. En effet il se compose d'un grand couloir qui dessert d'un côté un salon /bibliothèque, une chambre, une salle de bains, un wc, un dressing et un balcon, ensuite un séjour avec balcon, une cuisine, une chambre, une salle de bains, + un 2eme wc et d'un autre coté un séjour avec balcon ( ou bureau et chambre) cuisine, salle de bains
Double exposition EST/OUEST. Belle Vue dégagée sur BORDEAUX .
Redistribution possible en 3 appartements indépendants ( 3 compteurs/3 chaudières).
Résidence bien entretenue avec gardien, sécurisée- Ascenseur et Piscine.
Adresse recherchée à proximité du Centre Ville, des écoles, des transports en commun et des commerces. Présence d'une crèche dans la résidence.
Possibilité investissement locatif, colocation...
Un cellier privatif ainsi qu'une place de parking dans un parking en sous sol sécurisé complètent le bien .
Pour obtenir de plus amples renseignements et/ou visite merci de contacter notre office notarial, Géraldine GODIN au 06 83 74 26 78 .

Bien en copropriété
Bien soumis à copropriété
Oui
Nbre de lots de la copropriété
165
Montant des charges prévisionnelles annuelles moyen
3600.0 €
Diagnostics (Réalisé le 05/07/2025 et présenté selon la référence en vigueur de 2021)

Consommation énergétique (dont Émissions de gaz à effet de serre)

A
B
C
D
184
E
F
G
Économe
Énergivore
Tableau de diagnostic de la performance énergétique des logements
Consommations énergétiques
Consommations énergétiques (en énergie primaire) pour le chauffage, la production d'eau chaude sanitaire et le refroidissement Indice de mesure : kWhEP/m 2 .an
A
B
C
D
39
E
F
G
Faible émission
Forte émission
Tableau de diagnostic de la performance énergétique des logements
Émissions de gaz à effet de serre
Émissions de gaz à effet de serre (GES) pour le chauffage, la production d'eau chaude sanitaire et le refroidissement Indice de mesure : kgeqCO2/m 2 .an

Estimation annuelle des coûts d'énergie du logement

Montant estimé des dépenses annuelle des coûts d'énergie du logement.

Entre 2390 € et 3260 € par an

Prix moyen des énergies indexées sur l'année de référence (abonnements compris)

État des risques

Les informations sur les risques auxquels ce bien est exposé sont disponibles sur le site Géorisques : www.georisques.gouv.fr

Contacter l'office notarial
SELARL BRISSON & ASSOCIÉS

20 cours Georges Clémenceau
33064 BORDEAUX CEDEX

Tous les biens de l'office notarial
Votre contact : Geraldine GODIN

Formulaire de contact

Nous vous informons de l'existence de la liste d'opposition au démarchage téléphonique BLOCTEL sur laquelle vous pouvez vous inscrire bloctel.gouv.fr.

Confidentialité et conformité au RGPD.
Vos données personnelles sont traitées par Notariat Services en tant que responsable de traitement afin de répondre à votre demande de mise en relation avec SELARL BRISSON & ASSOCIÉS. Les grandes lignes concernant la responsabilité liée à ce traitement effectué par Notariat Services sont disponibles ici. Vos données sont conservées pendant 36 mois et sont destinées à la mise en relation avec SELARL BRISSON & ASSOCIÉS. Conformément à la loi "informatique et libertés" et au RGPD, vous pouvez exercer vos droits d'opposition, d'accès, de rectification, d'effacement, de limitation et de portabilité en adressant un email à l'adresse suivante : [email protected]. Vous pouvez également adresser une réclamation auprés de la CNIL directement via son site internet www.cnil.fr.

Les champs obligatoires sont marqués *.

Contacter l'office notarial
SELARL BRISSON & ASSOCIÉS

20 cours Georges Clémenceau
33064 BORDEAUX CEDEX

Tous les biens de l'office notarial
Votre contact : Geraldine GODIN
SIRET:
337 740 484 00015
TVA Intra-communautaire:
FR10 337 740 484
/>