Immonot, l'immobilier des notaires
Achat - Maison
Névez (29920)
334 400 €
320 000 € + Honoraires de négociation TTC : 14 400 €
Soit 4,5% à la charge de l'acquéreur
Numéro principal :
02 98 06 02 11
Envoyer un email
Numéro principal :
02 98 06 02 11
Email

Achat Maison Névez (29920)  Maison rurale 5 pièces 94 m2


Retour
334 400 €
320 000 € + Honoraires de négociation TTC : 14 400 €
Soit 4,5% à la charge de l'acquéreur
Tous les biens de l'office
334 400 €
320 000 € + Honoraires de négociation TTC : 14 400 €
Soit 4,5% à la charge de l'acquéreur
Barème des honoraires de négociation

Financer ce bien Assurance emprunteur
Déménagement Améliorer son habitat
Caractéristiques
Surface habitable
94,77  m2
Surface terrain
820  m2
Pièces
5
Chambres
2
Chauffage
Cheminée et/ou insert, Fuel, bois, cheminee, Bois
Taxe foncière
1654.0
Etat général
Correct
Meuble
Non
Nombre d'étage(s)
1
Sous Sol
Oui
Terrasse
Oui
Place(s) parking
1
Garage
Oui
Garage(s)
1
Référence
11286/848
Les +
Mer

Maison rurale à vendre à Névez dans le Finistère (29920), ref : 11286/848
Rospico

COMPROMIS EN COURS
A Névez, Finistère Sud, à 300m de l'anse de Rospico:
Maison des années 50, sur un terrain de 820m2 abrité des regards.
Ce bien présente une architecture originale et rare sur le secteur, dans le style moderniste ou postmoderniste.
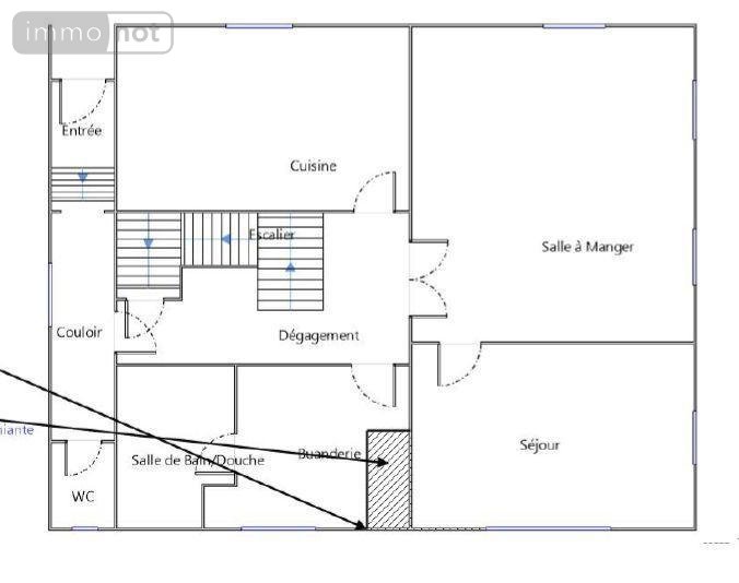
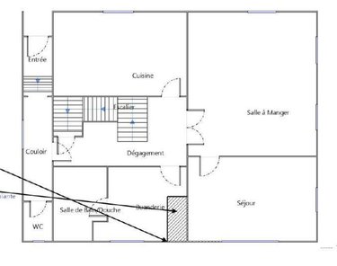
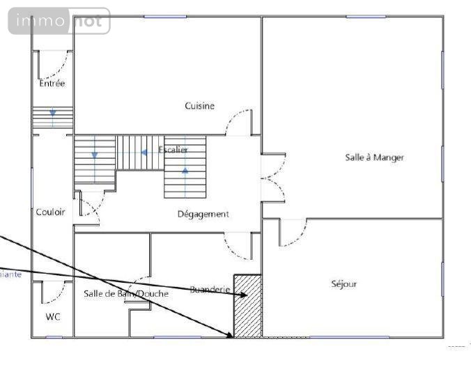
Sur sous-sol, cette maison comprend au 1er niveau l'entrée, la cuisine, un salon avec cheminée et une salle à manger, et une salle de bains-douche.
Au second niveau, le palier dessert 2 chambres, ainsi qu'une véranda très lumineuse ouverte sur un toit terrasse, offrant une vue mer.
Les deux niveaux sont sur plancher hourdis béton.
Des travaux de ravalement et d'isolation par l'extérieur ainsi que le remplacement des fenêtres avec volets roulants électriques ont été réalisés en 2023.
Dépendances:
Un grand carport se prolonge en garage avec une partie annexe avec point d'eau. Cet espace de plus de 53m2 pourrait être converti (sous réserve des autorisations légales) en un appartement, atelier ou autre.
Un chalet en bois peut loger deux personnes.
L'Anse de Rospico offre de magnifiques paysages tout en contraste selon les marées. Le sable d'une grande finesse et les falaises rocheuses qui protègent cette anse donnent l'impression d'être dans un véritable cocon. Le lieu est idéal pour découvrir la faune et la flore aquatique avec un masque et un tuba.
Idéalement situé à 300m de la côte, vous rejoignez Port Manech en 7 minutes à vélo, ou via le sentier côtier qui relie Port Manech, Rospico et Raguenez. Le bourg de Névez est accessible en 15 minutes à vélo, vous y trouverez tout les services.
La gare TGV de Rosporden est à 25 minutes en voiture.
Pour plus d'informations ou pour visiter cette maison, contactez notre Etude à Pont-Aven.

Maison rurale à vendre à Névez dans le Finistère (29920), ref : 11286/848
Rospico

In Névez, South Finistère, 300m from Rospico cove:
House from the 50s, on a plot of 820m2 sheltered from view.
This property presents original and rare architecture in the area, in the modernist or postmodernist style.
On the basement, this house includes on the 1st level the entrance, the kitchen, a living room with fireplace and a dining room, and a bathroom-shower.
On the second level, the landing serves 2 bedrooms, as well as a very bright veranda opening onto a roof terrace.
This property requires refreshing work.
A large carport extends into a garden shed offering a large storage space, workshop, etc...
A wooden chalet can accommodate two people.
Rospico Cove offers magnificent landscapes in contrast depending on the tides. The fine sand and the rocky cliffs that protect this cove give the impression of being in a real cocoon. The place is ideal for discovering the aquatic fauna and flora with a mask and snorkel.
Ideally located 300m from the coast, you reach Port Manech in 7 minutes by bike, or via the coastal path which connects Port Manech, Rospico and Raguenez. The town of Névez is accessible in 15 minutes by bike, you will find all the services there.
Rosporden TGV station is 25 minutes by car.
For more information or to visit this house, contact our office in Pont-Aven.

Diagnostics (Réalisé le 08/05/2024 et présenté selon la référence en vigueur de 2021)

Consommation énergétique (dont Émissions de gaz à effet de serre)

A
B
C
D
E
F
331
G
Économe
Énergivore
Tableau de diagnostic de la performance énergétique des logements
Consommations énergétiques
Consommations énergétiques (en énergie primaire) pour le chauffage, la production d'eau chaude sanitaire et le refroidissement Indice de mesure : kWhEP/m 2 .an
A
B
C
D
E
F
75
G
Faible émission
Forte émission
Tableau de diagnostic de la performance énergétique des logements
Émissions de gaz à effet de serre
Émissions de gaz à effet de serre (GES) pour le chauffage, la production d'eau chaude sanitaire et le refroidissement Indice de mesure : kgeqCO2/m 2 .an

Logement à consommation énergétique excessive

Estimation annuelle des coûts d'énergie du logement

Montant estimé des dépenses annuelle des coûts d'énergie du logement.

Entre 2020 € et 2790 € par an

Prix moyen des énergies indexées sur l'année de référence (abonnements compris)

État des risques

Les informations sur les risques auxquels ce bien est exposé sont disponibles sur le site Géorisques : www.georisques.gouv.fr

Contacter l'office notarial
SELARL OFFICE NOTARIAL - DUIGOU et MORIN

2 rue de Keramperchec BP 21
29930 PONT AVEN

Tous les biens de l'office notarial
Votre contact : Nathalie LE DEUFF

Formulaire de contact

Nous vous informons de l'existence de la liste d'opposition au démarchage téléphonique BLOCTEL sur laquelle vous pouvez vous inscrire bloctel.gouv.fr.

Confidentialité et conformité au RGPD.
Vos données personnelles sont traitées par Notariat Services en tant que responsable de traitement afin de répondre à votre demande de mise en relation avec SELARL OFFICE NOTARIAL - Morgan DUIGOU et Caroline MORIN. Les grandes lignes concernant la responsabilité liée à ce traitement effectué par Notariat Services sont disponibles ici. Vos données sont conservées pendant 36 mois et sont destinées à la mise en relation avec SELARL OFFICE NOTARIAL - Morgan DUIGOU et Caroline MORIN. Conformément à la loi "informatique et libertés" et au RGPD, vous pouvez exercer vos droits d'opposition, d'accès, de rectification, d'effacement, de limitation et de portabilité en adressant un email à l'adresse suivante : [email protected]. Vous pouvez également adresser une réclamation auprés de la CNIL directement via son site internet www.cnil.fr.

Les champs obligatoires sont marqués *.

Contacter l'office notarial
SELARL OFFICE NOTARIAL - DUIGOU et MORIN

2 rue de Keramperchec BP 21
29930 PONT AVEN

Tous les biens de l'office notarial
Votre contact : Nathalie LE DEUFF
SIRET:
790 667 562 00025
TVA Intra-communautaire:
FR06 790 667 562
/>