Immonot, l'immobilier des notaires
Achat - Maison
Névez (29920)
299 000 €
285 000 € + Honoraires de négociation TTC : 14 000 €
Soit 4,91% à la charge de l'acquéreur
Numéro principal :
02 98 06 02 11
Envoyer un email
Numéro principal :
02 98 06 02 11
Email

Achat Maison Névez (29920) 4 pièces 103 m2


Retour
299 000 €
285 000 € + Honoraires de négociation TTC : 14 000 €
Soit 4,91% à la charge de l'acquéreur
Tous les biens de l'office
299 000 €
285 000 € + Honoraires de négociation TTC : 14 000 €
Soit 4,91% à la charge de l'acquéreur
Barème des honoraires de négociation

Financer ce bien Assurance emprunteur
Déménagement Améliorer son habitat
Caractéristiques
Surface habitable
103,15  m2
Surface terrain
364 m
Pièces
4
Chambres
2
Chauffage
Cheminée et/ou insert, Electricite, bois, individuel, cheminee
Taxe foncière
798.0
Etat général
Bon
Meuble
Non
Nombre d'étage(s)
1
Terrasse
Oui
Place(s) parking
2
Garage
Oui
Garage(s)
1
Référence
11286/847
Les +
Bus
Ecole
Mer

Maison à vendre à Névez dans le Finistère (29920), ref : 11286/847
Raguénez

COMPROMIS EN COURS
A Raguénez, commune de Névez (Finistère Sud):
A 900m à pied des plages!
Dans un hameau, découvrez cette jolie maison en pierre parfaitement entretenue, avec jardin et terrasse sans vis à vis, une maisonnette avec 1 chambre et salle d'eau (SDE à finir d'installer, et possibilité d'y installer une kitchenette et une pièce sous pente ), et un garage de plus de 19m2.
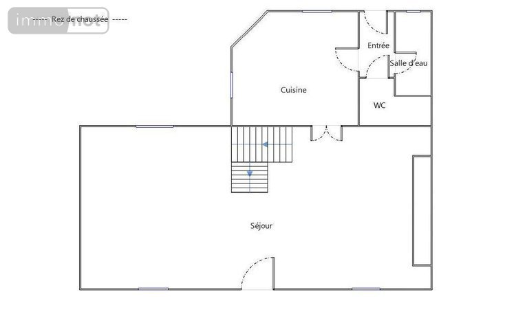
Le rez-de-chaussée de la maison comporte un salon-séjour avec cheminée, une cuisine ouverte sur le jardin et la terrasse, ainsi qu'une petite salle d'eau et un WC.
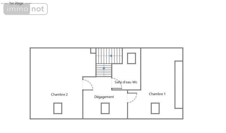
Côté nuit, au 1er étage se trouvent 2 chambres, avec un espace bureau et une salle d'eau avec WC.
Le jardin est clos et abrité des regards. Le garage et une cour permettent d'accueillir plusieurs véhicules.
Le bâti est en bon état, entretenu régulièrement et avec soin, rendant cette maison habitable sans travaux.
La crèche offre une surface aménageable supplémentaire. Elle comprend aujourd'hui une pièce au rez-de-chaussée, avec une salle d'eau et WC à finir d'installer, avec la possibilité d'y installer une kitchenette. Accessible par une échelle meunière, les combles peuvent servir de chambre.
Vous rejoignez à pied ou à vélo les plus belles plages du Finistère sud : Tahiti, Dourveil, Raguénez?
Le bourg de Névez, où vous trouvez tous les services, est à 2.5km.
La gare TGV la plus proche est à 25 minutes en voiture.
Pour plus d'information ou pour organiser une visite, contactez notre Etude à Pont-Aven.

Maison à vendre à Névez dans le Finistère (29920), ref : 11286/847
Raguénez

In Raguénez, a commune of Névez (South Finistère):
A 900m walk from the beaches!
In a hamlet, discover this pretty, perfectly maintained stone house with a private garden and terrace, a small cottage with 1 bedroom and shower room (shower room to be finished, with the possibility of adding a kitchenette and an attic room), and a garage of over 19m².
The ground floor of the house features a living room with a fireplace, a kitchen opening onto the garden and terrace, as well as a small shower room and a toilet.
On the sleeping area, on the first floor are 2 bedrooms, an office space, and a shower room with toilet.
The garden is enclosed and sheltered from view. The garage and courtyard can accommodate several vehicles.
The building is in good condition and regularly and carefully maintained, making this house habitable without any work.
The daycare center offers additional convertible space. It currently comprises a ground floor room with a bathroom and toilet, yet to be finished, and the possibility of adding a kitchenette. Accessible via a ladder, the attic space can be used as a bedroom.
You can reach the most beautiful beaches in southern Finistère on foot or by bike: Tahiti, Dourveil, Raguénez, and more.
The village of Névez, where you'll find all amenities, is 2.5 km away.
The nearest TGV train station is a 25-minute drive away.
For more information or to arrange a viewing, please contact our office in Pont-Aven.

Maison à vendre à Névez dans le Finistère (29920), ref : 11286/847
Raguénez

En Raguénez, municipio de Névez (Sur de Finisterre):
¡A 900 m andando de las playas!
En una aldea, descubra esta bonita casa de piedra, perfectamente mantenida, con jardín y terraza sin vecinos, una cabaña con 1 dormitorio y baño (cuarto de ducha para terminar de instalar, y posibilidad de instalar una cocina americana y una habitación bajo pendiente), y un garaje de más de 19m2.
La planta baja de la casa tiene un salón con chimenea, una cocina abierta al jardín y a la terraza, además de un pequeño baño y un aseo.
En el lado de noche, en el primer piso hay 2 dormitorios, con un espacio de oficina y un baño con WC.
El jardín está cerrado y protegido de la vista. El garaje y el patio tienen capacidad para varios vehículos.
El edificio está en buenas condiciones, mantenido regularmente y con esmero, lo que hace que esta casa sea habitable sin obras.
La guardería ofrece espacio convertible adicional. Ahora incluye una habitación en la planta baja, con baño y WC por terminar de instalar, con posibilidad de instalar una cocina americana. Accesible por una escalera de mano, el ático se puede utilizar como dormitorio.
Podrás llegar a pie o en bicicleta a las playas más bonitas del sur de Finisterre: Tahití, Dourveil, Raguénez?
El pueblo de Névez, donde encuentras todos los servicios, está a 2,5km.
La estación de TGV más cercana está a 25 minutos en coche.
Para obtener más información o organizar una visita, póngase en contacto con nuestra oficina en Pont-Aven.

Diagnostics (Réalisé le 19/07/2024 et présenté selon la référence en vigueur de 2021)

Consommation énergétique (dont Émissions de gaz à effet de serre)

A
B
C
D
E
286
F
G
Économe
Énergivore
Tableau de diagnostic de la performance énergétique des logements
Consommations énergétiques
Consommations énergétiques (en énergie primaire) pour le chauffage, la production d'eau chaude sanitaire et le refroidissement Indice de mesure : kWhEP/m 2 .an
A
B
9
C
D
E
F
G
Faible émission
Forte émission
Tableau de diagnostic de la performance énergétique des logements
Émissions de gaz à effet de serre
Émissions de gaz à effet de serre (GES) pour le chauffage, la production d'eau chaude sanitaire et le refroidissement Indice de mesure : kgeqCO2/m 2 .an

Estimation annuelle des coûts d'énergie du logement

Montant estimé des dépenses annuelle des coûts d'énergie du logement.

Entre 1510 € et 2090 € par an

Prix moyen des énergies indexées sur l'année de référence (abonnements compris)

État des risques

Les informations sur les risques auxquels ce bien est exposé sont disponibles sur le site Géorisques : www.georisques.gouv.fr

Contacter l'office notarial
SELARL OFFICE NOTARIAL - DUIGOU et MORIN

2 rue de Keramperchec BP 21
29930 PONT AVEN

Tous les biens de l'office notarial
Votre contact : Nathalie LE DEUFF

Formulaire de contact

Nous vous informons de l'existence de la liste d'opposition au démarchage téléphonique BLOCTEL sur laquelle vous pouvez vous inscrire bloctel.gouv.fr.

Confidentialité et conformité au RGPD.
Vos données personnelles sont traitées par Notariat Services en tant que responsable de traitement afin de répondre à votre demande de mise en relation avec SELARL OFFICE NOTARIAL - Morgan DUIGOU et Caroline MORIN. Les grandes lignes concernant la responsabilité liée à ce traitement effectué par Notariat Services sont disponibles ici. Vos données sont conservées pendant 36 mois et sont destinées à la mise en relation avec SELARL OFFICE NOTARIAL - Morgan DUIGOU et Caroline MORIN. Conformément à la loi "informatique et libertés" et au RGPD, vous pouvez exercer vos droits d'opposition, d'accès, de rectification, d'effacement, de limitation et de portabilité en adressant un email à l'adresse suivante : [email protected]. Vous pouvez également adresser une réclamation auprés de la CNIL directement via son site internet www.cnil.fr.

Les champs obligatoires sont marqués *.

Contacter l'office notarial
SELARL OFFICE NOTARIAL - DUIGOU et MORIN

2 rue de Keramperchec BP 21
29930 PONT AVEN

Tous les biens de l'office notarial
Votre contact : Nathalie LE DEUFF
SIRET:
790 667 562 00025
TVA Intra-communautaire:
FR06 790 667 562
/>