Immonot, l'immobilier des notaires
Achat - Maison
Ydes (15210)
371 000 €
(Honoraires de négociation à la charge du vendeur)
Numéro principal :
06 72 59 35 82
Envoyer un email
Numéro principal :
06 72 59 35 82
Email

Achat Maison Ydes (15210)  Maison individuelle 6 pièces 196 m2


Retour
371 000 €
(Honoraires de négociation à la charge du vendeur)
Tous les biens de l'office
371 000 €
(Honoraires de négociation à la charge du vendeur)
Barème des honoraires de négociation

Financer ce bien Assurance emprunteur
Déménagement Améliorer son habitat
Caractéristiques
Surface habitable
196,18  m2
Surface terrain
47 550  m2
Pièces
6
Chambres
5
Chauffage
Electrique
Meuble
non
Référence
93T-15029

Maison individuelle à vendre à Ydes dans le Cantal (15210), ref : 93T-15029

Découvrez cette ravissante chaumière offrant de beaux volumes et un cadre naturel exceptionnel.
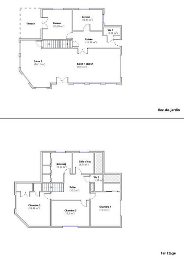
Au rez-de-chaussée, vous trouverez une entrée accueillante, un séjour lumineux avec terrasse à la vue panoramique, un salon cosy, une cuisine fonctionnelle, ainsi qu'un bureau pouvant faire office de chambre avec terrasse, et un WC.
À l'étage, un palier dessert trois belles chambres, une salle d'eau, un WC séparé et un dressing pouvant également être transformé en chambre supplémentaire.
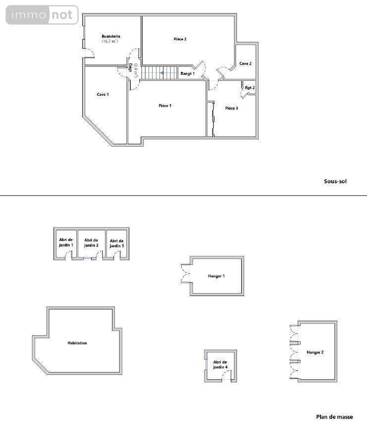
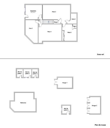
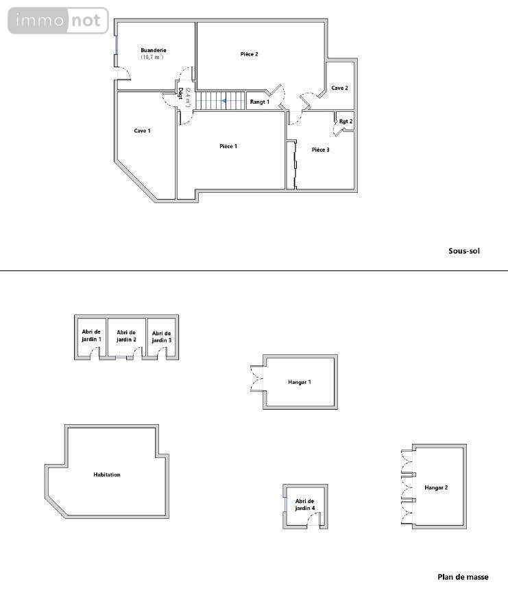
Le sous-sol propose une buanderie, trois pièces polyvalentes, une cave et un espace de stockage.
Le bien dispose également d'une dépendance à usage de stockage, idéale pour ranger matériel, outils ou équipements extérieurs.
L'ensemble est édifié sur un splendide terrain arboré d'environ 47 550 m², comprenant un verger ainsi qu'un parc où évoluent des daims, offrant un environnement unique et dépaysant.
Coup de cœur assuré !
VISITE VIRTUELLE disponible sur demande.
Honoraires à la charge du vendeur. Classe énergie D, Classe climat B Montant estimé des dépenses annuelles d'énergie pour un usage standard : entre 5290.00 € et 7190.00 € sur les années 2021, 2022 et 2023 (abonnements compris). Les informations sur les risques auxquels ce bien est exposé sont disponibles sur le site Géorisques : georisques.gouv.fr.

Diagnostics (Réalisé le 30/10/2025 et présenté selon la référence en vigueur de 2021)

Consommation énergétique (dont Émissions de gaz à effet de serre)

A
B
C
D
244
E
F
G
Économe
Énergivore
Tableau de diagnostic de la performance énergétique des logements
Consommations énergétiques
Consommations énergétiques (en énergie primaire) pour le chauffage, la production d'eau chaude sanitaire et le refroidissement Indice de mesure : kWhEP/m 2 .an
A
B
8
C
D
E
F
G
Faible émission
Forte émission
Tableau de diagnostic de la performance énergétique des logements
Émissions de gaz à effet de serre
Émissions de gaz à effet de serre (GES) pour le chauffage, la production d'eau chaude sanitaire et le refroidissement Indice de mesure : kgeqCO2/m 2 .an

Estimation annuelle des coûts d'énergie du logement

Montant estimé des dépenses annuelle des coûts d'énergie du logement.

Entre 5290 € et 7190 € par an

Prix moyen des énergies indexées sur l'année de référence (abonnements compris)

État des risques

Les informations sur les risques auxquels ce bien est exposé sont disponibles sur le site Géorisques : www.georisques.gouv.fr

Contacter l'office notarial
SELARL BESSON SUBERT et MINASSIAN, Notaires

Place de la Liberté
15210 YDES

Tous les biens de l'office notarial

Formulaire de contact

Nous vous informons de l'existence de la liste d'opposition au démarchage téléphonique BLOCTEL sur laquelle vous pouvez vous inscrire bloctel.gouv.fr.

Confidentialité et conformité au RGPD.
Vos données personnelles sont traitées par Notariat Services en tant que responsable de traitement afin de répondre à votre demande de mise en relation avec SELARL BESSON SUBERT et MINASSIAN, Notaires. Les grandes lignes concernant la responsabilité liée à ce traitement effectué par Notariat Services sont disponibles ici. Vos données sont conservées pendant 36 mois et sont destinées à la mise en relation avec SELARL BESSON SUBERT et MINASSIAN, Notaires. Conformément à la loi "informatique et libertés" et au RGPD, vous pouvez exercer vos droits d'opposition, d'accès, de rectification, d'effacement, de limitation et de portabilité en adressant un email à l'adresse suivante : [email protected]. Vous pouvez également adresser une réclamation auprés de la CNIL directement via son site internet www.cnil.fr.

Les champs obligatoires sont marqués *.
SIRET:
389 266 123 00030
TVA Intra-communautaire:
FR55 389 266 123
/>