Immonot, l'immobilier des notaires
Achat - Maison
Bort-les-Orgues (19110)
84 800 €
(Honoraires de négociation à la charge du vendeur)
Numéro principal :
06 72 59 35 82
Envoyer un email
Numéro principal :
06 72 59 35 82
Email

Achat Maison Bort-les-Orgues (19110)  Maison individuelle 4 pièces 68 m2


Retour
84 800 €
(Honoraires de négociation à la charge du vendeur)
Tous les biens de l'office
84 800 €
(Honoraires de négociation à la charge du vendeur)
Barème des honoraires de négociation

Financer ce bien Assurance Emprunteur
Déménagement Améliorer son habitat
Caractéristiques
Surface habitable
68,31  m2
Surface terrain
975 m2
Pièces
4
Chambres
3
Chauffage
Fioul
Meuble
non
Garage
Oui
Référence
104T-15029

Maison individuelle à vendre à Bort-les-Orgues en Corrèze (19110), ref : 104T-15029

Maison lumineuse idéalement située à proximité des commodités.
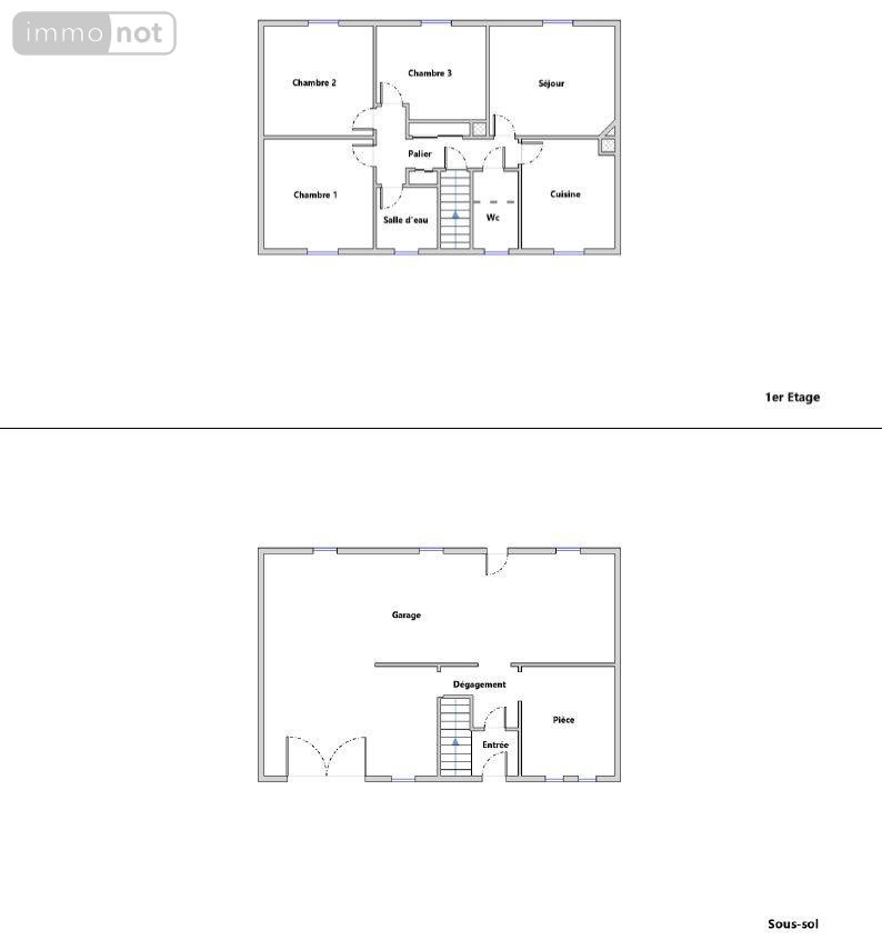
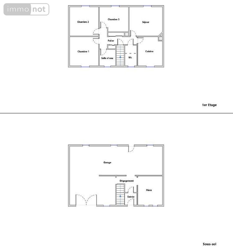
Édifiée sur un sous-sol complet, elle se compose au rez-de-chaussée d'une entrée, d'une chaufferie, d'une buanderie ainsi que d'un garage.
À l'étage, vous découvrirez un agréable séjour avec cheminée, une cuisine indépendante, trois chambres, une salle d'eau et des WC séparés.
Le tout est implanté sur un terrain d'environ 975 m², offrant un bel espace extérieur.
Visite virtuelle disponible sur demande.
Honoraires à la charge du vendeur. Logement à consommation énergétique excessive : Classe énergie G, Classe climat G Montant estimé des dépenses annuelles d'énergie pour un usage standard : entre 3440.00 € et 4720.00 € sur les années 2021, 2022 et 2023 (abonnements compris). Les informations sur les risques auxquels ce bien est exposé sont disponibles sur le site Géorisques : georisques.gouv.fr.

Diagnostics (Réalisé le 16/03/2026 et présenté selon la référence en vigueur de 2021)

Consommation énergétique (dont Émissions de gaz à effet de serre)

A
B
C
D
E
F
G
399
Économe
Énergivore
Tableau de diagnostic de la performance énergétique des logements
Consommations énergétiques
Consommations énergétiques (en énergie primaire) pour le chauffage, la production d'eau chaude sanitaire et le refroidissement Indice de mesure : kWhEP/m 2 .an
A
B
C
D
E
F
G
125
Faible émission
Forte émission
Tableau de diagnostic de la performance énergétique des logements
Émissions de gaz à effet de serre
Émissions de gaz à effet de serre (GES) pour le chauffage, la production d'eau chaude sanitaire et le refroidissement Indice de mesure : kgeqCO2/m 2 .an

Logement à consommation énergétique excessive

Estimation annuelle des coûts d'énergie du logement

Montant estimé des dépenses annuelle des coûts d'énergie du logement.

Entre 3440 € et 4720 € par an

Prix moyen des énergies indexées sur l'année de référence (abonnements compris)

État des risques

Les informations sur les risques auxquels ce bien est exposé sont disponibles sur le site Géorisques : www.georisques.gouv.fr

Contacter l'office notarial
SELARL BESSON SUBERT et MINASSIAN, Notaires

Place de la Liberté
15210 YDES

Tous les biens de l'office notarial

Formulaire de contact

Nous vous informons de l'existence de la liste d'opposition au démarchage téléphonique BLOCTEL sur laquelle vous pouvez vous inscrire bloctel.gouv.fr.

Confidentialité et conformité au RGPD.
Vos données personnelles sont traitées par Notariat Services en tant que responsable de traitement afin de répondre à votre demande de mise en relation avec SELARL BESSON SUBERT et MINASSIAN, Notaires. Les grandes lignes concernant la responsabilité liée à ce traitement effectué par Notariat Services sont disponibles ici. Vos données sont conservées pendant 36 mois et sont destinées à la mise en relation avec SELARL BESSON SUBERT et MINASSIAN, Notaires. Conformément à la loi "informatique et libertés" et au RGPD, vous pouvez exercer vos droits d'opposition, d'accès, de rectification, d'effacement, de limitation et de portabilité en adressant un email à l'adresse suivante : [email protected]. Vous pouvez également adresser une réclamation auprés de la CNIL directement via son site internet www.cnil.fr.

Les champs obligatoires sont marqués *.
SIRET:
389 266 123 00030
TVA Intra-communautaire:
FR55 389 266 123
/>