Immonot, l'immobilier des notaires
Achat - Appartement
Paris (75019) (Paris 19e arrondissement)
644 480 €
608 000 € + Honoraires de négociation TTC : 36 480 €
Soit 6,0% à la charge de l'acquéreur
Numéro principal :
06.69.49.40.00
Envoyer un email
Numéro principal :
06.69.49.40.00
Email

Achat Appartement Paris (75019) (Paris 19e arrondissement) 4 pièces 82 m2


Retour
644 480 €
608 000 € + Honoraires de négociation TTC : 36 480 €
Soit 6,0% à la charge de l'acquéreur
Tous les biens de l'office
644 480 €
608 000 € + Honoraires de négociation TTC : 36 480 €
Soit 6,0% à la charge de l'acquéreur
Barème des honoraires de négociation

Financer ce bien Assurance Emprunteur
Déménagement Améliorer son habitat
Caractéristiques
Surface habitable
82,81  m2
Pièces
4
Chambres
2
Chauffage
Gaz
Etat général
Bon
Milieu
Urbain
Meuble
non
Nombre d'étage(s)
6
Cave
Oui
Référence
AV DE LAUMIERE
Les +
Bus
Métro
Gare
Tramway
Commerces
Ecole

Appartement à vendre à Paris 19e arrondissement à Paris (75019), ref : AV DE LAUMIERE
MAIRIE Parc des Buttes Chaumont

Appartement à vendre Paris 19e arrondissement à Paris (75),
NOTAIRE VEND EN EXCLUSIVITE
PARIS 19 - Avenue de Laumière - Immeuble ancien de très bon standing
À deux pas de la Mairie du 19 arrondissement et du Parc des Buttes-Chaumont, dans l'un des secteurs les plus recherchés du 19, au sein d'un très bel immeuble ancien de 1905, parfaitement entretenu et de bon standing, nous vous proposons un appartement de 4 pièces situé au 5 étage avec ascenseur, à droite en sortant de celui-ci.
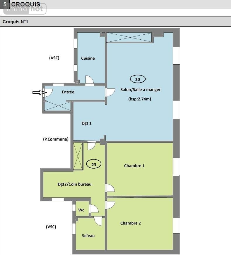
D'une superficie loi Carrez de 82,81 m², cet appartement bénéficie d'un étage élevé particulièrement apprécié et d'un excellent ensoleillement, lui assurant une belle luminosité tout au long de la journée. Il se compose d'une entrée, d'une cuisine indépendante, d'un vaste salon / salle à manger de 26,68 m² avec une hauteur sous plafond de 2,74 m, de deux chambres confortables de 13,57 m² et 13,47 m², d'un dégagement pouvant accueillir un coin bureau, d'une salle d'eau et de WC séparés. Les volumes sont harmonieux, la circulation fluide et l'ensemble est en bon état général.
Le bien affiche une performance énergétique classée E, en cohérence avec le caractère et l'architecture d'un immeuble ancien de cette qualité.
L'adresse est particulièrement attractive : au pied des commerces de l'avenue de Laumière, à proximité immédiate des marchés, écoles et services, et parfaitement desservie par les transports, notamment les stations de métro Laumière et Ourcq (ligne 5) ainsi que Botzaris (ligne 7bis). Le Parc des Buttes Chaumont, véritable poumon vert de l'Est parisien, se trouve à quelques dizaines de mètres de l'immeuble.
Deux caves complètent ce bien. Gardien. Digicode. Interphone. Local à Vélos
Un appartement lumineux, en étage élevé, au sein d'un immeuble ancien de belle qualité, idéal pour une résidence principale familiale comme pour un projet patrimonial.
Pour organiser une visite, merci de me contacter au 06 69 49 40 00. Laurent BARKAT

Bien en copropriété
Bien soumis à copropriété
Oui
Nbre de lots de la copropriété
42
Diagnostics (Réalisé le 10/02/2026 et présenté selon la référence en vigueur de 2021)

Consommation énergétique (dont Émissions de gaz à effet de serre)

A
B
C
D
E
309
F
G
Économe
Énergivore
Tableau de diagnostic de la performance énergétique des logements
Consommations énergétiques
Consommations énergétiques (en énergie primaire) pour le chauffage, la production d'eau chaude sanitaire et le refroidissement Indice de mesure : kWhEP/m 2 .an
A
B
C
D
E
59
F
G
Faible émission
Forte émission
Tableau de diagnostic de la performance énergétique des logements
Émissions de gaz à effet de serre
Émissions de gaz à effet de serre (GES) pour le chauffage, la production d'eau chaude sanitaire et le refroidissement Indice de mesure : kgeqCO2/m 2 .an

Estimation annuelle des coûts d'énergie du logement

Montant estimé des dépenses annuelle des coûts d'énergie du logement.

Entre 2376 € et 3214 € par an

Prix moyen des énergies indexées sur l'année de référence (abonnements compris)

État des risques

Les informations sur les risques auxquels ce bien est exposé sont disponibles sur le site Géorisques : www.georisques.gouv.fr

Formulaire de contact

Nous vous informons de l'existence de la liste d'opposition au démarchage téléphonique BLOCTEL sur laquelle vous pouvez vous inscrire bloctel.gouv.fr.

Confidentialité et conformité au RGPD.
Vos données personnelles sont traitées par Notariat Services en tant que responsable de traitement afin de répondre à votre demande de mise en relation avec Maître Hadrien-François WILLAUME, Notaire. Les grandes lignes concernant la responsabilité liée à ce traitement effectué par Notariat Services sont disponibles ici. Vos données sont conservées pendant 36 mois et sont destinées à la mise en relation avec Maître Hadrien-François WILLAUME, Notaire. Conformément à la loi "informatique et libertés" et au RGPD, vous pouvez exercer vos droits d'opposition, d'accès, de rectification, d'effacement, de limitation et de portabilité en adressant un email à l'adresse suivante : [email protected]. Vous pouvez également adresser une réclamation auprés de la CNIL directement via son site internet www.cnil.fr.

Les champs obligatoires sont marqués *.
SIRET:
784 712 465 00011
TVA Intra-communautaire:
FR78 784 712 465
/>