Immonot, l'immobilier des notaires
Achat - Maison
Chartrettes (77590)
369 500 €
353 500 € + Honoraires de négociation TTC : 16 000 €
Soit 4,53% à la charge de l'acquéreur
Numéro principal :
01 64 71 04 30
Envoyer un email
Numéro principal :
01 64 71 04 30
Email

Achat Maison Chartrettes (77590) 6 pièces 158 m2


Retour
369 500 €
353 500 € + Honoraires de négociation TTC : 16 000 €
Soit 4,53% à la charge de l'acquéreur
Tous les biens de l'office
369 500 €
353 500 € + Honoraires de négociation TTC : 16 000 €
Soit 4,53% à la charge de l'acquéreur
Barème des honoraires de négociation

Financer ce bien Assurance emprunteur
Déménagement Améliorer son habitat
Caractéristiques
Surface habitable
158  m2
Surface terrain
525 m2
Pièces
6
Chambres
4
Chauffage
Gaz
Niveau
Semi-enterre
Etat général
Bon
Milieu
Urbain
Meuble
non
Travaux à prévoir
Non
Nombre d'étage(s)
1
Sous Sol
Oui
Cave
Oui
Garage
Oui
Garage(s)
2
Référence
1003295
Les +
Centre Ville
Bus
Gare
Commerces
Ecole

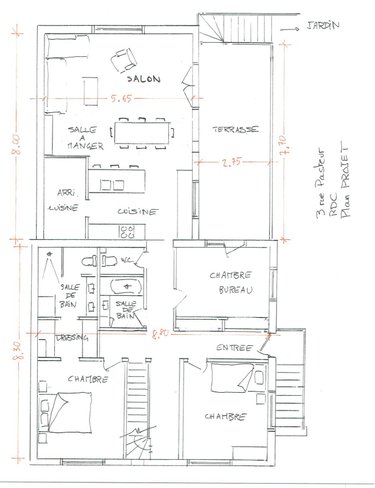
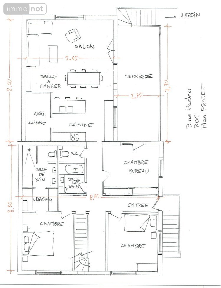
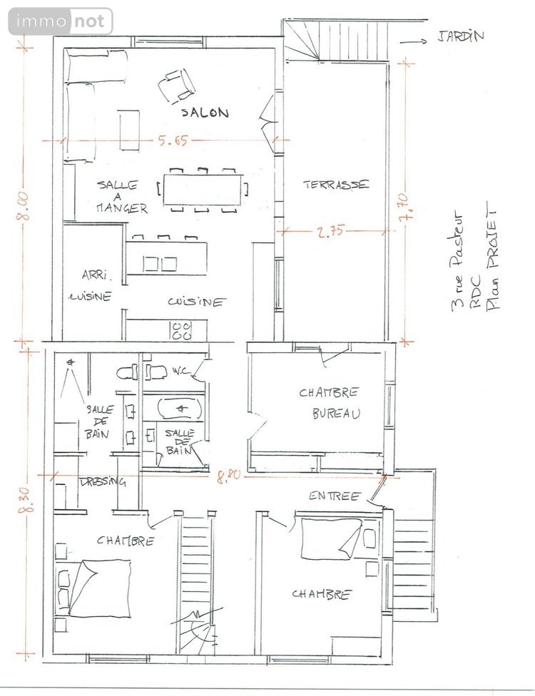
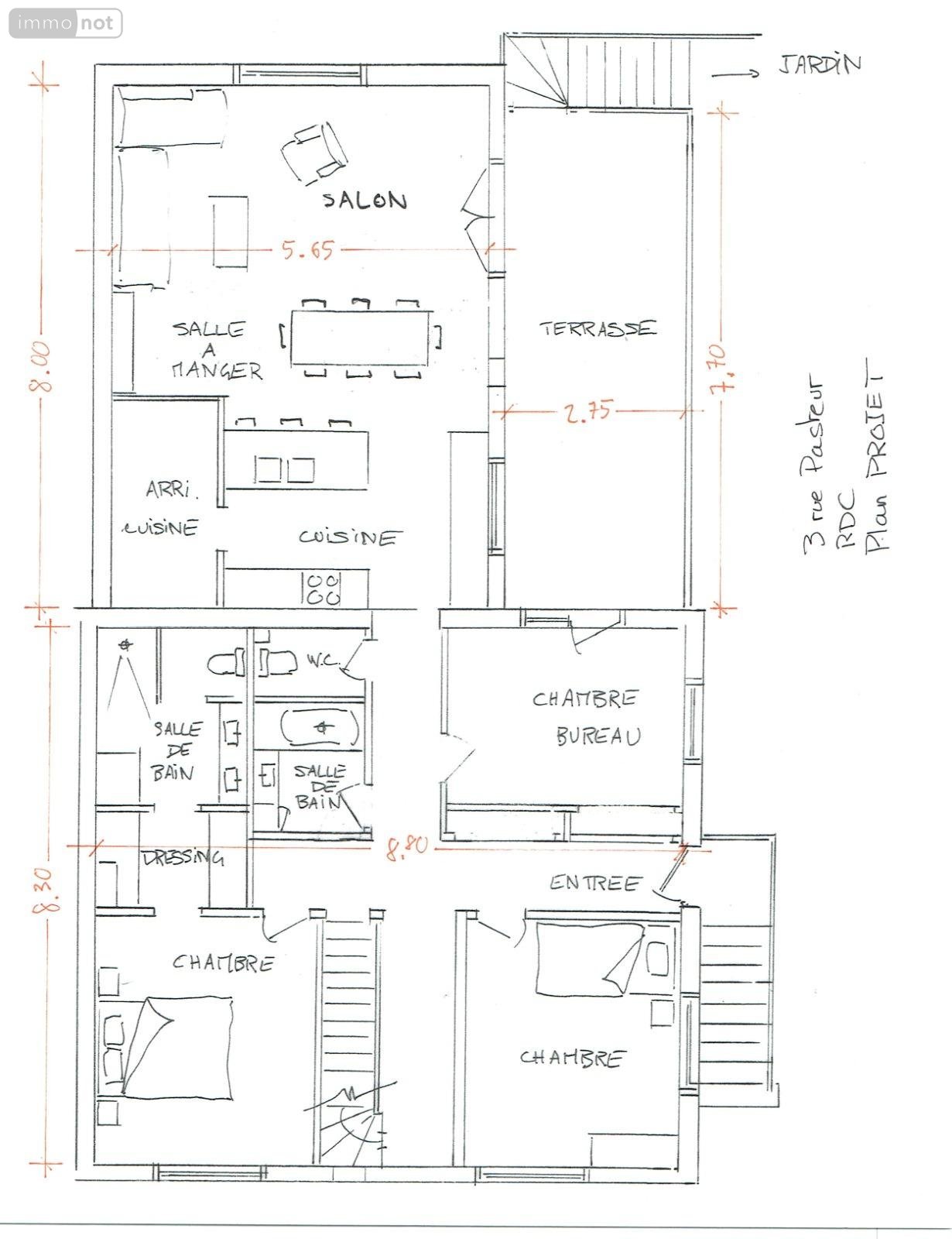
Maison à vendre à Chartrettes en Seine-et-Marne (77590), ref : 1003295

Chartrettes (Secteur rue Pasteur) - maison 111 m² + studio indépendant refait à neuf 47 m² - sous-sol 68 m² - terrain 523 m²
Découvrez cet ensemble immobilier composé d'une maison mitoyenne et d'un studio indépendant refait à neuf, sur un terrain d'environ 523 m².
Surface habitable totale : 158,21 m²
o Maison principale : 111 m²
o Studio indépendant : 47,21 m²
Annexes : sous-sol 68,29 m² + annexe studio 25,38 m² + cave à vin env. 6 m²
Maison principale (111 m²)
o Sous-sol total : garage, buanderie, pièce de repassage/rangements, cave, cave à vin
o Rez-de-chaussée : entrée/couloir, cuisine ouverte sur salle à manger, salon (cheminée), 1 chambre, salle d'eau, WC
o Étage : palier, bureau, 2 chambres dont une grande, salle d'eau avec WC
Studio indépendant rénové (47,21 m²)
Accès distinct : entrée + pièce de rangement/débarras au RDC ; à l'étage : palier, grande chambre, cuisine, salle d'eau, WC.
Idéal logement d'appoint (proche/adolescent), télétravail ou espace indépendant.
Informations techniques
Chauffage : chaudière gaz, assainissement conforme.
Les + qui font la différence
- Studio indépendant rénové
- Grand sous-sol et nombreux rangements
- Vie de plain-pied possible (chambre + salle d'eau au RDC)
- Terrain 523 m²
Projet d'aménagement possible : un projet de réunification "maison + studio" a été étudié (ouverture entre les deux RDC), permettant de créer un espace de vie encore plus grand selon vos besoins. Plans "état actuel" et "état projeté" disponibles sur demande.
Prix : 369 500 EUR FAI - honoraires charge acquéreur.

Diagnostics (Réalisé le 29/01/2026 et présenté selon la référence en vigueur de 2021)

Consommation énergétique (dont Émissions de gaz à effet de serre)

A
B
C
D
E
F
353
G
Économe
Énergivore
Tableau de diagnostic de la performance énergétique des logements
Consommations énergétiques
Consommations énergétiques (en énergie primaire) pour le chauffage, la production d'eau chaude sanitaire et le refroidissement Indice de mesure : kWhEP/m 2 .an
A
B
C
D
E
F
78
G
Faible émission
Forte émission
Tableau de diagnostic de la performance énergétique des logements
Émissions de gaz à effet de serre
Émissions de gaz à effet de serre (GES) pour le chauffage, la production d'eau chaude sanitaire et le refroidissement Indice de mesure : kgeqCO2/m 2 .an

Logement à consommation énergétique excessive

Estimation annuelle des coûts d'énergie du logement

Montant estimé des dépenses annuelle des coûts d'énergie du logement.

Entre 5920 € et 7920 € par an

Prix moyen des énergies indexées sur l'année de référence (abonnements compris)

État des risques

Les informations sur les risques auxquels ce bien est exposé sont disponibles sur le site Géorisques : www.georisques.gouv.fr

Contacter l'office notarial
SCP PAVY et MENA

33 bd Aristide Briand BP 81
77003 MELUN CEDEX

Tous les biens de l'office notarial

Formulaire de contact

Nous vous informons de l'existence de la liste d'opposition au démarchage téléphonique BLOCTEL sur laquelle vous pouvez vous inscrire bloctel.gouv.fr.

Confidentialité et conformité au RGPD.
Vos données personnelles sont traitées par Notariat Services en tant que responsable de traitement afin de répondre à votre demande de mise en relation avec SCP Bruno PAVY et Eve-Marie MENA. Les grandes lignes concernant la responsabilité liée à ce traitement effectué par Notariat Services sont disponibles ici. Vos données sont conservées pendant 36 mois et sont destinées à la mise en relation avec SCP Bruno PAVY et Eve-Marie MENA. Conformément à la loi "informatique et libertés" et au RGPD, vous pouvez exercer vos droits d'opposition, d'accès, de rectification, d'effacement, de limitation et de portabilité en adressant un email à l'adresse suivante : [email protected]. Vous pouvez également adresser une réclamation auprés de la CNIL directement via son site internet www.cnil.fr.

Les champs obligatoires sont marqués *.

Contacter l'office notarial
SCP PAVY et MENA

33 bd Aristide Briand BP 81
77003 MELUN CEDEX

Tous les biens de l'office notarial
SIRET:
351 044 706 00023
TVA Intra-communautaire:
FR86 351 044 706
/>