Immonot, l'immobilier des notaires
Achat - Appartement
Pont-Aven (29930)
259 600 €
250 000 € + Honoraires de négociation TTC : 9 600 €
Soit 3,84% à la charge de l'acquéreur
Numéro principal :
02.97.34.18.60
Envoyer un email
Numéro principal :
02.97.34.18.60
Email

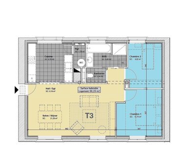
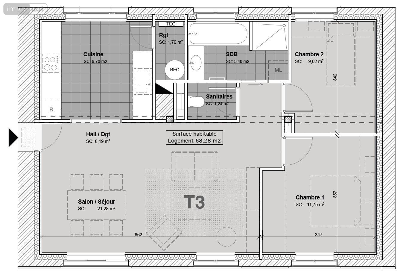
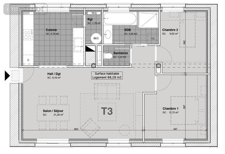
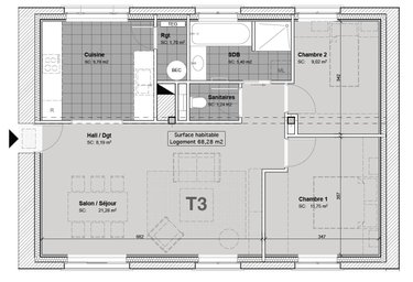
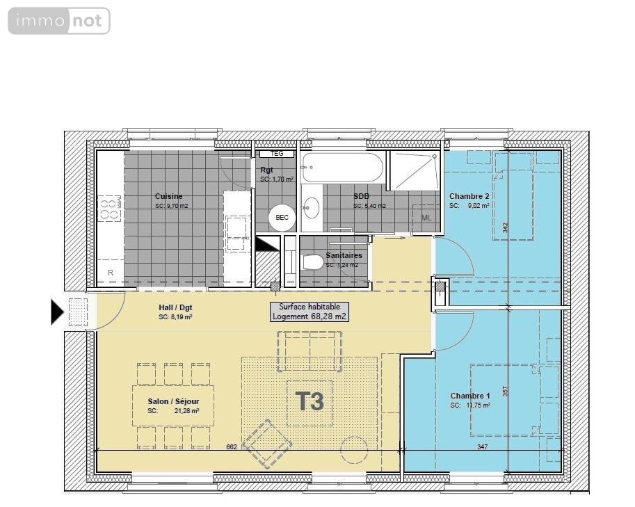
Achat Appartement Pont-Aven (29930) 3 pièces 74 m2


Retour
259 600 €
250 000 € + Honoraires de négociation TTC : 9 600 €
Soit 3,84% à la charge de l'acquéreur
Tous les biens de l'office
259 600 €
250 000 € + Honoraires de négociation TTC : 9 600 €
Soit 3,84% à la charge de l'acquéreur
Barème des honoraires de négociation

Financer ce bien Assurance emprunteur
Déménagement Améliorer son habitat
Caractéristiques
Surface habitable
74,15  m2
Pièces
3
Chambres
2
Chauffage
Electrique
Etat général
Neuf
Milieu
Urbain
Meuble
non
Travaux à prévoir
Non
Nombre d'étage(s)
4
Cave
Oui
Référence
MA 1346-11
Les +
Centre Ville
Commerces
Ecole

Appartement à vendre à Pont-Aven dans le Finistère (29930), ref : MA 1346-11

Appartement T 3 à vendre Pont-Aven dans le Finistère (29),
Rez-de-chaussée : pièce à vivre avec cuisine aménagée et équipée, deux chambres, salle de bain avec baignoire et douche, W.C. séparé
1 cave privative
2 places de stationnement
Possibilité d'un garage à un tarif préférentiel

Bien en copropriété
Bien soumis à copropriété
Oui
Nbre de lots de la copropriété
14
Diagnostics (Réalisé le 15/01/2024 et présenté selon la référence en vigueur de 2021)

Consommation énergétique (dont Émissions de gaz à effet de serre)

A
B
C
D
192
E
F
G
Économe
Énergivore
Tableau de diagnostic de la performance énergétique des logements
Consommations énergétiques
Consommations énergétiques (en énergie primaire) pour le chauffage, la production d'eau chaude sanitaire et le refroidissement Indice de mesure : kWhEP/m 2 .an
A
B
6
C
D
E
F
G
Faible émission
Forte émission
Tableau de diagnostic de la performance énergétique des logements
Émissions de gaz à effet de serre
Émissions de gaz à effet de serre (GES) pour le chauffage, la production d'eau chaude sanitaire et le refroidissement Indice de mesure : kgeqCO2/m 2 .an

Estimation annuelle des coûts d'énergie du logement

Montant estimé des dépenses annuelle des coûts d'énergie du logement.

Entre 910 € et 1280 € par an

Prix moyen des énergies indexées sur l'année de référence (abonnements compris)

État des risques

Les informations sur les risques auxquels ce bien est exposé sont disponibles sur le site Géorisques : www.georisques.gouv.fr

Contacter l'office notarial
SELARL N. BIDAUD Notaire

1 rue de l'Ermitage BP 10
56560 GUISCRIFF

Tous les biens de l'office notarial

Formulaire de contact

Nous vous informons de l'existence de la liste d'opposition au démarchage téléphonique BLOCTEL sur laquelle vous pouvez vous inscrire bloctel.gouv.fr.

Confidentialité et conformité au RGPD.
Vos données personnelles sont traitées par Notariat Services en tant que responsable de traitement afin de répondre à votre demande de mise en relation avec SELARL Noémie BIDAUD Notaire. Les grandes lignes concernant la responsabilité liée à ce traitement effectué par Notariat Services sont disponibles ici. Vos données sont conservées pendant 36 mois et sont destinées à la mise en relation avec SELARL Noémie BIDAUD Notaire. Conformément à la loi "informatique et libertés" et au RGPD, vous pouvez exercer vos droits d'opposition, d'accès, de rectification, d'effacement, de limitation et de portabilité en adressant un email à l'adresse suivante : [email protected]. Vous pouvez également adresser une réclamation auprés de la CNIL directement via son site internet www.cnil.fr.

Les champs obligatoires sont marqués *.

Contacter l'office notarial
SELARL N. BIDAUD Notaire

1 rue de l'Ermitage BP 10
56560 GUISCRIFF

Tous les biens de l'office notarial
SIRET:
878 504 893 00016
TVA Intra-communautaire:
FR53 878 504 893
/>