Immonot, l'immobilier des notaires
Achat - Bien agricole
Neuville-en-Beaumont (50250)
6 600 €
6 000 € + Honoraires de négociation TTC : 600 €
Soit 10,0% à la charge de l'acquéreur
Numéro principal :
02 33 21 72 72
Envoyer un email
Numéro principal :
02 33 21 72 72
Email

Achat Bien agricole Neuville-en-Beaumont (50250)


Retour
6 600 €
6 000 € + Honoraires de négociation TTC : 600 €
Soit 10,0% à la charge de l'acquéreur
Tous les biens de l'office
6 600 €
6 000 € + Honoraires de négociation TTC : 600 €
Soit 10,0% à la charge de l'acquéreur
Barème des honoraires de négociation

Financer ce bien Assurance emprunteur
Déménagement Améliorer son habitat
Caractéristiques
Surface terrain
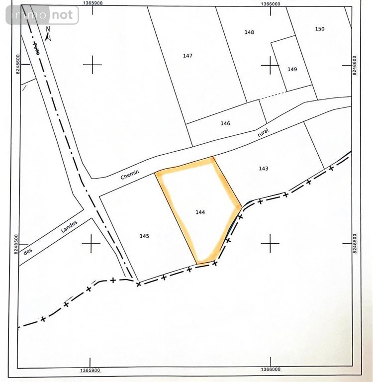
1 685  m2
Meuble
non
Référence
50061-965420

Bien agricole à vendre à Neuville-en-Beaumont dans la Manche (50250), ref : 50061-965420

A Neuville en Beaumont, une parcelle de terre plantée de 49 peupliers d'une contenance cadastrale d'environ 1685m².
N'hésitez pas à contacter Christine Duteurtre, Négociatrice à l'office notarial de Saint-Sauveur-le-Vicomte au 02.33.21.72.72 pour tout renseignement complémentaire.

État des risques

Les informations sur les risques auxquels ce bien est exposé sont disponibles sur le site Géorisques : www.georisques.gouv.fr

Contacter l'office notarial
SELAS GOSSELIN, LEFORESTIER et FAUTRAT

23 rue Emile Poirier BP 38
50250 LA HAYE DU PUITS

Tous les biens de l'office notarial
Votre contact : Christine DUTEURTRE

Formulaire de contact

Nous vous informons de l'existence de la liste d'opposition au démarchage téléphonique BLOCTEL sur laquelle vous pouvez vous inscrire bloctel.gouv.fr.

Confidentialité et conformité au RGPD.
Vos données personnelles sont traitées par Notariat Services en tant que responsable de traitement afin de répondre à votre demande de mise en relation avec SELAS Christelle GOSSELIN, Romaric LEFORESTIER et Anne FAUTRAT. Les grandes lignes concernant la responsabilité liée à ce traitement effectué par Notariat Services sont disponibles ici. Vos données sont conservées pendant 36 mois et sont destinées à la mise en relation avec SELAS Christelle GOSSELIN, Romaric LEFORESTIER et Anne FAUTRAT. Conformément à la loi "informatique et libertés" et au RGPD, vous pouvez exercer vos droits d'opposition, d'accès, de rectification, d'effacement, de limitation et de portabilité en adressant un email à l'adresse suivante : [email protected]. Vous pouvez également adresser une réclamation auprés de la CNIL directement via son site internet www.cnil.fr.

Les champs obligatoires sont marqués *.

Contacter l'office notarial
SELAS GOSSELIN, LEFORESTIER et FAUTRAT

23 rue Emile Poirier BP 38
50250 LA HAYE DU PUITS

Tous les biens de l'office notarial
Votre contact : Christine DUTEURTRE
SIRET:
338 717 101 00038
TVA Intra-communautaire:
FR73 338 717 101
/>