Immonot, l'immobilier des notaires
Achat - Maison
La Suze-sur-Sarthe (72210)
183 000 €
175 000 € + Honoraires de négociation TTC : 8 000 €
Soit 4,57% à la charge de l'acquéreur
Numéro principal :
06.81.93.47.65
Envoyer un email
Numéro principal :
06.81.93.47.65
Email

Achat Maison La Suze-sur-Sarthe (72210)  Maison de ville 5 pièces 160 m2


Retour
183 000 €
175 000 € + Honoraires de négociation TTC : 8 000 €
Soit 4,57% à la charge de l'acquéreur
Tous les biens de l'office
183 000 €
175 000 € + Honoraires de négociation TTC : 8 000 €
Soit 4,57% à la charge de l'acquéreur
Barème des honoraires de négociation

Financer ce bien Assurance Emprunteur
Déménagement Écorénover son logement
Caractéristiques
Surface habitable
160  m2
Surface terrain
202 m
Pièces
5
Chauffage
Electricite
Taxe foncière
1250.0
Etat général
Bon
Meuble
Non
Nombre d'étage(s)
2
Cave
Oui
Terrasse
Oui
Référence
HB-1770
Les +
Centre Ville
Gare
Commerces
Ecole

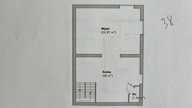
Maison de ville à vendre à La Suze-sur-Sarthe dans la Sarthe (72210), ref : HB-1770

Centre-ville: Immeuble libre de toute occupation d'une surface habitable de 160m2 environ, composé d'un local commercial de 40m2 avec sanitaire. Une entrée distincte desservant une pièce de 23m2 avec buanderie et accès à une terrasse. Une cuisine aménagée au 1er étage ouverte sur séjour ainsi que deux chambres et une salle d'eau avec wc. Une chambre mansardée au second niveau. Grenier et cave voutée. Chauffage et installation électrique récents, huisseries pvc. Parcelle au bord de la rivière à proximité.

Maison de ville à vendre à La Suze-sur-Sarthe dans la Sarthe (72210), ref : HB-1770

Centre-ville: Immeuble libre de toute occupation d’une surface habitable de 160m2 environ, composé d’un local commercial de 40m2 avec sanitaire. Une entrée distincte desservant une pièce de 23m2 avec buanderie et accès à une terrasse. Une cuisine aménagée au 1er étage ouverte sur séjour ainsi que deux chambres et une salle d’eau avec wc. Une chambre mansardée au second niveau. Grenier et cave voutée. Chauffage et installation électrique récents, huisseries pvc. Parcelle au bord de la rivière à proximité.

Maison de ville à vendre à La Suze-sur-Sarthe dans la Sarthe (72210), ref : HB-1770

Centre-ville: Immeuble libre de toute occupation d’une surface habitable de 160m2 environ, composé d’un local commercial de 40m2 avec sanitaire. Une entrée distincte desservant une pièce de 23m2 avec buanderie et accès à une terrasse. Une cuisine aménagée au 1er étage ouverte sur séjour ainsi que deux chambres et une salle d’eau avec wc. Une chambre mansardée au second niveau. Grenier et cave voutée. Chauffage et installation électrique récents, huisseries pvc. Parcelle au bord de la rivière à proximité.

Diagnostics (Réalisé le 27/03/2023 et présenté selon la référence en vigueur de 2021)

Consommation énergétique (dont Émissions de gaz à effet de serre)

A
B
C
D
184
E
F
G
Économe
Énergivore
Tableau de diagnostic de la performance énergétique des logements
Consommations énergétiques
Consommations énergétiques (en énergie primaire) pour le chauffage, la production d'eau chaude sanitaire et le refroidissement Indice de mesure : kWhEP/m 2 .an
A
B
6
C
D
E
F
G
Faible émission
Forte émission
Tableau de diagnostic de la performance énergétique des logements
Émissions de gaz à effet de serre
Émissions de gaz à effet de serre (GES) pour le chauffage, la production d'eau chaude sanitaire et le refroidissement Indice de mesure : kgeqCO2/m 2 .an

Estimation annuelle des coûts d'énergie du logement

Montant estimé des dépenses annuelle des coûts d'énergie du logement.

Entre 1330 € et 1840 € par an

Prix moyen des énergies indexées sur l'année de référence (abonnements compris)

État des risques

Les informations sur les risques auxquels ce bien est exposé sont disponibles sur le site Géorisques : www.georisques.gouv.fr

Contacter l'office notarial
Mes MALBOIS, POUPAS et OLIVRY

Votre contact : Benoît HONORÉ

Formulaire de contact

Nous vous informons de l'existence de la liste d'opposition au démarchage téléphonique BLOCTEL sur laquelle vous pouvez vous inscrire bloctel.gouv.fr.

Confidentialité et conformité au RGPD.
Vos données personnelles sont traitées par Notariat Services en tant que responsable de traitement afin de répondre à votre demande de mise en relation avec Mes Yann MALBOIS, Renaud POUPAS et Benoît OLIVRY. Les grandes lignes concernant la responsabilité liée à ce traitement effectué par Notariat Services sont disponibles ici. Vos données sont conservées pendant 36 mois et sont destinées à la mise en relation avec Mes Yann MALBOIS, Renaud POUPAS et Benoît OLIVRY. Conformément à la loi "informatique et libertés" et au RGPD, vous pouvez exercer vos droits d'opposition, d'accès, de rectification, d'effacement, de limitation et de portabilité en adressant un email à l'adresse suivante : [email protected]. Vous pouvez également adresser une réclamation auprés de la CNIL directement via son site internet www.cnil.fr.

Les champs obligatoires sont marqués *.

Contacter l'office notarial
Mes MALBOIS, POUPAS et OLIVRY

Votre contact : Benoît HONORÉ
SIRET:
812 179 711 00013
TVA Intra-communautaire:
FR25 812 179 711
/>