Immonot, l'immobilier des notaires
Achat - Maison
La Suze-sur-Sarthe (72210)
147 000 €
140 000 € + Honoraires de négociation TTC : 7 000 €
Soit 5,0% à la charge de l'acquéreur
Numéro principal :
07 76 57 07 10
Envoyer un email
Numéro principal :
07 76 57 07 10
Email

Achat Maison La Suze-sur-Sarthe (72210) 68 m2


Retour
147 000 €
140 000 € + Honoraires de négociation TTC : 7 000 €
Soit 5,0% à la charge de l'acquéreur
Tous les biens de l'office
147 000 €
140 000 € + Honoraires de négociation TTC : 7 000 €
Soit 5,0% à la charge de l'acquéreur
Barème des honoraires de négociation

Financer ce bien Assurance Emprunteur
Déménagement Écorénover son logement
Caractéristiques
Surface habitable
68  m2
Surface terrain
842 m
Chambres
3
Chauffage
Gaz
Référence
72122-1438

Maison à vendre à La Suze-sur-Sarthe dans la Sarthe (72210), ref : 72122-1438

LA SUZE SUR SARTHE
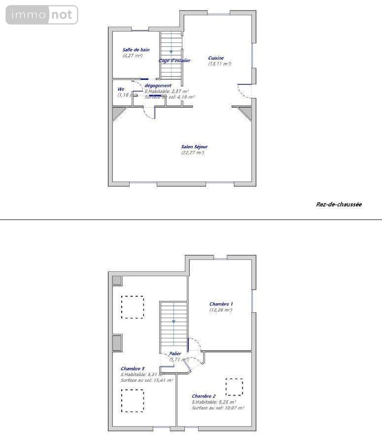
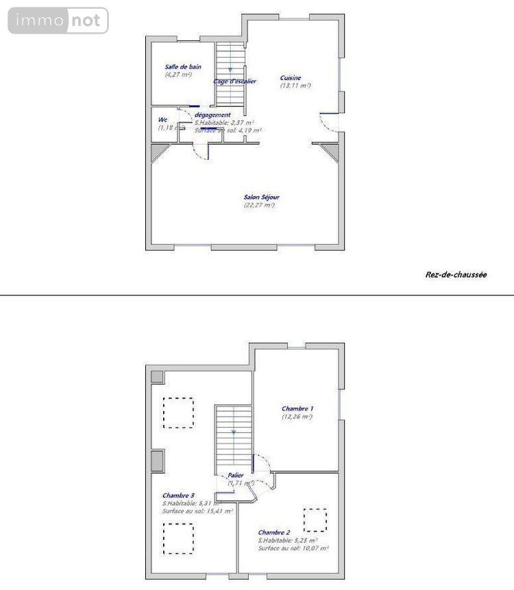
Maison année 50, d'une surface habitable de 68 M² (84 M² au sol), sur sous-sol.
Elle comprend : Au premier étage, une entrée sur une cuisine ouverte sur un séjour, une salle de bains et un WC.
Au deuxième étage, trois chambres (15 M², 12 M² et 10 M² au sol).
Au sous-sol, cave, chaufferie, buanderie.
Grand garage indépendant. Deux entrées sur la parcelle 842 M² (terrain pouvant être divisé).
Prestations : Chaudière individuelle gaz à condensation (2016), double vitrage PVC, volets roulants manuels, tout à l'égout, tableau disjoncteurs.
Taxe foncière : 800 EUR
Contact : Killian MERDRIGNAC - 07 76 57 07 10

Diagnostics (Réalisé le 01/04/2026 et présenté selon la référence en vigueur de 2021)

Consommation énergétique (dont Émissions de gaz à effet de serre)

A
B
C
D
E
246
F
G
Économe
Énergivore
Tableau de diagnostic de la performance énergétique des logements
Consommations énergétiques
Consommations énergétiques (en énergie primaire) pour le chauffage, la production d'eau chaude sanitaire et le refroidissement Indice de mesure : kWhEP/m 2 .an
A
B
C
D
E
52
F
G
Faible émission
Forte émission
Tableau de diagnostic de la performance énergétique des logements
Émissions de gaz à effet de serre
Émissions de gaz à effet de serre (GES) pour le chauffage, la production d'eau chaude sanitaire et le refroidissement Indice de mesure : kgeqCO2/m 2 .an

Estimation annuelle des coûts d'énergie du logement

Montant estimé des dépenses annuelle des coûts d'énergie du logement.

Entre 1580 € et 2180 € par an

Prix moyen des énergies indexées sur l'année de référence (abonnements compris)

État des risques

Les informations sur les risques auxquels ce bien est exposé sont disponibles sur le site Géorisques : www.georisques.gouv.fr

Contacter l'office notarial
RÉSEAU NOTAIRES & CONSEILS

Votre contact : Killian MERDRIGNAC

Formulaire de contact

Nous vous informons de l'existence de la liste d'opposition au démarchage téléphonique BLOCTEL sur laquelle vous pouvez vous inscrire bloctel.gouv.fr.

Confidentialité et conformité au RGPD.
Vos données personnelles sont traitées par Notariat Services en tant que responsable de traitement afin de répondre à votre demande de mise en relation avec RÉSEAU NOTAIRES & CONSEILS. Les grandes lignes concernant la responsabilité liée à ce traitement effectué par Notariat Services sont disponibles ici. Vos données sont conservées pendant 36 mois et sont destinées à la mise en relation avec RÉSEAU NOTAIRES & CONSEILS. Conformément à la loi "informatique et libertés" et au RGPD, vous pouvez exercer vos droits d'opposition, d'accès, de rectification, d'effacement, de limitation et de portabilité en adressant un email à l'adresse suivante : [email protected]. Vous pouvez également adresser une réclamation auprés de la CNIL directement via son site internet www.cnil.fr.

Les champs obligatoires sont marqués *.

Contacter l'office notarial
RÉSEAU NOTAIRES & CONSEILS

Votre contact : Killian MERDRIGNAC
SIRET:
812 179 711 00013
TVA Intra-communautaire:
FR25 812 179 711
/>