Immonot, l'immobilier des notaires
Achat - Maison
Féchain (59247)
250 000 €
(Honoraires de négociation à la charge du vendeur)
Numéro principal :
03.21.73.03.22
Envoyer un email
Numéro principal :
03.21.73.03.22
Email

Achat Maison Féchain (59247) 6 pièces 141 m2


Retour
250 000 €
(Honoraires de négociation à la charge du vendeur)
Tous les biens de l'office
250 000 €
(Honoraires de négociation à la charge du vendeur)
Barème des honoraires de négociation

Financer ce bien Assurance emprunteur
Déménagement Améliorer son habitat
Caractéristiques
Surface habitable
141  m2
Surface terrain
1 057  m2
Pièces
6
Chambres
4
Chauffage
Pompe à chaleur air/eau
Garage
Oui
Référence
62017-3223

Maison à vendre à Féchain dans le Nord (59247), ref : 62017-3223

++ Exclusivité Etude ++
Située à ABANCOURT (59268 Nord), au coeur du secteur DOUAI / VALENCIENNES / CAMBRAI / ARRAS :
Maison individuelle en plain pied à vendre.
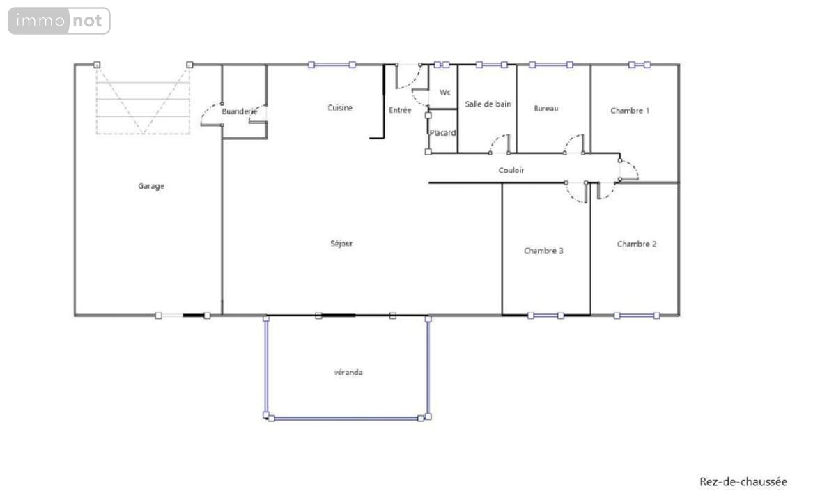
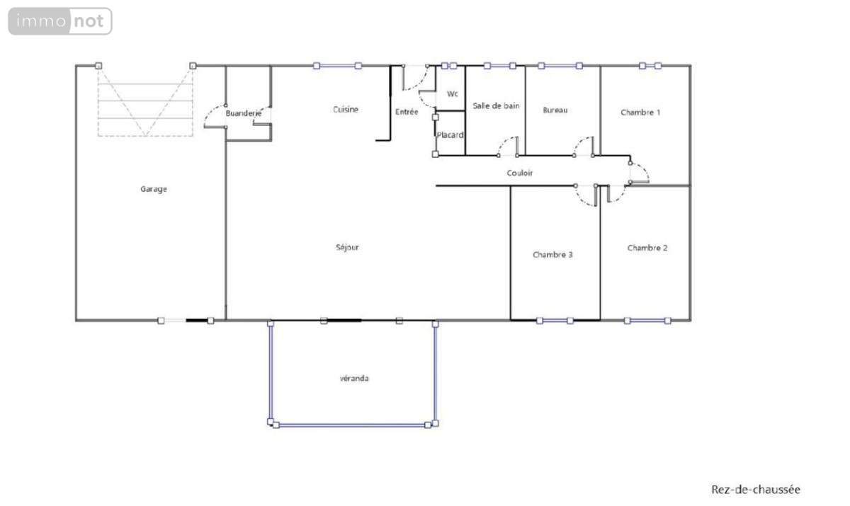
La maison, bâtie en 2002, se compose sur environ 141 m² comme suit :
* hall d'entrée (4,25 m²) et placards (2 m²) ;
* salon-séjour (40,5 m²) ouvert sur cuisine équipée (12,51 m²) ;
* cellier (3,3 m²) ;
* véranda (19 m², chauffée, directement accessible depuis le salon, construite par la société IVERCO) ;
* couloir (5,63 m²) ;
* 4 chambres (9,86 m² / 11,2 m² / 11,85 m² / 12,1 m²) ;
* salle d'eau (7,7 m²) ;
* WC (1,2 m²).
La maison est :
- actuellement chauffée par pompe à chaleur (air/eau) (installée en novembre 2024) ;
- équipée d'un chauffe-eau thermodynamique ainsi qu'une VMC double flux ;
- dotée de panneaux solaires (installés en mai 2024) ;
- équipée de menuiseries en PVC double vitrage + volets ;
- dotée d'une cuve à eau, de 10 m3, raccordée sur l'ensemble du réseau de la maison avec un système complet de filtrage le permettant ;
- raccordée au tout à l'égout ;
- doté de combles, isolés, non aménageables.
Extérieurement, le bien dispose également :
- de plusieurs places de stationnement en façade, ainsi que d'un grand garage (45 m², avec porte motorisée, accès direct à la maison ainsi qu'au jardin) ;
- d'un portail et d'un passage sur un côté de la maison ;
- d'une pergola (société IVERCO) ;
- d'un jardin clos et arboré, sans vis-à-vis ;
- de petites dépendances pour stockage de matériel de jardin ;
- d'un bassin à poissons.
Taxe foncière 2025 : 1.007 €.
Le tout sur et avec 1.057 m² de terrain.
La maison est située dans une rue calme et très peu passante : tranquillité assurée.
Informations relatives au diagnostic de performance énergétique : Consommations énergétiques (CE) Classe C indice 121 kWhEP/m²/an et émissions de gaz à effet de serre (GES) Classe C indice 11 kgéqCO2/m²/an.
Les informations sur les risques auxquels ce bien est exposé sont disponibles sur le site Géorisques : www.georisques.gouv.fr
Prix de vente : 250.000 € (honoraires de négociation à la charge du vendeur), provision sur frais d'acte de vente : 25.000 €.
Plus d'informations à la demande avant visite.
Secteur CAMBRAI, VALENCIENNES, DOUAI, FECHAIN, FRESSAIN, AUBIGNY-AU-BAC, AUBENCHEUL-AU-BAC, ARLEUX, BUGNICOURT, CANTIN, EPINOY, OISY-LE-VERGER, MARQUION, BRUNEMONT, PALLUEL, GOEULZIN, ESTREES, HAMEL, ROUCOURT, ERCHIN, MONCHECOURT, EMERCHICOURT, MARCQ-EN-OSTREVENT, MARQUETTE-EN-OSTREVANT, BOUCHAIN, WASNES-AU-BAC, WAVRECHAIN-SOUS-FAULX, PAILLENCOURT, ETRUN, HORDAIN, IWUY, HEM-LENGLET, THUN-L'EVEQUE, THUN-SAINT-MARTIN, ESWARS, CUVILLERS, BANTIGNY, SANCOURT, BLECOURT, TILLOY-LEZ-CAMBRAI, SAILLY-LEZ-CAMBRAI, NEUVILLE-SAINT-REMY, FONTAINE-NOTRE-DAME, ... E-Valley, Canal Seine-Nord, Autoroutes A2/A1/A21, ..

Diagnostics (Réalisé le 01/10/2025 et présenté selon la référence en vigueur de 2021)

Consommation énergétique (dont Émissions de gaz à effet de serre)

A
B
C
121
D
E
F
G
Économe
Énergivore
Tableau de diagnostic de la performance énergétique des logements
Consommations énergétiques
Consommations énergétiques (en énergie primaire) pour le chauffage, la production d'eau chaude sanitaire et le refroidissement Indice de mesure : kWhEP/m 2 .an
A
B
C
11
D
E
F
G
Faible émission
Forte émission
Tableau de diagnostic de la performance énergétique des logements
Émissions de gaz à effet de serre
Émissions de gaz à effet de serre (GES) pour le chauffage, la production d'eau chaude sanitaire et le refroidissement Indice de mesure : kgeqCO2/m 2 .an

Estimation annuelle des coûts d'énergie du logement

Montant estimé des dépenses annuelle des coûts d'énergie du logement.

Entre 1530 € et 2120 € par an

Prix moyen des énergies indexées sur l'année de référence (abonnements compris)

État des risques

Les informations sur les risques auxquels ce bien est exposé sont disponibles sur le site Géorisques : www.georisques.gouv.fr

Contacter l'office notarial
SCP CORBISÉ et FRANCOIS

40 route Nationale
62860 MARQUION

Tous les biens de l'office notarial

Formulaire de contact

Nous vous informons de l'existence de la liste d'opposition au démarchage téléphonique BLOCTEL sur laquelle vous pouvez vous inscrire bloctel.gouv.fr.

Confidentialité et conformité au RGPD.
Vos données personnelles sont traitées par Notariat Services en tant que responsable de traitement afin de répondre à votre demande de mise en relation avec SCP David CORBISÉ et Philippe FRANCOIS. Les grandes lignes concernant la responsabilité liée à ce traitement effectué par Notariat Services sont disponibles ici. Vos données sont conservées pendant 36 mois et sont destinées à la mise en relation avec SCP David CORBISÉ et Philippe FRANCOIS. Conformément à la loi "informatique et libertés" et au RGPD, vous pouvez exercer vos droits d'opposition, d'accès, de rectification, d'effacement, de limitation et de portabilité en adressant un email à l'adresse suivante : [email protected]. Vous pouvez également adresser une réclamation auprés de la CNIL directement via son site internet www.cnil.fr.

Les champs obligatoires sont marqués *.

Contacter l'office notarial
SCP CORBISÉ et FRANCOIS

40 route Nationale
62860 MARQUION

Tous les biens de l'office notarial
SIRET:
784 040 859 00018
TVA Intra-communautaire:
FR47 784 040 859
/>