Immonot, l'immobilier des notaires
Achat - Maison
Écourt-Saint-Quentin (62860)
131 875 €
(Honoraires de négociation à la charge du vendeur)
Numéro principal :
03.21.73.03.22
Envoyer un email
Numéro principal :
03.21.73.03.22
Email

Achat Maison Écourt-Saint-Quentin (62860) 7 pièces 150 m2


Retour
131 875 €
(Honoraires de négociation à la charge du vendeur)
Tous les biens de l'office
131 875 €
(Honoraires de négociation à la charge du vendeur)
Barème des honoraires de négociation

Financer ce bien Assurer
Déménagement Améliorer son habitat
Caractéristiques
Surface habitable
150  m2
Surface terrain
733  m2
Pièces
7
Chambres
4
Chauffage
Fioul
Garage
Oui
Référence
62017-3200

Maison à vendre à Écourt-Saint-Quentin dans le Pas-de-Calais (62860), ref : 62017-3200

Maison à rénover à vendre à ECOURT-SAINT-QUENTIN (62860 Pas-de-Calais).
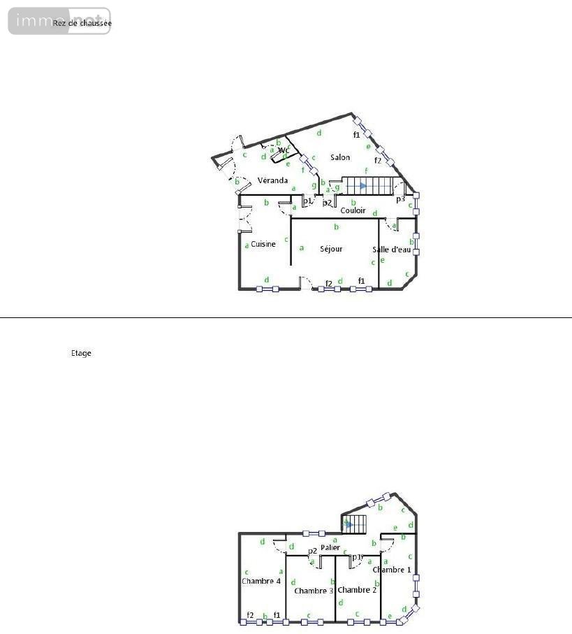
La maison se compose sur environ 150 m² habitables comme suit :
- rez-de-chaussée : entrée donnant sur salon-séjour (28,5 m², cheminée non tubée), grande cuisine (21 m², avec second accès extérieur), couloir desservant salle d'eau (6,5 m²) ainsi qu'une pièce (chambre, 20 m²) et un espace véranda non chauffée et WC ;
- cave ;
- 1er étage : palier desservant 4 chambres (11,4 m² / 11,8 m² / 17,8 m² / 20 m²) ;
- 2ème étage (grenier accessible depuis escalier escamotable).
La maison est :
- chauffée au fioul (chaudière récente et entretenue) ;
- équipée de menuiseries bois simple vitrage ;
- raccordée au tout à l'égout.
A l'extérieur, la maison dispose d'un portail motorisé à rue, donnant sur une cour ainsi qu'un grand garage/atelier (66 m² environ, 10,2m*6,5m, attenant à la maison via la véranda), des dépendances, ainsi qu'un jardin clos et arboré.
Le tout sur et avec 733 m² de terrain.
Informations relatives au diagnostic de performance énergétique : Consommations énergétiques (CE) Classe G indice 370 kWhEP/m²/an et émissions de gaz à effet de serre (GES) Classe G indice 105 kgéqCO2/m²/an.
Logement à consommation énergétique excessive.
Les informations sur les risques auxquels ce bien est exposé sont disponibles sur le site Géorisques : www.georisques.gouv.fr
Prix de vente : 131.875 € (honoraire de négociation à la charge du vendeur), provision sur frais d'acte de vente : 10.900 €.
Secteur MARQUION, BARALLE, BUISSY, BOURLON, CAGNICOURT, LAGNICOURT, BAPAUME, BULLECOURT, DURY, VIS-EN-ARTOIS, CROISILLES, ECOUST-SAINT-MEIN, PRONVILLE, INCHY-EN-ARTOIS, MOEUVRES, LAGNICOURT, MORCHIES, VAULX-VRAUCOURT, CHERISY, DOIGNIES, HERMIES, BERTINCOURT, SAUDEMONT, RUMAUCOURT, ECOURT-SAINT-QUENTIN, MORY, ARRAS, CAMBRAI, GOUZEAUCOURT, HAVRINCOURT, ARLEUX, GOEULZIN, PALLUEL, ARRAS, DOUAI, CAMBRAI..... E-Valley, Canal de la Sensée, marais, Canal Seine-Nord, proximité autoroutes A 1 / A 26 / A 2, ...

Diagnostics (Réalisé le 22/10/2024 et présenté selon la référence en vigueur de 2021)

Consommation énergétique (dont Émissions de gaz à effet de serre)

A
B
C
D
E
F
370
G
Économe
Énergivore
Tableau de diagnostic de la performance énergétique des logements
Consommations énergétiques
Consommations énergétiques (en énergie primaire) pour le chauffage, la production d'eau chaude sanitaire et le refroidissement Indice de mesure : kWhEP/m 2 .an
A
B
C
D
E
F
105
G
Faible émission
Forte émission
Tableau de diagnostic de la performance énergétique des logements
Émissions de gaz à effet de serre
Émissions de gaz à effet de serre (GES) pour le chauffage, la production d'eau chaude sanitaire et le refroidissement Indice de mesure : kgeqCO2/m 2 .an

Logement à consommation énergétique excessive

Estimation annuelle des coûts d'énergie du logement

Montant estimé des dépenses annuelle des coûts d'énergie du logement.

Entre 6690 € et 9100 € par an

Prix moyen des énergies indexées sur l'année de référence (abonnements compris)

État des risques

Les informations sur les risques auxquels ce bien est exposé sont disponibles sur le site Géorisques : www.georisques.gouv.fr

Contacter l'office notarial
SCP CORBISÉ et FRANCOIS

40 route Nationale
62860 MARQUION

Tous les biens de l'office notarial

Formulaire de contact

Nous vous informons de l'existence de la liste d'opposition au démarchage téléphonique BLOCTEL sur laquelle vous pouvez vous inscrire bloctel.gouv.fr.

Confidentialité et conformité au RGPD.
Vos données personnelles sont traitées par Notariat Services en tant que responsable de traitement afin de répondre à votre demande de mise en relation avec SCP David CORBISÉ et Philippe FRANCOIS. Les grandes lignes concernant la responsabilité liée à ce traitement effectué par Notariat Services sont disponibles ici. Vos données sont conservées pendant 36 mois et sont destinées à la mise en relation avec SCP David CORBISÉ et Philippe FRANCOIS. Conformément à la loi "informatique et libertés" et au RGPD, vous pouvez exercer vos droits d'opposition, d'accès, de rectification, d'effacement, de limitation et de portabilité en adressant un email à l'adresse suivante : [email protected]. Vous pouvez également adresser une réclamation auprés de la CNIL directement via son site internet www.cnil.fr.

Les champs obligatoires sont marqués *.

Contacter l'office notarial
SCP CORBISÉ et FRANCOIS

40 route Nationale
62860 MARQUION

Tous les biens de l'office notarial
SIRET:
784 040 859 00018
TVA Intra-communautaire:
FR47 784 040 859
/>