Immonot, l'immobilier des notaires
Achat - Terrain à bâtir
Strazeele (59270)
99 500 €
92 000 € + Honoraires de négociation TTC : 7 500 €
Soit 8,15% à la charge de l'acquéreur
Numéro principal :
03.28.42.93.40
Envoyer un email
Numéro principal :
03.28.42.93.40
Email

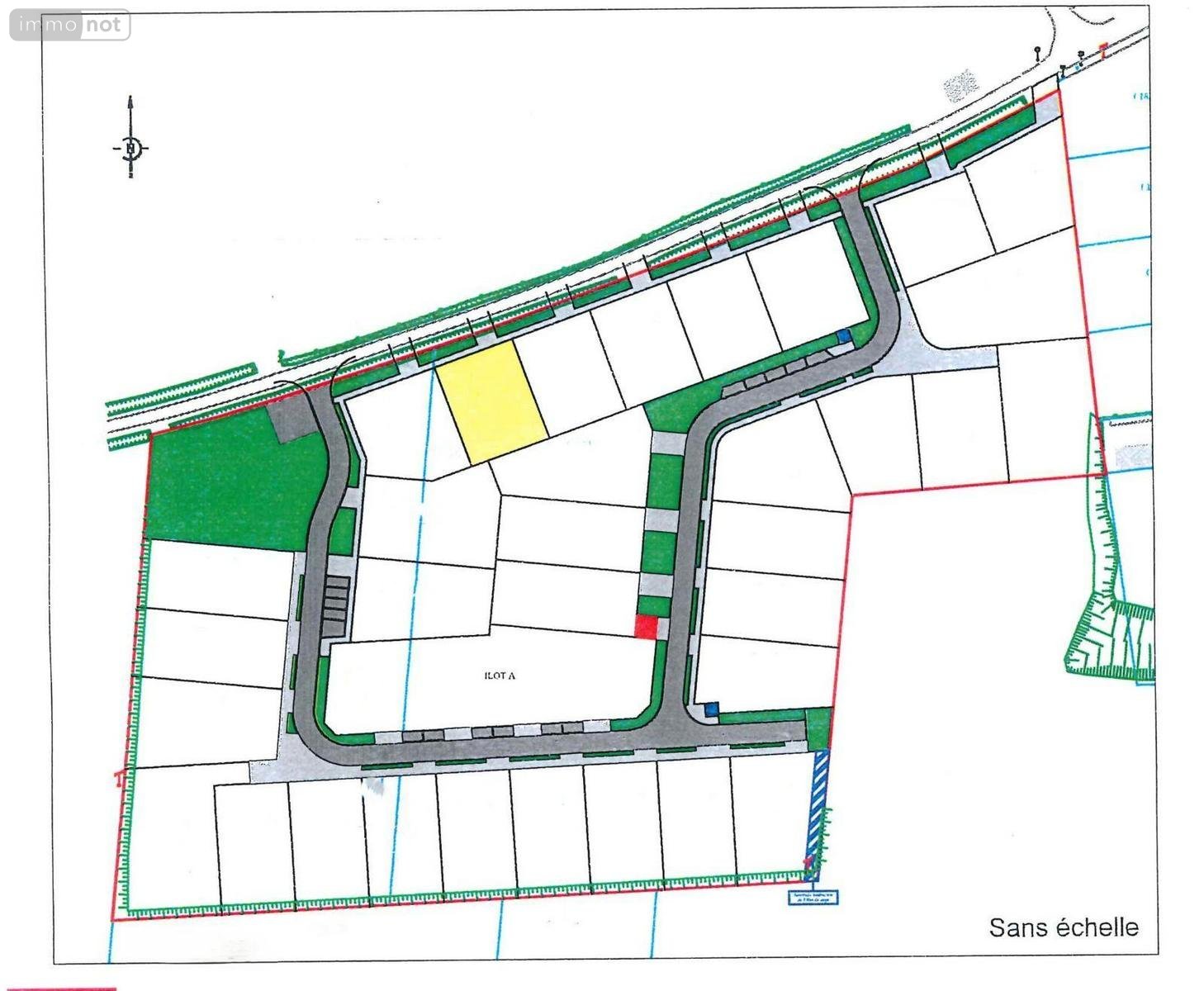
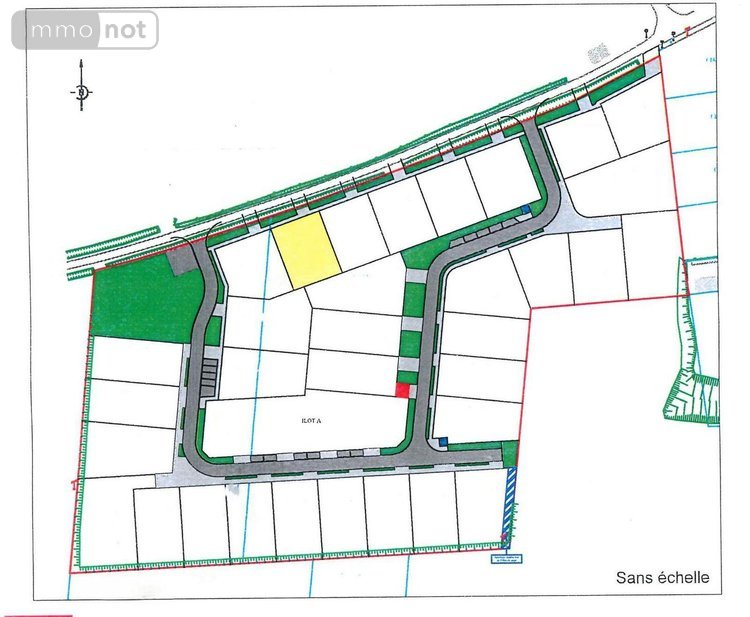
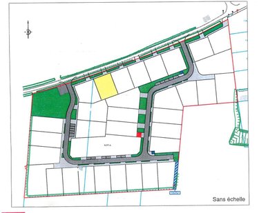
Achat Terrain à bâtir Strazeele (59270) 465 m2


Retour
99 500 €
92 000 € + Honoraires de négociation TTC : 7 500 €
Soit 8,15% à la charge de l'acquéreur
Tous les biens de l'office
99 500 €
92 000 € + Honoraires de négociation TTC : 7 500 €
Soit 8,15% à la charge de l'acquéreur
Barème des honoraires de négociation

Financer ce bien Assurance emprunteur
Déménagement Améliorer son habitat
Caractéristiques
Surface terrain
465  m2
Viabilité
Viabilisé
Référence
13078/3487

Terrain à Batir à vendre à Strazeele dans le Nord (59270), ref : 13078/3487

Idéalement située entre HAZEBROUCK ET BAILLEUL, BELLE PARCELLE DE TERRAIN à bâtir viabilisée, libre de constructeur, de 465m².
Parcelle située dans le nouveau quartier résidentiel " Croone Meersch" situé à STRAZEELE, rue Deuwel Straete. ( lotissement récent )
Terrain de forme rectangulaire / façade 19m / surface de plancher constructible 250m². Bonne exposition !
Renseignements étude.

État des risques

Les informations sur les risques auxquels ce bien est exposé sont disponibles sur le site Géorisques : www.georisques.gouv.fr

Contacter l'office notarial
SCP DECAMPS, WILPOTTE et DELARU

4 rue de l'Eglise BP 30115
59522 HAZEBROUCK CEDEX

Tous les biens de l'office notarial
Votre contact : Mme Frédérique VIVAT

Formulaire de contact

Nous vous informons de l'existence de la liste d'opposition au démarchage téléphonique BLOCTEL sur laquelle vous pouvez vous inscrire bloctel.gouv.fr.

Confidentialité et conformité au RGPD.
Vos données personnelles sont traitées par Notariat Services en tant que responsable de traitement afin de répondre à votre demande de mise en relation avec SCP Pierre DECAMPS, Florent WILPOTTE et Jean-Bernard DELARU. Les grandes lignes concernant la responsabilité liée à ce traitement effectué par Notariat Services sont disponibles ici. Vos données sont conservées pendant 36 mois et sont destinées à la mise en relation avec SCP Pierre DECAMPS, Florent WILPOTTE et Jean-Bernard DELARU. Conformément à la loi "informatique et libertés" et au RGPD, vous pouvez exercer vos droits d'opposition, d'accès, de rectification, d'effacement, de limitation et de portabilité en adressant un email à l'adresse suivante : [email protected]. Vous pouvez également adresser une réclamation auprés de la CNIL directement via son site internet www.cnil.fr.

Les champs obligatoires sont marqués *.

Contacter l'office notarial
SCP DECAMPS, WILPOTTE et DELARU

4 rue de l'Eglise BP 30115
59522 HAZEBROUCK CEDEX

Tous les biens de l'office notarial
Votre contact : Mme Frédérique VIVAT
SIRET:
315 635 813 00019
TVA Intra-communautaire:
FR47 315 635 813
/>